Bildegalleri

Fotograf Bjørn Sørheim V/ EFKT. Velkommen til Steinbukken 40!
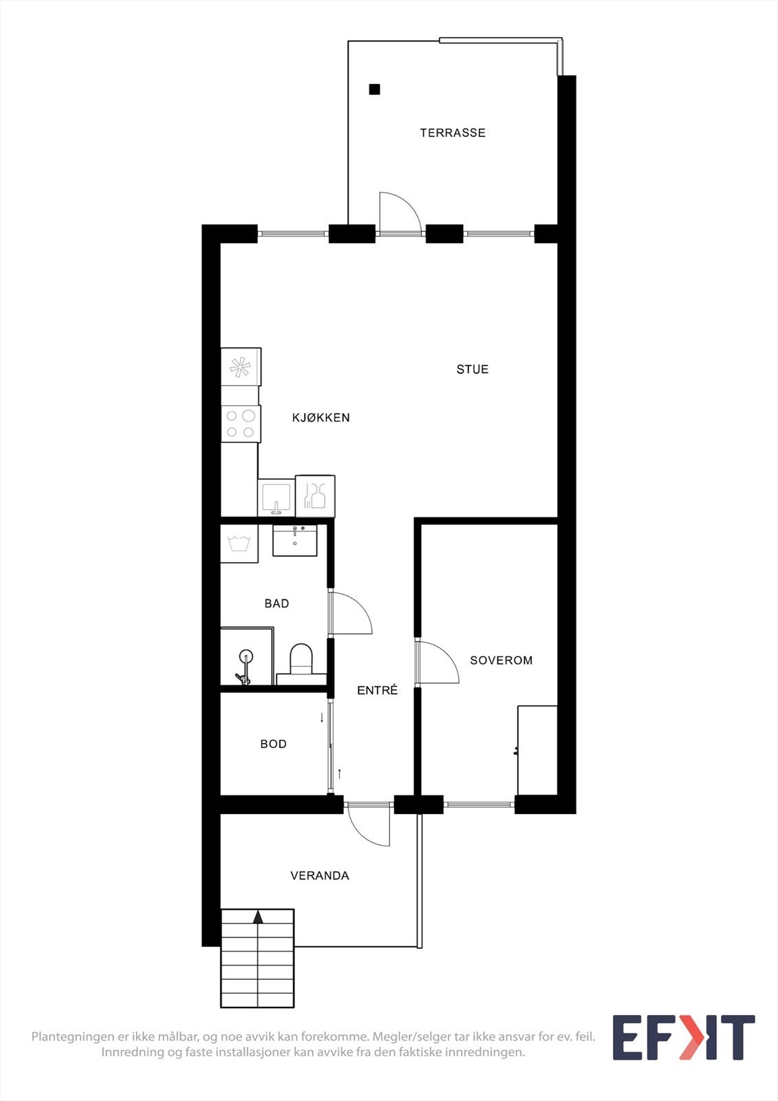
Moderne 2-roms leilighet fra 2022 | Terrasse og carport | Barnevennlig og rolig beliggenhet | Balansert ventilasjon
Prisantydning2 950 000 kr
Nøkkelinfo
- Boligtype
- Leilighet
- Eieform
- Eier (Selveier)
- Soverom
- 1
- Internt bruksareal
- 48 m² (BRA-i)
- Bruksareal
- 53 m²
- Eksternt bruksareal
- 5 m² (BRA-e)
- Balkong/Terrasse
- 9 m² (TBA)
- Etasje
- 1
- Byggeår
- 2022
- Energimerking
- C - Rød
- Rom
- 2
- Tomteareal
- 13 743 m² (eiet)
Visning
Ønsker du å delta på visningen ber vi deg melde deg på slik at vi vet at du kommer. Da kan vi bistå alle best mulig og gi deg tiden du trenger på visningen. Ta gjerne kontakt med megler før visning hvis du har noen spørsmål. Velkommen!
VisningspåmeldingOm boligen
Velkommen til Steinbukken 40! Dette er en arealeffektiv og moderne selveierleilighet fra 2022 i rolige og naturnære omgivelser.
Her bor du i et trygt nabolag på Neskollen, ideelt for barnefamilier og førstegangsetablerere. Med skoler, barnehager og marka rett utenfor døren, ligger alt til rette for en enkel hverdag. Leiligheten ligger på første plan og har en smart, åpen løsning mellom stue og kjøkken, med utgang til en herlig terrasse som blir en naturlig forlengelse av boligen.
Høydepunkter:
- Terrasse på 9 m² og platting ved inngang
- Carport og ekstern bod på 5 m² medfølger
- Kjøkken med integrerte hvitevarer
- Flislagt bad med gulvvarme og opplegg for vaskemaskin
- Balansert ventilasjon for et sunt inneklima
- Klargjort for elbillader i carportanlegget
Velkommen til visning!
Her bor du i et trygt nabolag på Neskollen, ideelt for barnefamilier og førstegangsetablerere. Med skoler, barnehager og marka rett utenfor døren, ligger alt til rette for en enkel hverdag. Leiligheten ligger på første plan og har en smart, åpen løsning mellom stue og kjøkken, med utgang til en herlig terrasse som blir en naturlig forlengelse av boligen.
Høydepunkter:
- Terrasse på 9 m² og platting ved inngang
- Carport og ekstern bod på 5 m² medfølger
- Kjøkken med integrerte hvitevarer
- Flislagt bad med gulvvarme og opplegg for vaskemaskin
- Balansert ventilasjon for et sunt inneklima
- Klargjort for elbillader i carportanlegget
Velkommen til visning!
NB: Knappen for å vise hele beskrivelsen har kun en visuell effekt.
NB: Knappen for å vise hele beskrivelsen har kun en visuell effekt.
Salgsoppgaven beskriver vesentlig og lovpålagt informasjon om eiendommen
Se komplett salgsoppgaveNyttige lenker
Nærområdet
EiendomsMegler 1 Årnes
Vi loser deg trygt gjennom hele boligsalget
Annonseinformasjon
| FINN-kode | 451814284 |
|---|---|
| Sist endret | 23. feb. 2026 08:44 |
| Referanse | 6048260100 |
Annonsene kan være mangelfulle i forhold til lovpålagt opplysningsplikt. Før bindende avtale inngås oppfordres interessenter til å innhente komplett informasjon fra meglerforetaket, selger eller utleier.



























