Bildegalleri

Velkommen til Ilsvikveien 22. Tiltalende & nyrenovert (2024) 3-roms selveier i 3.etg | Fjernvarme | Garanti til 2029 | P-plass med ladepunkt | Heis!
Ilsvika
Tiltalende & nyrenovert (2024) 3-roms selveier i 3.etg | Fjernvarme | Garanti til 2029 | P-plass med ladepunkt | Heis!
Prisantydning4 490 000 kr
Nøkkelinfo
- Boligtype
- Leilighet
- Eieform
- Eier (Selveier)
- Soverom
- 2
- Internt bruksareal
- 70 m² (BRA-i)
- Bruksareal
- 73 m²
- Eksternt bruksareal
- 3 m² (BRA-e)
- Etasje
- 3
- Byggeår
- 1914
- Energimerking
- B - Lysegrønn
- Rom
- 3
- Tomteareal
- 5 205 m² (eiet)
Fasiliteter
Barnevennlig
Garasje/P-plass
Kabel-TV
Fiskemulighet
Heis
Offentlig vann/kloakk
Parkett
Strandlinje
Turterreng
Vaktmester-/vektertjeneste
Sentralt
Bredbåndstilknytning
Moderne
Rolig
Bademulighet
Lademulighet
Balansert ventilasjon
Visning
torsdag, 26. februar
15:30 – 16:15
Våre visninger har påmelding. Dette gjør vi for å kunne yte bedre service for våre kunder. Verdifullt for boligkjøper og for oss. Vi anbefaler at salgsoppgaven lastes ned digitalt før visning, og ring oss gjerne på forhånd for spørsmål om boligen. Passer ikke angitt tidspunkt, ta kontakt så finner vi en løsning. Skulle det mot formodning ikke være påmeldte til angitt visningstidspunkt vil ikke visning bli gjennomført.
Om boligen
Visningstidspunkt må avtales direkte med megler
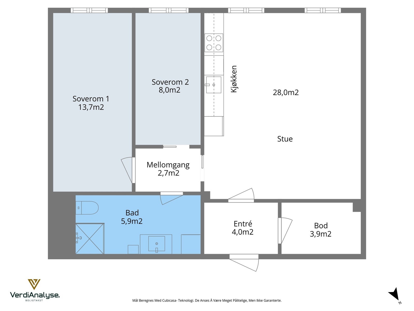
Velkommen til Ilsvikveien 22. Denne tiltalende 3-roms leiligheten i 3.etasje kan by på blant annet:
- Åpen løsning mellom kjøkken & stue på 28 kvm
- Fjernvarme inkludert i månedlige felleskostnader
- Stilrent kjøkken fra renoveringsår (2024) med integrerte hvitevarer (TG0)
- Pent flislagt baderom med varme i gulv & opplegg til vaskemaskin (TG0)
- Romslige soverom på henholdsvis ca. 14 & 8 kvm med rikelig plass til dobbeltseng
- Egen parkeringsplass utendørs med elbil-lader
- To boder; èn innvendig & èn i underetasjen
- Lave bokostnader med lite vedlikeholdsbehov (nyrenovert 2024)
- Nydelige fellesarealer rett utenfor leiligheten
- Sentral & attraktiv beliggenhet i populære Ilsvika med nærhet til alt sentrum & Bymarka har å by på
Velkommen!
Velkommen til Ilsvikveien 22. Denne tiltalende 3-roms leiligheten i 3.etasje kan by på blant annet:
- Åpen løsning mellom kjøkken & stue på 28 kvm
- Fjernvarme inkludert i månedlige felleskostnader
- Stilrent kjøkken fra renoveringsår (2024) med integrerte hvitevarer (TG0)
- Pent flislagt baderom med varme i gulv & opplegg til vaskemaskin (TG0)
- Romslige soverom på henholdsvis ca. 14 & 8 kvm med rikelig plass til dobbeltseng
- Egen parkeringsplass utendørs med elbil-lader
- To boder; èn innvendig & èn i underetasjen
- Lave bokostnader med lite vedlikeholdsbehov (nyrenovert 2024)
- Nydelige fellesarealer rett utenfor leiligheten
- Sentral & attraktiv beliggenhet i populære Ilsvika med nærhet til alt sentrum & Bymarka har å by på
Velkommen!
NB: Knappen for å vise hele beskrivelsen har kun en visuell effekt.
NB: Knappen for å vise hele beskrivelsen har kun en visuell effekt.
Salgsoppgaven beskriver vesentlig og lovpålagt informasjon om eiendommen
Se komplett salgsoppgaveNyttige lenker
Nærområdet
EiendomsMegler 1 Trondheim sentrum, Søndre gate
Vi loser deg trygt gjennom hele boligsalget
Annonseinformasjon
| FINN-kode | 451807472 |
|---|---|
| Sist endret | 19. feb. 2026 15:07 |
| Referanse | 39260040 |
Annonsene kan være mangelfulle i forhold til lovpålagt opplysningsplikt. Før bindende avtale inngås oppfordres interessenter til å innhente komplett informasjon fra meglerforetaket, selger eller utleier.






































