Bildegalleri

Saggrenda - Eldre enebolig med dobbelgarasje og stor tomt i landlige omgivelser
Prisantydning2 500 000 kr
Nøkkelinfo
- Boligtype
- Enebolig
- Eieform
- Eier (Selveier)
- Soverom
- 3
- Internt bruksareal
- 173 m² (BRA-i)
- Bruksareal
- 173 m²
- Etasje
- 2
- Byggeår
- 1968
- Energimerking
- F - Oransje
- Rom
- 4
- Tomteareal
- 2 358 m² (eiet)
Fasiliteter
Balkong/Terrasse
Barnevennlig
Garasje/P-plass
Hage
Offentlig vann/kloakk
Peis/Ildsted
Rolig
Utsikt
Turterreng
Visning
torsdag, 26. februar
16:30 – 17:30
Velkommen til visning! Meld deg på ved å trykke "visningspåmelding" i våre boligannonser. Visning med megler til stede vil ikke bli avholdt uten påmeldinger. Ta gjerne kontakt med megler i forkant av visningen om du har spørsmål.
VisningspåmeldingOm boligen
Velkommen til Saggrendabakkene 31!
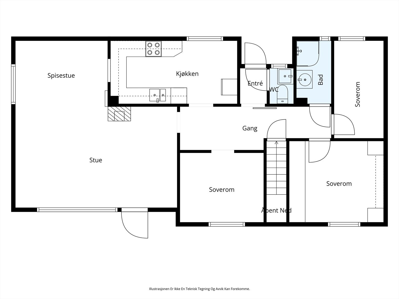
Eldre enebolig over to plan som inneholder:
Kjeller: Gang, vaskekjeller og boder/rom.
1. etg: Vindfang, gang, trapperom, toalettrom, bad, stue, kjøkken og 3 soverom.
I tillegg har boligen dobbelgarasje med bod.
Eiendommen ligger fint til i Saggrenda ca. 8 km. fra Kongsberg sentrum. Det er kort vei til bl.a. badeplass, dagligvare, Arsenalet, Sølvgruvene og flotte naturområder. Barneskole, ungdomsskole, barnehage og idrettsanlegg ligger i kort kjøreavstand fra eiendommen. Bussforbindelse til byen fra Saggrendadammen.
Eldre enebolig over to plan som inneholder:
Kjeller: Gang, vaskekjeller og boder/rom.
1. etg: Vindfang, gang, trapperom, toalettrom, bad, stue, kjøkken og 3 soverom.
I tillegg har boligen dobbelgarasje med bod.
Eiendommen ligger fint til i Saggrenda ca. 8 km. fra Kongsberg sentrum. Det er kort vei til bl.a. badeplass, dagligvare, Arsenalet, Sølvgruvene og flotte naturområder. Barneskole, ungdomsskole, barnehage og idrettsanlegg ligger i kort kjøreavstand fra eiendommen. Bussforbindelse til byen fra Saggrendadammen.
NB: Knappen for å vise hele beskrivelsen har kun en visuell effekt.
NB: Knappen for å vise hele beskrivelsen har kun en visuell effekt.
Salgsoppgaven beskriver vesentlig og lovpålagt informasjon om eiendommen
Se komplett salgsoppgaveNyttige lenker
Nærområdet
DNB Eiendom AS
Verdifulle salg
Annonseinformasjon
| FINN-kode | 451806112 |
|---|---|
| Sist endret | 20. feb. 2026 11:38 |
| Referanse | 511260013 |
Annonsene kan være mangelfulle i forhold til lovpålagt opplysningsplikt. Før bindende avtale inngås oppfordres interessenter til å innhente komplett informasjon fra meglerforetaket, selger eller utleier.



















