Bildegalleri

Velkommen til Nøtteveien 17!
Yven
Enebolig med fantastisk utsikt - Romslig kjøkken - Garasje - Gode solforhold - Sentralt!
Prisantydning7 900 000 kr
Nøkkelinfo
- Boligtype
- Enebolig
- Eieform
- Selveier
- Soverom
- 4
- Internt bruksareal
- 212 m² (BRA-i)
- Bruksareal
- 212 m²
- Byggeår
- 1978
- Rom
- 6
- Tomteareal
- 1 003 m² (eiet)
Fasiliteter
Balkong/Terrasse
Barnevennlig
Garasje/P-plass
Offentlig vann/kloakk
Peis/Ildsted
Sentralt
Utsikt
Visning
For at vår megler og selger skal kunne gi deg den beste oppfølgingen og kjøpsopplevelsen er det obligatorisk påmelding til alle våre visninger. Dersom ditt reserverte tidspunkt likevel ikke kan benyttes trenger vi beskjed så tidlig som mulig sånn at vi kan finne en alternativ løsning. Vi har alltid tid til deg. Visninger uten påmeldte deltagere avlyses.
VisningspåmeldingOm boligen
Velkommen til Nøtteveien 17!
Stor og innholdsrik enebolig med en utsikt. Her er det en fantastisk utsikt som både kan nytes inne og ute. Boligen ligger sentralt og fint til på Yven, det er kort vei til de aller fleste fasiliteter, og nærhet til handelsområde på Grålum.
For familier er dette et svært gunstig sted. Det finnes flere barnehager i nærheten, og både Hannestad barneskole og Tindlund ungdomsskole ligger i nærheten.
Enkel adkomst til E6 og videre til sentralsykehuset på Kalnes, Oslo eller til Sverige.
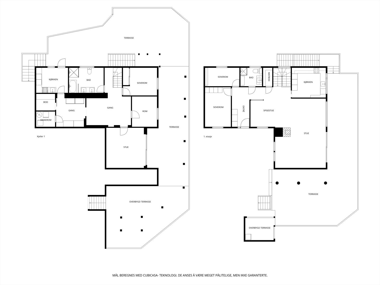
Innholdsrik bolig som går over 2 plan og inneholder i1. etasje: Entre, trapperom, bad, bod, stue, kjøkken og 2 soverom. I u. etasje: Trapperom, gang, vaskerom, kjølerom, stue, bad, bod og 2 soverom. Det medfølger garasje og grillstue.
-4 soverom
-2 bad
-Garasje
-Utsikt
Stor og innholdsrik enebolig med en utsikt. Her er det en fantastisk utsikt som både kan nytes inne og ute. Boligen ligger sentralt og fint til på Yven, det er kort vei til de aller fleste fasiliteter, og nærhet til handelsområde på Grålum.
For familier er dette et svært gunstig sted. Det finnes flere barnehager i nærheten, og både Hannestad barneskole og Tindlund ungdomsskole ligger i nærheten.
Enkel adkomst til E6 og videre til sentralsykehuset på Kalnes, Oslo eller til Sverige.
Innholdsrik bolig som går over 2 plan og inneholder i1. etasje: Entre, trapperom, bad, bod, stue, kjøkken og 2 soverom. I u. etasje: Trapperom, gang, vaskerom, kjølerom, stue, bad, bod og 2 soverom. Det medfølger garasje og grillstue.
-4 soverom
-2 bad
-Garasje
-Utsikt
NB: Knappen for å vise hele beskrivelsen har kun en visuell effekt.
NB: Knappen for å vise hele beskrivelsen har kun en visuell effekt.
Salgsoppgaven beskriver vesentlig og lovpålagt informasjon om eiendommen
Se komplett salgsoppgaveNyttige lenker
Nærområdet
Proaktiv Eiendomsmegling Sarpsborg
Alltid tid til deg
Annonseinformasjon
| FINN-kode | 451802370 |
|---|---|
| Sist endret | 26. feb. 2026 15:07 |
| Referanse | 1700260058 |
Annonsene kan være mangelfulle i forhold til lovpålagt opplysningsplikt. Før bindende avtale inngås oppfordres interessenter til å innhente komplett informasjon fra meglerforetaket, selger eller utleier.
















































