Bildegalleri

PrivatMegleren ved Bent W. Johansen har gleden av å prestere Revyveien 15 (foto: Marika Mørkestøl)
Lørenskog / Snøbyen
Lekkert rekkehus fra 2018 - Solrike uteplasser - 2 bad - Garasjeplass m/lader - A-konto fjernvarme - Meget barnevennlig!
Prisantydning6 990 000 kr
Nøkkelinfo
- Boligtype
- Rekkehus
- Eieform
- Selveier
- Soverom
- 3
- Internt bruksareal
- 117 m² (BRA-i)
- Bruksareal
- 123 m²
- Eksternt bruksareal
- 6 m² (BRA-e)
- Balkong/Terrasse
- 17 m² (TBA)
- Byggeår
- 2018
- Energimerking
- B - Mørkegrønn
- Rom
- 4
- Tomteareal
- 35 m² (eiet)
Fasiliteter
Barnevennlig
Balkong/Terrasse
Garasje/P-plass
Kabel-TV
Offentlig vann/kloakk
Parkett
Turterreng
Sentralt
Bredbåndstilknytning
Moderne
Rolig
Lademulighet
Balansert ventilasjon
Om boligen
Velkommen til Revyveien 15 - et lekkert rekkehus fra 2018 med flotte uteplasser og herlige solforhold!
Boligen ligger i populære Lørenskog Stasjonsby - et sentralt og svært barnevennlig område med kort vei til skoler, barnehager, dagligvare, kollektivtransport og flotte rekreasjonsområder. Her bor du med nærhet til både Langvannet, Østmarka og et bredt servicetilbud, samtidig som Oslo sentrum er kun en kort reise unna.
Rekkehuset er et vakkert hjem med god standard, flotte materialvalg og balansert ventilasjon.
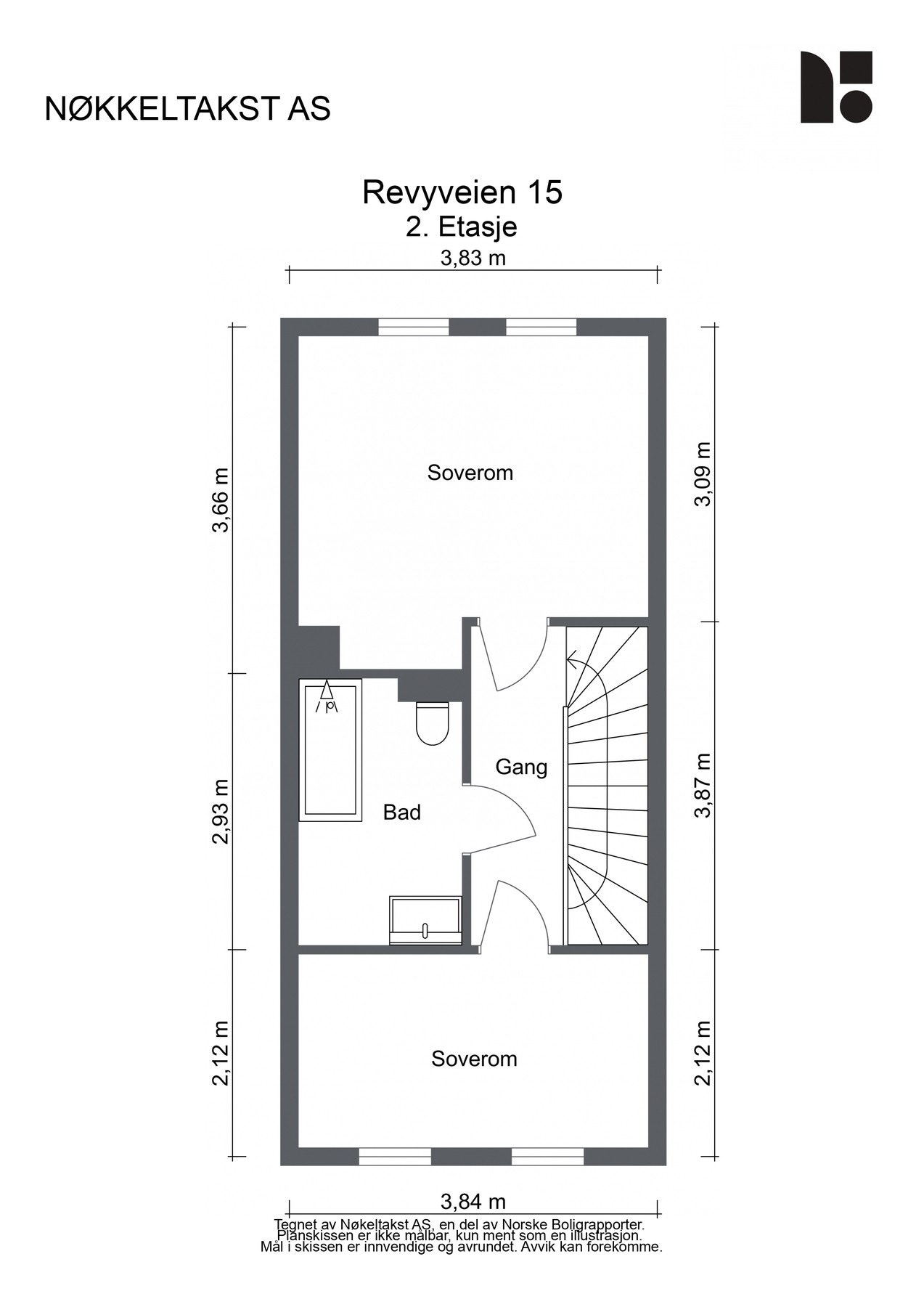
Boligen har en innholdsrik planløsning over tre plan med entré, stue, kjøkken fra Kvik, tre soverom, to lekre bad, separat toalettrom og eget vaskerom. Uteplassene består av sydvestvendt balkong og terrasse.
Boligen holder en moderne standard og byr på gode løsninger for både familieliv og hverdag. Boligen har god lagringsplass i 3 boder. Med boligen følger garasjeplass m/lader i oppvarmet anlegg.
Velkommen!
Boligen ligger i populære Lørenskog Stasjonsby - et sentralt og svært barnevennlig område med kort vei til skoler, barnehager, dagligvare, kollektivtransport og flotte rekreasjonsområder. Her bor du med nærhet til både Langvannet, Østmarka og et bredt servicetilbud, samtidig som Oslo sentrum er kun en kort reise unna.
Rekkehuset er et vakkert hjem med god standard, flotte materialvalg og balansert ventilasjon.
Boligen har en innholdsrik planløsning over tre plan med entré, stue, kjøkken fra Kvik, tre soverom, to lekre bad, separat toalettrom og eget vaskerom. Uteplassene består av sydvestvendt balkong og terrasse.
Boligen holder en moderne standard og byr på gode løsninger for både familieliv og hverdag. Boligen har god lagringsplass i 3 boder. Med boligen følger garasjeplass m/lader i oppvarmet anlegg.
Velkommen!
NB: Knappen for å vise hele beskrivelsen har kun en visuell effekt.
NB: Knappen for å vise hele beskrivelsen har kun en visuell effekt.
Salgsoppgaven beskriver vesentlig og lovpålagt informasjon om eiendommen
Se komplett salgsoppgaveNyttige lenker
Nærområdet

PrivatMegleren Infinita
Kun det beste på dine vegne
Annonseinformasjon
| FINN-kode | 451773826 |
|---|---|
| Sist endret | 11. mai 2026 06:05 |
| Referanse | 174260013 |
Annonsene kan være mangelfulle i forhold til lovpålagt opplysningsplikt. Før bindende avtale inngås oppfordres interessenter til å innhente komplett informasjon fra meglerforetaket, selger eller utleier.
























































