Bildegalleri

Velkommen til Lillian Byes veg 125, presentert av Johannes Tømmerås!
Utleir
LEKKERT REKKEHUS PÅ 3 PLAN FRA 2006. SOLRIK TERRASSE. 2 STUER OG BAD. Fast P-plass i carport med elbillader. 2 boder.
Prisantydning4 790 000 kr
Nøkkelinfo
- Boligtype
- Rekkehus
- Eieform
- Eier (Selveier)
- Soverom
- 3
- Internt bruksareal
- 113 m² (BRA-i)
- Bruksareal
- 120 m²
- Eksternt bruksareal
- 7 m² (BRA-e)
- Balkong/Terrasse
- 24 m² (TBA)
- Byggeår
- 2006
- Energimerking
- D - Mørkegrønn
- Rom
- 5
- Tomt
- Eiet
Fasiliteter
Barnevennlig
Balkong/Terrasse
Garasje/P-plass
Kabel-TV
Offentlig vann/kloakk
Ingen gjenboere
Turterreng
Utsikt
Sentralt
Bredbåndstilknytning
Moderne
Rolig
Lademulighet
Visning
torsdag, 26. februar
16:30 – 17:15
Våre visninger har påmelding. Dette gjør vi for å kunne yte bedre service for våre kunder. Verdifullt for boligkjøper og for oss. Vi anbefaler at salgsoppgaven lastes ned digitalt før visning, og ring oss gjerne på forhånd for spørsmål om boligen. Passer ikke angitt tidspunkt, ta kontakt så finner vi en løsning. Skulle det mot formodning ikke være påmeldte til angitt visningstidspunkt vil ikke visning bli gjennomført.
Om boligen
Velkommen til Lillian Byes veg 125, presentert av Johannes Tømmerås! Et lekkert rekkehus med familievennlig beliggenhet i populært boområde.
Kvaliteter vi ønsker å fremheve:
- Pent og innbydende rekkehus som holder en fin standard
- Fint kjøkken oppgradert i 2016 som har fått TG1 av takstmann
- 2 romslige stuer
- Oppgradert bad fra 2024 med ny overflatebehandling av gulv, vegger og himling, samt nye innredninger i 2024
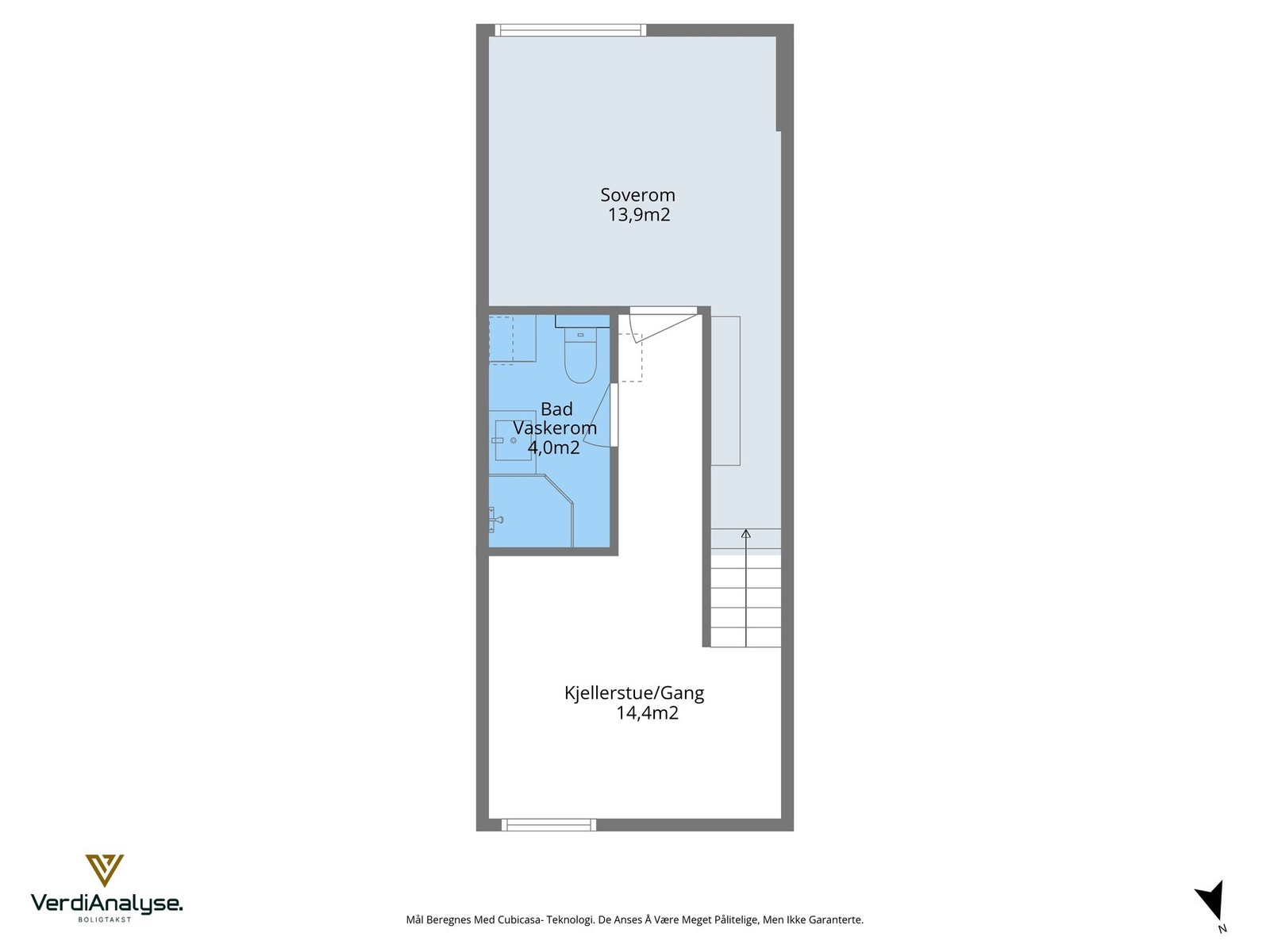
- Flott bad i kjelleren. 2 bad totalt i boligen
- Store terrasser på begge sider gjør at man kan flytte seg rundt etter solen og virkelig nyte sommeren
- Innbydende flislagt entré med varme i gulv
- Fjernvarme
- Lave felleskostnader
- Fast parkeringsplass i carport med elbillader
- Bod og sportsbod for lagringsplass
- Rolig område med gode turmuligheter
- Gangavstand til flere servicefunksjoner
Velkommen til en hyggelig visning
Kvaliteter vi ønsker å fremheve:
- Pent og innbydende rekkehus som holder en fin standard
- Fint kjøkken oppgradert i 2016 som har fått TG1 av takstmann
- 2 romslige stuer
- Oppgradert bad fra 2024 med ny overflatebehandling av gulv, vegger og himling, samt nye innredninger i 2024
- Flott bad i kjelleren. 2 bad totalt i boligen
- Store terrasser på begge sider gjør at man kan flytte seg rundt etter solen og virkelig nyte sommeren
- Innbydende flislagt entré med varme i gulv
- Fjernvarme
- Lave felleskostnader
- Fast parkeringsplass i carport med elbillader
- Bod og sportsbod for lagringsplass
- Rolig område med gode turmuligheter
- Gangavstand til flere servicefunksjoner
Velkommen til en hyggelig visning
NB: Knappen for å vise hele beskrivelsen har kun en visuell effekt.
NB: Knappen for å vise hele beskrivelsen har kun en visuell effekt.
Salgsoppgaven beskriver vesentlig og lovpålagt informasjon om eiendommen
Se komplett salgsoppgaveNyttige lenker
Nærområdet
EiendomsMegler 1 Lerkendal
Vi loser deg trygt gjennom hele boligsalget
Annonseinformasjon
| FINN-kode | 451712917 |
|---|---|
| Sist endret | 18. feb. 2026 19:39 |
| Referanse | 37250343 |
Annonsene kan være mangelfulle i forhold til lovpålagt opplysningsplikt. Før bindende avtale inngås oppfordres interessenter til å innhente komplett informasjon fra meglerforetaket, selger eller utleier.










































