Bildegalleri

Nordvik Eiendom v/ Nora Benedikte Haugen har gleden av å presentere Styrilia 37! Foto: Anders Botnmark.
Eidsvoll
Sjarmerende og innholdsrik enebolig med fantastisk utsikt og frodig hage! Stor stue og kjøkken, to bad, dobbeltgarasje.
Prisantydning4 500 000 kr
Nøkkelinfo
- Boligtype
- Enebolig
- Eieform
- Eier (Selveier)
- Soverom
- 4
- Internt bruksareal
- 163 m² (BRA-i)
- Bruksareal
- 209 m²
- Eksternt bruksareal
- 46 m² (BRA-e)
- Balkong/Terrasse
- 49 m² (TBA)
- Etasje
- 2
- Byggeår
- 1977
- Energimerking
- F
- Rom
- 5
- Tomteareal
- 803 m² (eiet)
Fasiliteter
Aircondition
Alarm
Balkong/Terrasse
Barnevennlig
Bredbåndstilknytning
Garasje/P-plass
Hage
Kjæledyr tillatt
Offentlig vann/kloakk
Parkett
Peis/Ildsted
Rolig
Sentralt
Utsikt
Turterreng
Visning
søndag, 08. mars
14:00 – 15:00
Alle våre visninger har påmelding. På denne måten sikrer vi at megler har god oversikt og tid til å imøtekomme alle interessenter. Meld deg på visning ved å trykke på lenken visningspåmelding.
VisningspåmeldingOm boligen
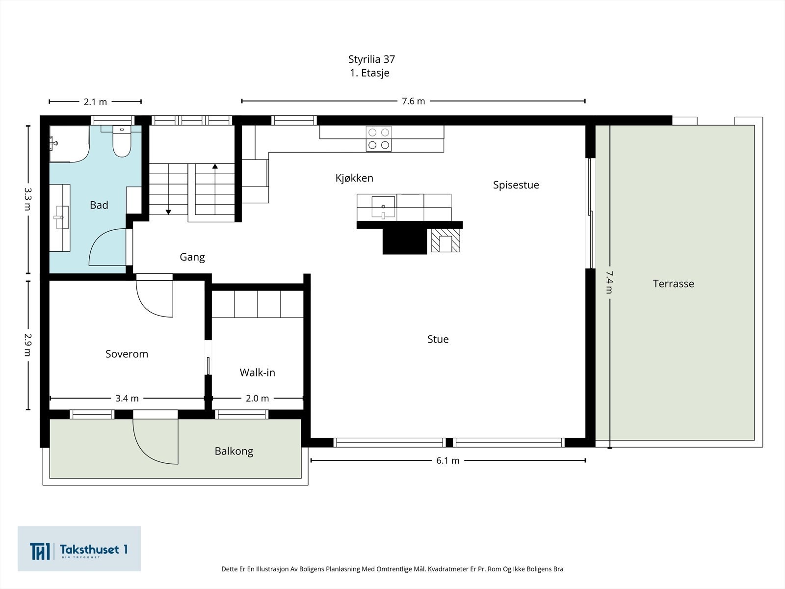
Velkommen til Styrilia 37! Denne eneboligen er full av sjarm og sjel, og innbyr til et godt familieliv. Her får du et hus over to plan, men en god og praktisk planløsning, med gode kvaliteter. I hovedetasjen er det et stort, sosialt allrom med stue, kjøkken og spisestue, med store vinduer mot vest og en nydelig utsikt. Fra stuen er det utgang til en romslig terrasse med gode solforhold. Tomta på over 800 kvm byr på god boltreplass for hele familien, og hagen er godt opparbeidet med frukttrær, bærbusker og plantekasser - i tillegg til et drivhus som lar deg dyrke hageinteressen.
Kort fortalt:
- Romslig enebolig over to plan
- Stort sosial allrom med store vindusflater
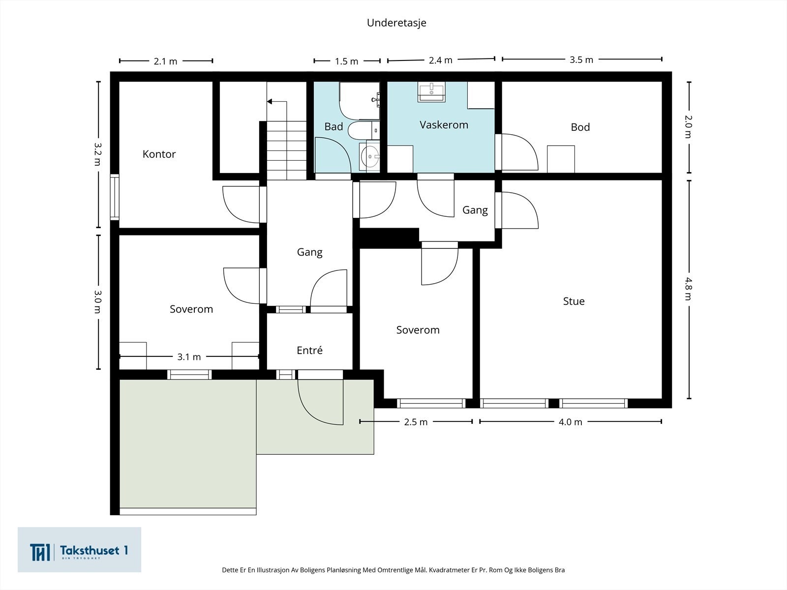
- 2 bad og vaskerom
- 4 sov
- Frodig, godt opparbeidet hage, og flere uteplasser
- Dobbeltgarasje
- Nydelig utsikt
Kort fortalt:
- Romslig enebolig over to plan
- Stort sosial allrom med store vindusflater
- 2 bad og vaskerom
- 4 sov
- Frodig, godt opparbeidet hage, og flere uteplasser
- Dobbeltgarasje
- Nydelig utsikt
NB: Knappen for å vise hele beskrivelsen har kun en visuell effekt.
NB: Knappen for å vise hele beskrivelsen har kun en visuell effekt.
Salgsoppgaven beskriver vesentlig og lovpålagt informasjon om eiendommen
Se komplett salgsoppgaveNyttige lenker
Nærområdet
Nordvik Lillestrøm
Annonseinformasjon
| FINN-kode | 451704442 |
|---|---|
| Sist endret | 26. feb. 2026 14:23 |
| Referanse | 60-0024/26 |
Annonsene kan være mangelfulle i forhold til lovpålagt opplysningsplikt. Før bindende avtale inngås oppfordres interessenter til å innhente komplett informasjon fra meglerforetaket, selger eller utleier.

















































