Bildegalleri

DNB Eiendom v/ Julie Kihle Kristiansen har gleden av å presentere Semsbyveien 73C!
Sem / Tønsberg
Meget innholdsrik & tiltalende enebolig fra 2015-Dobbelgarasje, stor terrasse, 4 sov & 2 bad-Sentral beliggenhet på Sem!
Prisantydning5 990 000 kr
Nøkkelinfo
- Boligtype
- Enebolig
- Eieform
- Eier (Selveier)
- Soverom
- 4
- Internt bruksareal
- 160 m² (BRA-i)
- Bruksareal
- 230 m²
- Eksternt bruksareal
- 70 m² (BRA-e)
- Balkong/Terrasse
- 202 m² (TBA)
- Etasje
- 2
- Byggeår
- 2015
- Energimerking
- C - Lysegrønn
- Rom
- 6
- Tomteareal
- 516 m² (eiet)
Fasiliteter
Balkong/Terrasse
Barnevennlig
Garasje/P-plass
Sentralt
Visning
søndag, 01. mars
15:30 – 16:15
Visning etter avtale / påmelding. Ta kontakt med megler på tlf. 466 94 950 eller registrer deg via annonsen.
Visning uten forhåndspåmeldte 3 timer før oppstart vil ikke bli avholdt.
VisningspåmeldingOm boligen
Velkommen til Semsbyveien 73 C!
Dette er en meget innholdsrik og tiltalende enebolig fra 2015 i klassisk stil, beliggende i et attraktivt og sentralt boligområde på Sem. Det er kort vei til alt man trenger i hverdagen, herunder skole, barnehage, dagligvare og bussforbindelser.
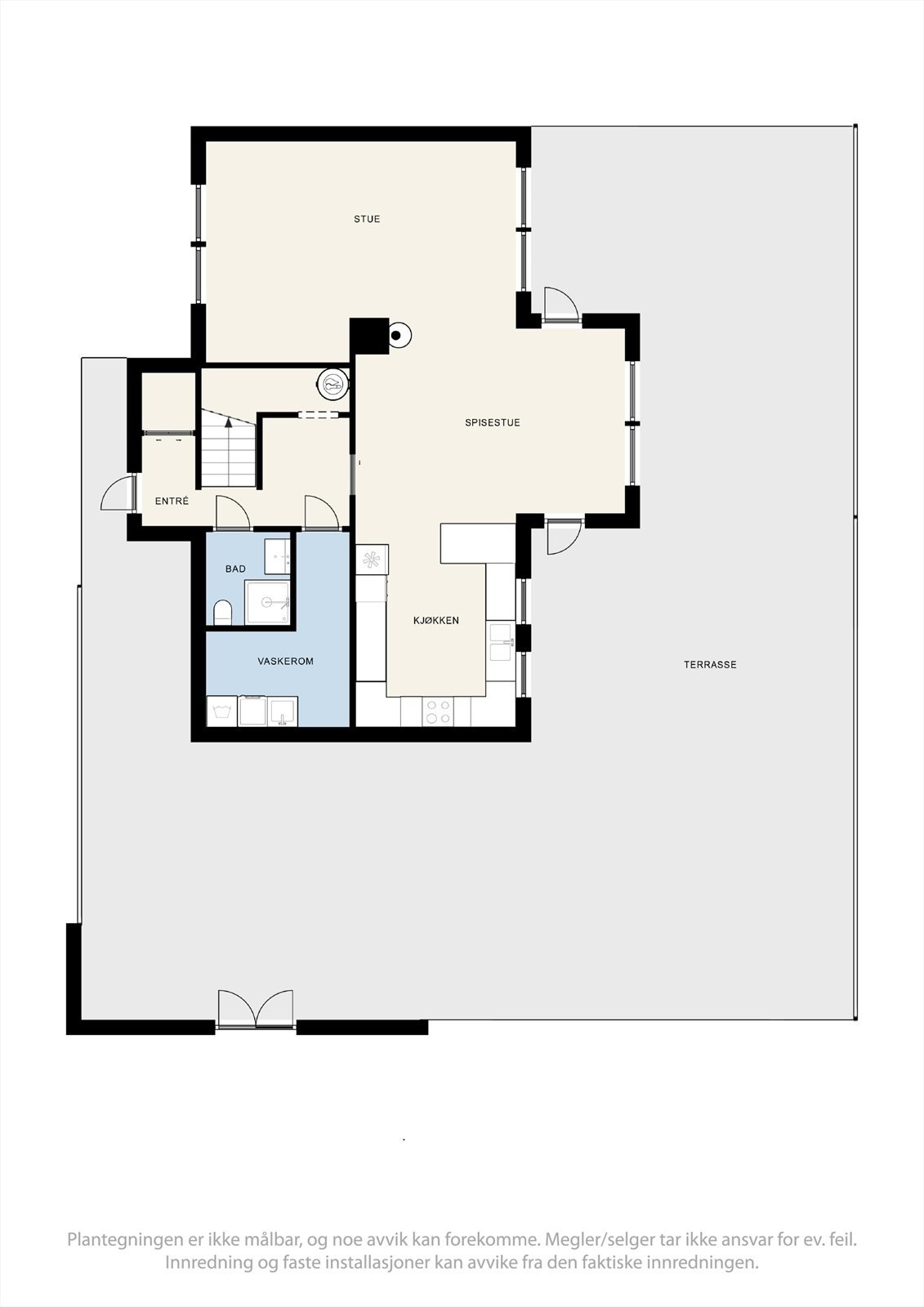
Boligen går over to plan og byr på en gjennomtenkt planløsning med gode romstørrelser og rikelig med naturlig lys. Her får du blant annet fire soverom, to bad, to stuer samt eget vaskerom - perfekt for barnefamilien eller for deg som ønsker god plass og fleksible løsninger.
Eiendommen har frittliggende dobbelgarasje med elbillader og gode lagringsmuligheter i utv. bod. Tomten er tilnærmet flat og lettstelt. En svært komplett bolig med attraktiv beliggenhet nær skole, barnehage, servicetilbud og kollektivtransport.
Dette er en meget innholdsrik og tiltalende enebolig fra 2015 i klassisk stil, beliggende i et attraktivt og sentralt boligområde på Sem. Det er kort vei til alt man trenger i hverdagen, herunder skole, barnehage, dagligvare og bussforbindelser.
Boligen går over to plan og byr på en gjennomtenkt planløsning med gode romstørrelser og rikelig med naturlig lys. Her får du blant annet fire soverom, to bad, to stuer samt eget vaskerom - perfekt for barnefamilien eller for deg som ønsker god plass og fleksible løsninger.
Eiendommen har frittliggende dobbelgarasje med elbillader og gode lagringsmuligheter i utv. bod. Tomten er tilnærmet flat og lettstelt. En svært komplett bolig med attraktiv beliggenhet nær skole, barnehage, servicetilbud og kollektivtransport.
NB: Knappen for å vise hele beskrivelsen har kun en visuell effekt.
NB: Knappen for å vise hele beskrivelsen har kun en visuell effekt.
Salgsoppgaven beskriver vesentlig og lovpålagt informasjon om eiendommen
Se komplett salgsoppgaveNyttige lenker
Nærområdet
DNB Eiendom AS
Verdifulle salg
Annonseinformasjon
| FINN-kode | 451675291 |
|---|---|
| Sist endret | 27. feb. 2026 18:13 |
| Referanse | 606260061 |
Annonsene kan være mangelfulle i forhold til lovpålagt opplysningsplikt. Før bindende avtale inngås oppfordres interessenter til å innhente komplett informasjon fra meglerforetaket, selger eller utleier.









































