Bildegalleri

objpict_12206297323073_0.jpg
Sentrum
Stor leilighet med flott utsikt over byen på hele 98! kvm -mulighet for 3 soverom
Prisantydning1 350 000 kr
Nøkkelinfo
- Boligtype
- Leilighet
- Eieform
- Andel
- Soverom
- 2
- Internt bruksareal
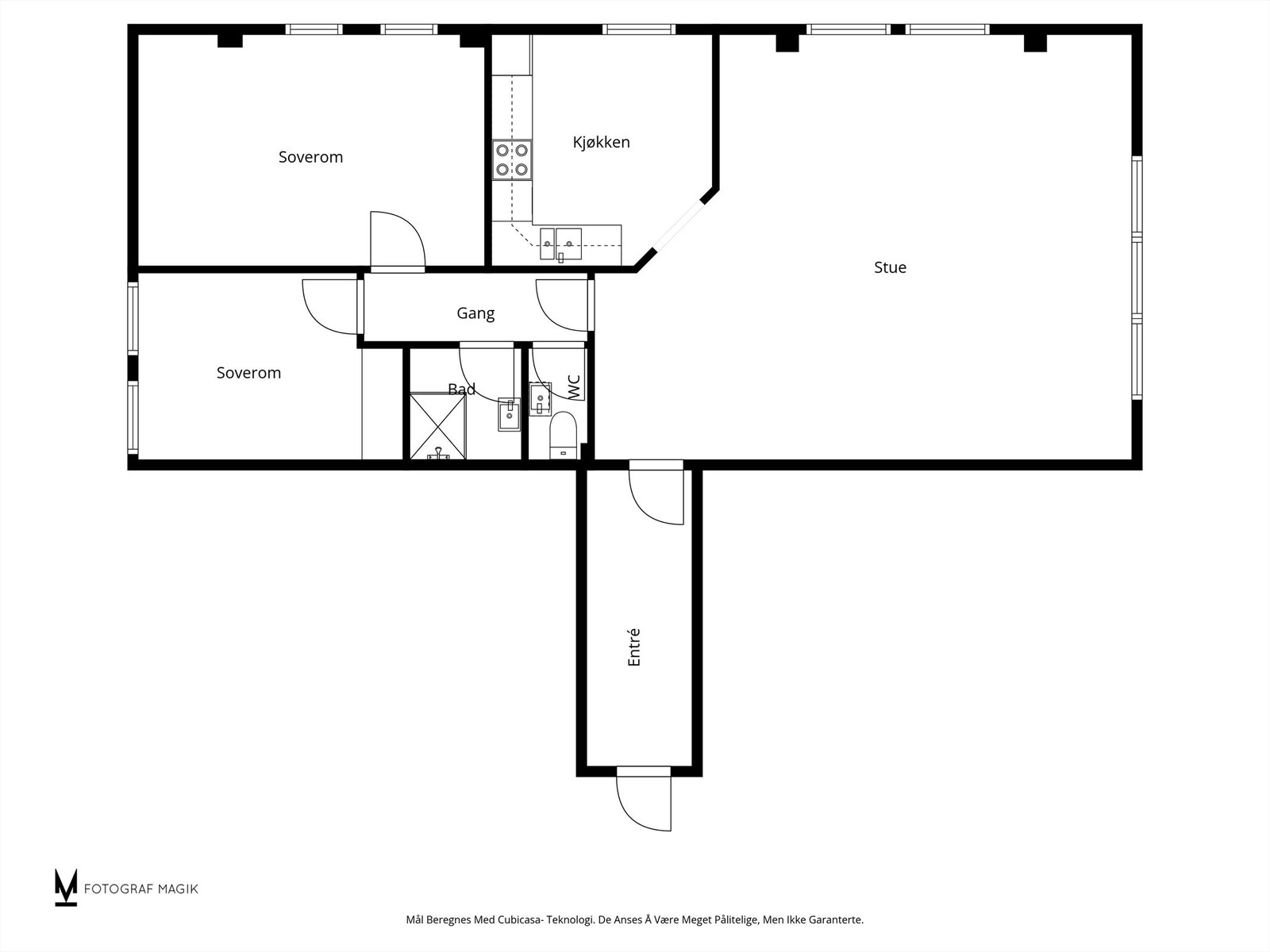
- 98 m² (BRA-i)
- Bruksareal
- 98 m²
- Etasje
- 6
- Byggeår
- 1964
- Energimerking
- Rom
- 3
- Tomteareal
- 954 m² (eiet)
Fasiliteter
Heis
Ingen gjenboere
Offentlig vann/kloakk
Sentralt
Utsikt
Vaktmester-/vektertjeneste
Visning
tirsdag, 26. mai
16:30 – 17:00
For å delta på visning, ber vi om at du melder deg på. Da sikrer vi at du får nødvendig informasjon og at det er satt av tilstrekkelig med tid. Kontakt megler dersom annet tidspunkt ønskes. Husk å lese salgsoppgaven før visningen, så du stiller forberedt. NB. Visning utgår dersom det ikke er noen påmeldte.
Ønsker du kun å bli holdt orientert, kan du fra eiendommens hjemmeside få varsel om solgtpris, eller kontakte megler.
VisningspåmeldingOm boligen
Vi ønsker alle interessenter velkommen til en lettstelt leilighet i øvre del av sentrum med flott utsikt som bærer helt til sjøen!
Leiligheten ligger høyt i sjette etasje og har en lys og innbydende atmosfære. Den har en gjennomtenkt planløsning med to soverom, en romslig stue og et kjøkken med naturlige soner for både matlaging og spising. Stuen er et flott samlepunkt med god plass til både større spisebord og romslige sofagrupper. Leiligheten disponerer også en bod i kjelleren, og bygningen har heis som gjør hverdagen enkel og praktisk. Her bor du sentralt i sentrum, med alle fasiliteter rett utenfor døren. Leiligheten byr på flotte muligheter til å sette sitt eget preg, samtidig som den er lettstelt.
Vi ønsker velkommen til en hyggelig visning
Leiligheten ligger høyt i sjette etasje og har en lys og innbydende atmosfære. Den har en gjennomtenkt planløsning med to soverom, en romslig stue og et kjøkken med naturlige soner for både matlaging og spising. Stuen er et flott samlepunkt med god plass til både større spisebord og romslige sofagrupper. Leiligheten disponerer også en bod i kjelleren, og bygningen har heis som gjør hverdagen enkel og praktisk. Her bor du sentralt i sentrum, med alle fasiliteter rett utenfor døren. Leiligheten byr på flotte muligheter til å sette sitt eget preg, samtidig som den er lettstelt.
Vi ønsker velkommen til en hyggelig visning
NB: Knappen for å vise hele beskrivelsen har kun en visuell effekt.
NB: Knappen for å vise hele beskrivelsen har kun en visuell effekt.
Salgsoppgaven beskriver vesentlig og lovpålagt informasjon om eiendommen
Se komplett salgsoppgaveNyttige lenker
Nærområdet
Krogsveen Sandefjord
Verdien av en god megler.
Annonseinformasjon
| FINN-kode | 451672767 |
|---|---|
| Sist endret | 18. mai 2026 12:12 |
| Referanse | KR22.25288 |
Annonsene kan være mangelfulle i forhold til lovpålagt opplysningsplikt. Før bindende avtale inngås oppfordres interessenter til å innhente komplett informasjon fra meglerforetaket, selger eller utleier.
























