Bildegalleri

EiendomsMegler1 v/Magnus Sollid har gleden av å presentere Myramarka 64!
Skatval
Nydelig enebolig på en stor og flott eiendom | Isolert dobbeltgarasje fra 2022 | Omfattende renovert mellom 2017-2024
Prisantydning6 190 000 kr
Nøkkelinfo
- Boligtype
- Enebolig
- Eieform
- Eier (Selveier)
- Soverom
- 6
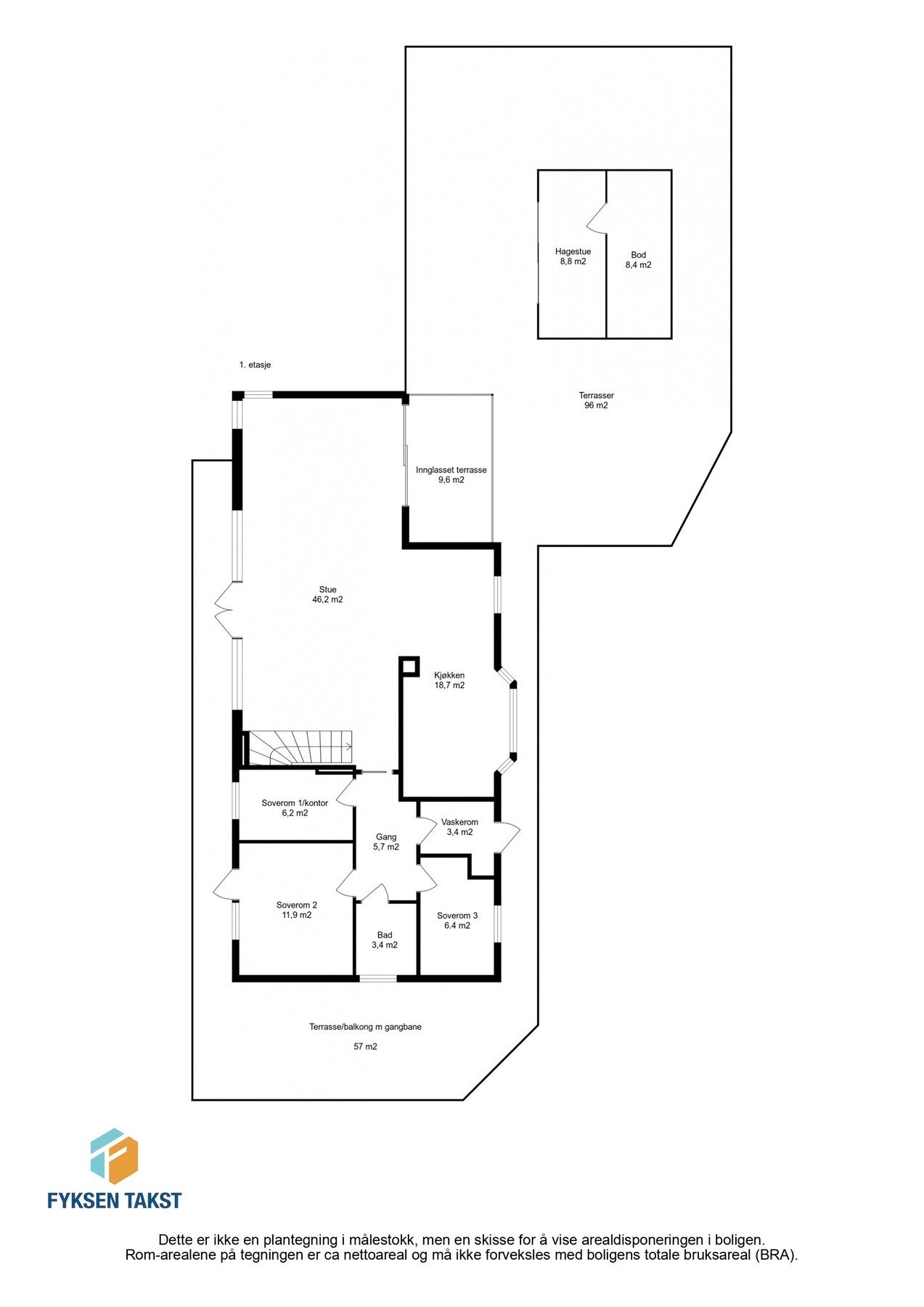
- Internt bruksareal
- 208 m² (BRA-i)
- Bruksareal
- 238 m²
- Eksternt bruksareal
- 19 m² (BRA-e)
- Innglasset balkong
- 11 m² (BRA-b)
- Balkong/Terrasse
- 170 m² (TBA)
- Byggeår
- 1974
- Energimerking
- D - Gul
- Rom
- 8
- Tomteareal
- 1 535 m² (eiet)
Fasiliteter
Barnevennlig
Balkong/Terrasse
Garasje/P-plass
Offentlig vann/kloakk
Peis/Ildsted
Turterreng
Utsikt
Rolig
Lademulighet
Visning
mandag, 09. mars
17:00 – 18:00
Våre visninger har påmelding. Dette gjør vi for å kunne yte bedre service for våre kunder. Verdifullt for boligkjøper og for oss. Vi anbefaler at salgsoppgaven lastes ned digitalt før visning, og ring oss gjerne på forhånd for spørsmål om boligen. Passer ikke angitt tidspunkt, ta kontakt så finner vi en løsning. Skulle det mot formodning ikke være påmeldte til angitt visningstidspunkt vil ikke visning bli gjennomført.
Om boligen
EiendomsMegler1 v /Magnus Sollid har gleden av å presentere Myramarka 64, en påkostet og velholdt enebolig på en frodig og stor eiendom på Skatval.
Utleiedelen har vært utleid over lang tid og har p.d.d. et leieforhold. Det er søkt og godkjent bruksendring av utleiedel, men mangler intern forbindelse til hoveddelen for å samsvare med godkjenningen En intern forbindelse til hoveddelen må opparbeides for å leie ut lovlig. Konferer med megler ved spørsmål.
Kvaliteter verdt å nevne:
- Svært påkostet enebolig siden 2017, se selgers egenerklæring for full oversikt.
- Nyere isolert dobbeltgarasje fra 2022 med bod i bakkant. Det er også montert el-billader.
- Sjarmerende og innholdsrike uteområder med blant annet hagestue (18kvm) og lekestue (7kvm). Stor boltringsplass for små og store.
- Terrasse rundt store deler av boligen og nydelig utsikt mot sør.
- Svært praktisk planløsning og masse innhold. Perfekt for barnefamilier!
Husk visningspåmelding!
Utleiedelen har vært utleid over lang tid og har p.d.d. et leieforhold. Det er søkt og godkjent bruksendring av utleiedel, men mangler intern forbindelse til hoveddelen for å samsvare med godkjenningen En intern forbindelse til hoveddelen må opparbeides for å leie ut lovlig. Konferer med megler ved spørsmål.
Kvaliteter verdt å nevne:
- Svært påkostet enebolig siden 2017, se selgers egenerklæring for full oversikt.
- Nyere isolert dobbeltgarasje fra 2022 med bod i bakkant. Det er også montert el-billader.
- Sjarmerende og innholdsrike uteområder med blant annet hagestue (18kvm) og lekestue (7kvm). Stor boltringsplass for små og store.
- Terrasse rundt store deler av boligen og nydelig utsikt mot sør.
- Svært praktisk planløsning og masse innhold. Perfekt for barnefamilier!
Husk visningspåmelding!
NB: Knappen for å vise hele beskrivelsen har kun en visuell effekt.
NB: Knappen for å vise hele beskrivelsen har kun en visuell effekt.
Salgsoppgaven beskriver vesentlig og lovpålagt informasjon om eiendommen
Se komplett salgsoppgaveNyttige lenker
Nærområdet
EiendomsMegler 1 Heimdal
Vi loser deg trygt gjennom hele boligsalget
Annonseinformasjon
| FINN-kode | 451669875 |
|---|---|
| Sist endret | 24. feb. 2026 12:27 |
| Referanse | 31260074 |
Annonsene kan være mangelfulle i forhold til lovpålagt opplysningsplikt. Før bindende avtale inngås oppfordres interessenter til å innhente komplett informasjon fra meglerforetaket, selger eller utleier.














































