Bildegalleri

Velkommen til Sjølystveien 82! Ta kontakt med megler ved spørsmål om boligen.
KANALBYEN
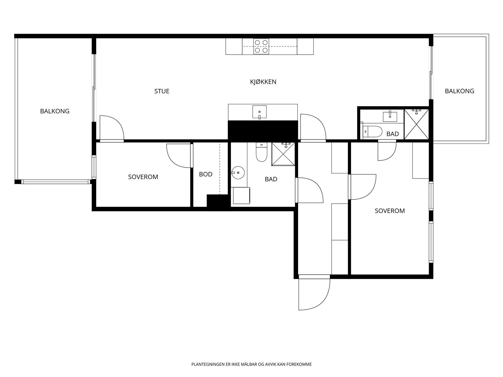
Lekker og påkostet leil. m/garasjeplass! To bad, to balkong., lekkert kjøkken, god takhøyde, sjøutsikt og gode solforh.!
Prisantydning7 490 000 kr
Nøkkelinfo
- Boligtype
- Leilighet
- Eieform
- Eier (Selveier)
- Soverom
- 2
- Internt bruksareal
- 87 m² (BRA-i)
- Bruksareal
- 93 m²
- Eksternt bruksareal
- 6 m² (BRA-e)
- Balkong/Terrasse
- 21 m² (TBA)
- Etasje
- 5
- Byggeår
- 2023
- Energimerking
- A - Mørkegrønn
- Rom
- 3
- Tomteareal
- 3 640 m² (eiet)
Fasiliteter
Aircondition
Balkong/Terrasse
Barnevennlig
Bredbåndstilknytning
Garasje/P-plass
Heis
Kjæledyr tillatt
Ingen gjenboere
Kabel-TV
Offentlig vann/kloakk
Parkett
Rolig
Sentralt
Utsikt
Bademulighet
Fiskemulighet
Turterreng
Lademulighet
Balansert ventilasjon
Visning
torsdag, 26. februar
16:00 – 17:00
Eiendomsmegler Norge sine visninger har påmelding. Påmelding gjøres enkelt ved å benytte knappen under. Ta kontakt med megler dersom oppsatt tidspunkt ikke passer. Det vil ikke bli avholdt visning uten påmelding, frist for påmelding er senest kl. 12.00 på visningsdagen. Husk å laste ned salgsoppgaven digitalt før visning. Velkommen til en hyggelig visning!
VisningspåmeldingOm boligen
Velkommen til Sjølystveien 82, en strøken nyere leilighet med svært god beliggenhet i Kanalbyen.
Er du på utkikk etter høy standard, sjøutsikt, gode solforhold og trappefri adkomst (heis) til både garasje og bakkeplan? Da bør du ta en nærmere titt på denne! Her får du alt dette og mer til, som et strøkent Strai-kjøkken, et integrert lydsystem, to fulle bad, to balkonger og gangavstand til det meste byen har å by på som bl.a. Kilden, Kunstsilo, Fiskebrygga, Kvadraturen og flotte friluftsområder.
Høydepunkt:
- To helflisede bad
- To balkonger
- Nydelig sjøutsikt
- Gode solforhold
- Smart lysstyring
- Integrert lydsystem
- Påkostet kjøkken
- Garasjeplass i kjeller
- Gjennomgående god takhøyde
- Vannbåren gulvvarme i de fleste rom
- Ingen TG2/TG3
Husk visningspåmelding!
Er du på utkikk etter høy standard, sjøutsikt, gode solforhold og trappefri adkomst (heis) til både garasje og bakkeplan? Da bør du ta en nærmere titt på denne! Her får du alt dette og mer til, som et strøkent Strai-kjøkken, et integrert lydsystem, to fulle bad, to balkonger og gangavstand til det meste byen har å by på som bl.a. Kilden, Kunstsilo, Fiskebrygga, Kvadraturen og flotte friluftsområder.
Høydepunkt:
- To helflisede bad
- To balkonger
- Nydelig sjøutsikt
- Gode solforhold
- Smart lysstyring
- Integrert lydsystem
- Påkostet kjøkken
- Garasjeplass i kjeller
- Gjennomgående god takhøyde
- Vannbåren gulvvarme i de fleste rom
- Ingen TG2/TG3
Husk visningspåmelding!
NB: Knappen for å vise hele beskrivelsen har kun en visuell effekt.
NB: Knappen for å vise hele beskrivelsen har kun en visuell effekt.
Salgsoppgaven beskriver vesentlig og lovpålagt informasjon om eiendommen
Se komplett salgsoppgaveNyttige lenker
Nærområdet
Eiendomsmegler Norge Kristiansand
Best der du bor
Annonseinformasjon
| FINN-kode | 451669773 |
|---|---|
| Sist endret | 18. feb. 2026 20:15 |
| Referanse | 50250325 |
Annonsene kan være mangelfulle i forhold til lovpålagt opplysningsplikt. Før bindende avtale inngås oppfordres interessenter til å innhente komplett informasjon fra meglerforetaket, selger eller utleier.


























































