Bildegalleri

Velkommen til Litlehagen 58, presentert av eiendomsmegler Christoffer Haugeberg Våge. Foto: Vestbris.
Ølen
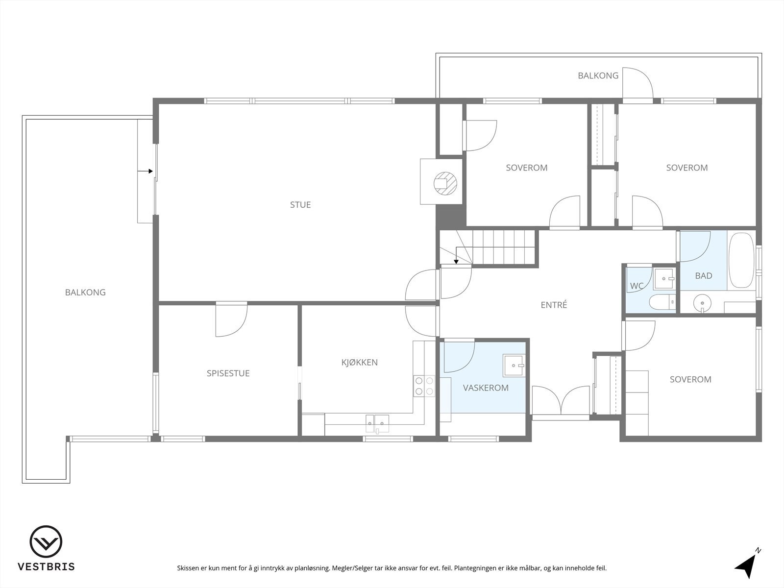
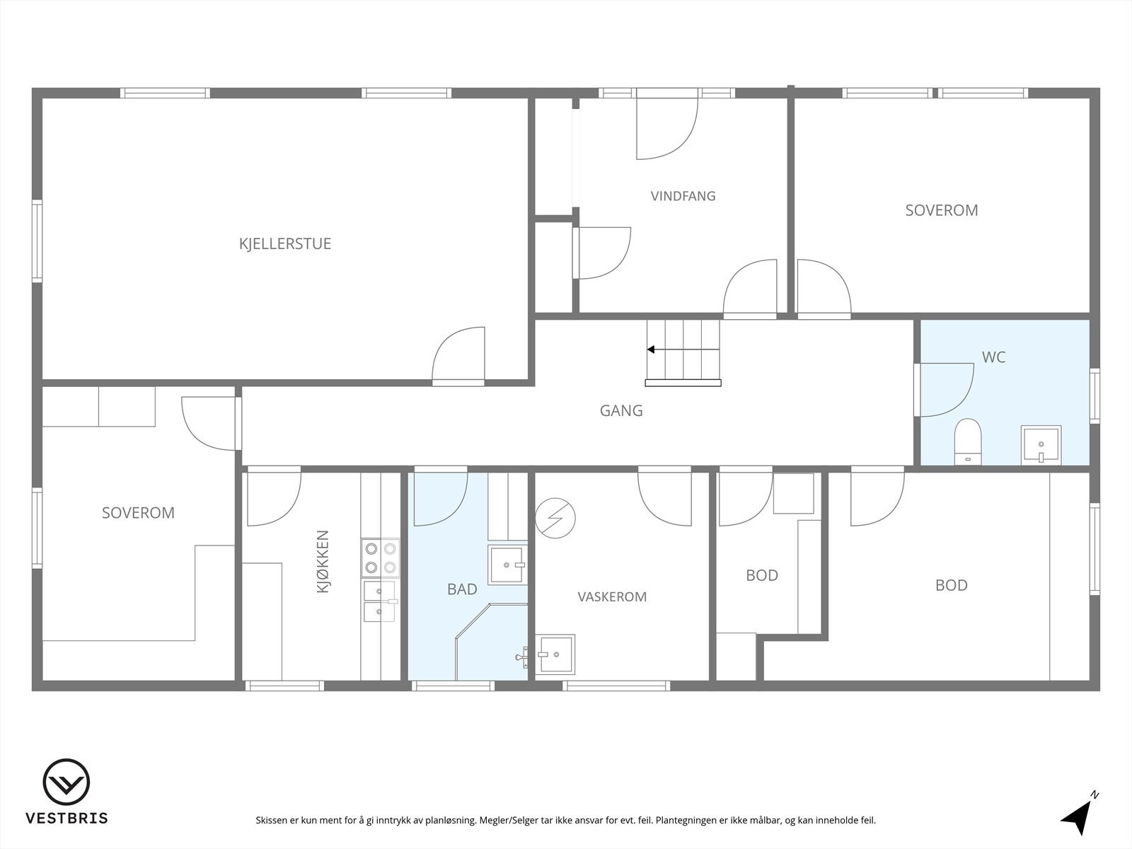
Innholdsrik enebolig med nydelig utsikt - Kjøkken fra 2020 - 5 soverom - Dobbel garasje - Renoveringsbehov - Sentralt
Prisantydning2 300 000 kr
Nøkkelinfo
- Boligtype
- Enebolig
- Eieform
- Eier (Selveier)
- Soverom
- 5
- Internt bruksareal
- 266 m² (BRA-i)
- Bruksareal
- 266 m²
- Balkong/Terrasse
- 38 m² (TBA)
- Byggeår
- 1972
- Rom
- 7
- Tomteareal
- 848 m² (eiet)
Fasiliteter
Balkong/Terrasse
Barnevennlig
Garasje/P-plass
Hage
Peis/Ildsted
Rolig
Sentralt
Utsikt
Turterreng
Lademulighet
Om boligen
Velkommen til Litlehagen 58! Dette er en innholdsrik enebolig med et stort potensial. Boligen har en god planløsning og byr på hele 5 soverom, noe som gjør den perfekt for en stor familie eller deg som ønsker ekstra plass. Med en fantastisk beliggenhet like ovenfor Ølen sentrum får du ikke bare nærhet til alle fasiliteter, men også en strålende utsikt og svært gode solforhold.
Boligen har renoveringsbehov, men med litt innsats kan dette bli en perle! Her får du sjansen til å sette ditt eget preg på en bolig som allerede har mange gode romløsninger og funksjoner.
Boligen har renoveringsbehov, men med litt innsats kan dette bli en perle! Her får du sjansen til å sette ditt eget preg på en bolig som allerede har mange gode romløsninger og funksjoner.
NB: Knappen for å vise hele beskrivelsen har kun en visuell effekt.
NB: Knappen for å vise hele beskrivelsen har kun en visuell effekt.
Salgsoppgaven beskriver vesentlig og lovpålagt informasjon om eiendommen
Se komplett salgsoppgaveNyttige lenker
Nærområdet
Eiendomsmegler 1 avd Tysvær
En del av Sparebank 1 Sør-Norge
Annonseinformasjon
| FINN-kode | 451665126 |
|---|---|
| Sist endret | 19. feb. 2026 09:58 |
| Referanse | 2503250173 |
Annonsene kan være mangelfulle i forhold til lovpålagt opplysningsplikt. Før bindende avtale inngås oppfordres interessenter til å innhente komplett informasjon fra meglerforetaket, selger eller utleier.



















































