Bildegalleri

Nordvik avd. Frogner har gleden av å presentere Professor Dahls gate 1. Foto: zOvenfra.
Majorstuen
Svært attraktiv og lys 3r toppleilighet med rolig og tilbaketrukket beliggenhet. Heis. Terrasse/Vinterhage. Garasjeleie*
Prisantydning8 490 000 kr
Nøkkelinfo
- Boligtype
- Leilighet
- Eieform
- Eier (Selveier)
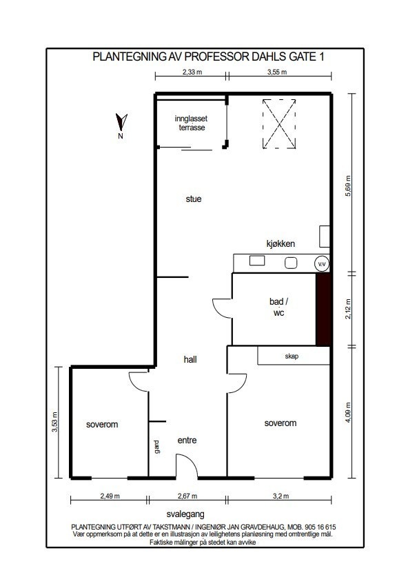
- Soverom
- 2
- Internt bruksareal
- 77 m² (BRA-i)
- Bruksareal
- 88 m²
- Eksternt bruksareal
- 8 m² (BRA-e)
- Innglasset balkong
- 3 m² (BRA-b)
- Etasje
- 4
- Byggeår
- 1885
- Energimerking
- E - Oransje
- Rom
- 3
- Tomteareal
- 1 021 m² (eiet)
Fasiliteter
Balkong/Terrasse
Barnevennlig
Bredbåndstilknytning
Garasje/P-plass
Heis
Kjæledyr tillatt
Ingen gjenboere
Kabel-TV
Offentlig vann/kloakk
Parkett
Rolig
Sentralt
Utsikt
Turterreng
Om boligen
Nordvik avd. Frogner har gleden av å presentere Professor Dahls gate 1 - En svært attraktiv 3-roms toppleilighet med rolig og tilbaketrukket beliggenhet, midt på Majorstuen, med umiddelbar tilgang til det byen har å by på. Leiligheten er gjennomgående, oppleves lys og har en god standard.
- Heis fra inngangspartiet og opp til leilighetens etasje. Trappefri adkomst!
- To gode soverom og romslig bad
- Sydvestvendt innglasset terrasse og svalgang med mulighet for å sette ut kafebord og stoler
- 1-stavs eikeparkett i alle oppholdsrom
- Kjellerbod på 7,7m² og noe oppbevaringsplass på loft
- Generøs takhøyde opp mot 3,88m
- Leiligheten er overflateoppusset høsten 2025
- Rolig beliggenhet i enveiskjørt gate
- Umiddelbar nærhet til restauranter, parker og kollektivt
NB: Knappen for å vise hele beskrivelsen har kun en visuell effekt.
NB: Knappen for å vise hele beskrivelsen har kun en visuell effekt.
Salgsoppgaven beskriver vesentlig og lovpålagt informasjon om eiendommen
Se komplett salgsoppgaveNyttige lenker
Nærområdet
Nordvik Frogner
Annonseinformasjon
| FINN-kode | 451645585 |
|---|---|
| Sist endret | 20. feb. 2026 15:25 |
| Referanse | 14-0649/25 |
Annonsene kan være mangelfulle i forhold til lovpålagt opplysningsplikt. Før bindende avtale inngås oppfordres interessenter til å innhente komplett informasjon fra meglerforetaket, selger eller utleier.































