Bildegalleri

Partner/Megler Fabian Robertino (92117474) i DNB Eiendom presenterer Storeveien 82. Husk visningspåmelding!
Pen & attraktiv del av tomannsbolig på populære Gressvik | Vestvendt, solrik balkong på hele 37m2 | P-plass | Sentralt
Prisantydning3 190 000 kr
Nøkkelinfo
- Boligtype
- Tomannsbolig
- Eieform
- Eier (Selveier)
- Soverom
- 1
- Internt bruksareal
- 64 m² (BRA-i)
- Bruksareal
- 64 m²
- Balkong/Terrasse
- 42 m² (TBA)
- Byggeår
- 1905
- Tomteareal
- 442 m² (festet)
- Festeavgift
- 2 000 kr
Fasiliteter
Balkong/Terrasse
Barnevennlig
Garasje/P-plass
Hage
Kjæledyr tillatt
Offentlig vann/kloakk
Peis/Ildsted
Rolig
Sentralt
Turterreng
Visning
tirsdag, 03. mars
17:00 – 17:45
Velkommen til visning! Meld deg på ved å trykke "visningspåmelding" i våre boligannonser. Ta gjerne kontakt med megler i forkant av visningen om du har spørsmål.
VisningspåmeldingOm boligen
Velkommen til Storveien 82, halvpart av vertikaldelt tomannsboligen på Gressvik. Boligen ligger i et attraktivt område med kort vei til jhyggelige Gressvik torg, idrettshall og handelssenter. Offentlig transport er lett tilgjengelig med bussforbindelse til Fredrikstad sentrum og videre til Oslo.
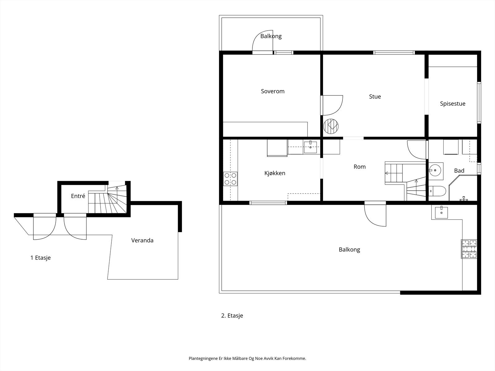
Boligen med et bruksareal på 64 m² har planløsning som inkluderer gang, bad, soverom, spisestue, stue, kjøkken og hall.
Uteplassen består av en vestvendt balkong på 37 m² og en østvendt balkong på 5 m².
Verdt å vite:
Velkommen til visning!
Boligen med et bruksareal på 64 m² har planløsning som inkluderer gang, bad, soverom, spisestue, stue, kjøkken og hall.
Uteplassen består av en vestvendt balkong på 37 m² og en østvendt balkong på 5 m².
Verdt å vite:
- God planløsning, stue med vedovn og varmepumpe
- To solrike balkonger
- Bad oppgradert i 2022
- Nye fronter og benkeplate på kjøkkenet i 2020
- Tinglyst rett til parkeringsplass
Velkommen til visning!
NB: Knappen for å vise hele beskrivelsen har kun en visuell effekt.
NB: Knappen for å vise hele beskrivelsen har kun en visuell effekt.
Salgsoppgaven beskriver vesentlig og lovpålagt informasjon om eiendommen
Se komplett salgsoppgaveNyttige lenker
Nærområdet
DNB Eiendom AS
Verdifulle salg
Annonseinformasjon
| FINN-kode | 451640140 |
|---|---|
| Sist endret | 22. feb. 2026 07:36 |
| Referanse | 217250353 |
Annonsene kan være mangelfulle i forhold til lovpålagt opplysningsplikt. Før bindende avtale inngås oppfordres interessenter til å innhente komplett informasjon fra meglerforetaket, selger eller utleier.















































