Bildegalleri

Velkommen til visning i Banebakken 41A!
Teieparken
Lekker, sentrumsnær 4-roms toppleilighet (2021) m/stor terrasse, sørvendt balkong, 2 bad og dir. heisadkomst - utsikt
Prisantydning9 900 000 kr
Nøkkelinfo
- Boligtype
- Leilighet
- Eieform
- Eier (Selveier)
- Soverom
- 3
- Internt bruksareal
- 101 m² (BRA-i)
- Bruksareal
- 106 m²
- Eksternt bruksareal
- 5 m² (BRA-e)
- Balkong/Terrasse
- 36 m² (TBA)
- Etasje
- 5
- Byggeår
- 2021
- Energimerking
- B - Mørkegrønn
- Tomteareal
- 2 058 m² (eiet)
Fasiliteter
Balkong/Terrasse
Garasje/P-plass
Heis
Offentlig vann/kloakk
Parkett
Turterreng
Utsikt
Sentralt
Bredbåndstilknytning
Moderne
Visning
søndag, 01. mars
13:30 – 14:30
Velkommen til visning!
Alle våre visninger har påmelding. På denne måten sikrer vi at megler har god oversikt og tid til å imøtekomme alle interessenter på beste måte. Dette er veldig verdifullt for boligkjøpere og for oss. Det er enkelt å melde seg på, og du kan like enkelt melde deg av. Kontakt også gjerne megler i forkant av visning dersom du har spørsmål.
Om boligen
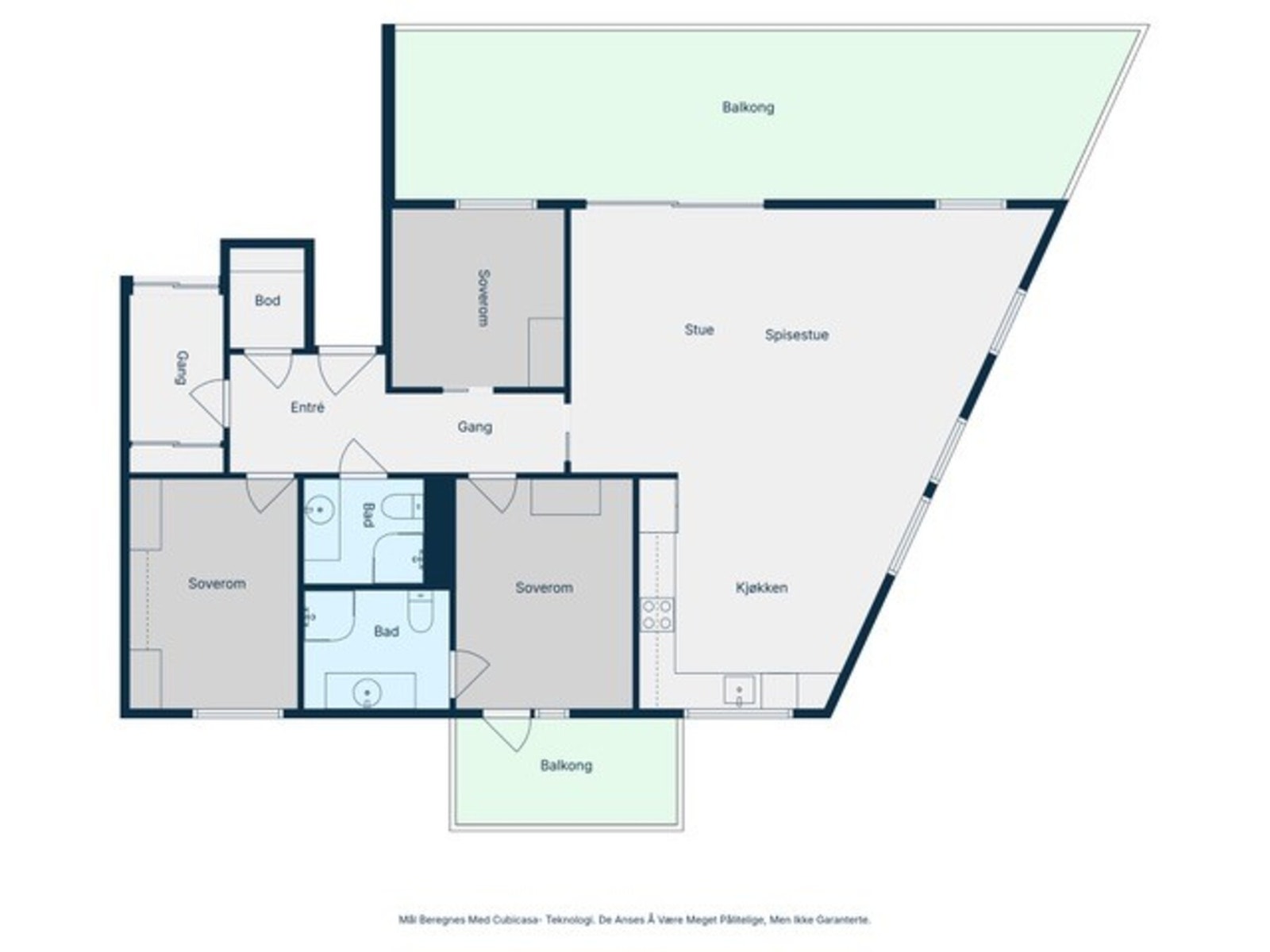
Banebakken 41 A er en lekker og moderne 4-roms selveierleilighet i toppetasjen med direkte heisadkomst. Leiligheten har vannbåren gulvvarme i alle rom, 1-stavs parkett og to delikate, flislagte bad. Planløsningen er effektiv og arealet er godt utnyttet med tre soverom og en åpen stue- og kjøkkenløsning.
Dette er en endeleilighet med vinduer på tre sider, noe som gir rikelig med dagslys, luftig romfølelse og flott utsikt. Fra stuen er det utgang til en romslig terrasse på ca. 30 kvm med god plass til både spisegruppe og sittegruppe. Hovedsoverommet har eget bad og utgang til en separat balkong. To uteplasser gir gode solforhold gjennom dagen.
Leiligheten har en innvendig bod i entréen samt en kjellerbod på ca. 5 kvm. Garasjeplass med elbillader medfølger.
Dette er en endeleilighet med vinduer på tre sider, noe som gir rikelig med dagslys, luftig romfølelse og flott utsikt. Fra stuen er det utgang til en romslig terrasse på ca. 30 kvm med god plass til både spisegruppe og sittegruppe. Hovedsoverommet har eget bad og utgang til en separat balkong. To uteplasser gir gode solforhold gjennom dagen.
Leiligheten har en innvendig bod i entréen samt en kjellerbod på ca. 5 kvm. Garasjeplass med elbillader medfølger.
NB: Knappen for å vise hele beskrivelsen har kun en visuell effekt.
NB: Knappen for å vise hele beskrivelsen har kun en visuell effekt.
Salgsoppgaven beskriver vesentlig og lovpålagt informasjon om eiendommen
Se komplett salgsoppgaveNyttige lenker
Nærområdet

PrivatMegleren Tønsberg
Kun det beste på dine vegne
Annonseinformasjon
| FINN-kode | 451629032 |
|---|---|
| Sist endret | 26. feb. 2026 14:32 |
| Referanse | 13260001 |
Annonsene kan være mangelfulle i forhold til lovpålagt opplysningsplikt. Før bindende avtale inngås oppfordres interessenter til å innhente komplett informasjon fra meglerforetaket, selger eller utleier.




















































