Bildegalleri

Velkommen til Gjeddevannsveien 8 - presentert av Maria Valentinsen Løken. Foto: Martine Eren Jacobsen.
Flateby/Enebakk
Innbydende enebolig over to plan + kjeller. Solrike terrasser på tilsammen 59 kvm. Garasje. Hage. Barnevennlig område.
Prisantydning5 700 000 kr
Nøkkelinfo
- Boligtype
- Enebolig
- Eieform
- Eier (Selveier)
- Soverom
- 4
- Internt bruksareal
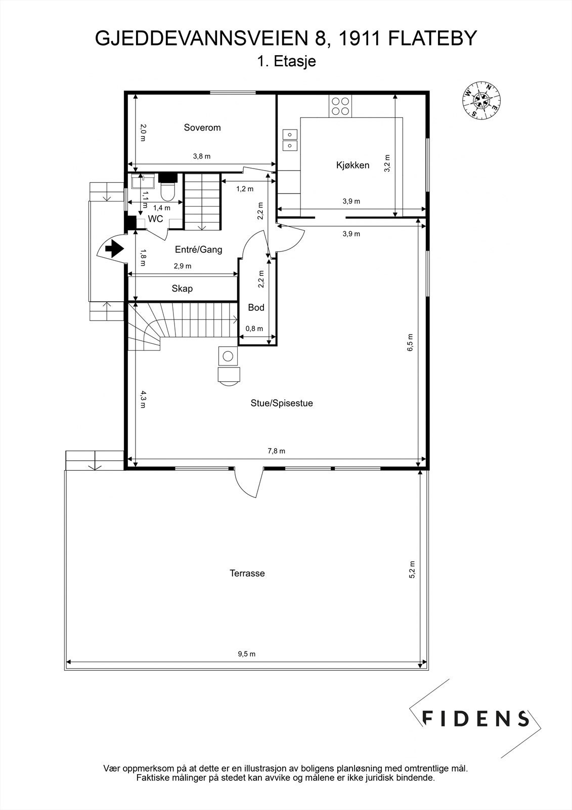
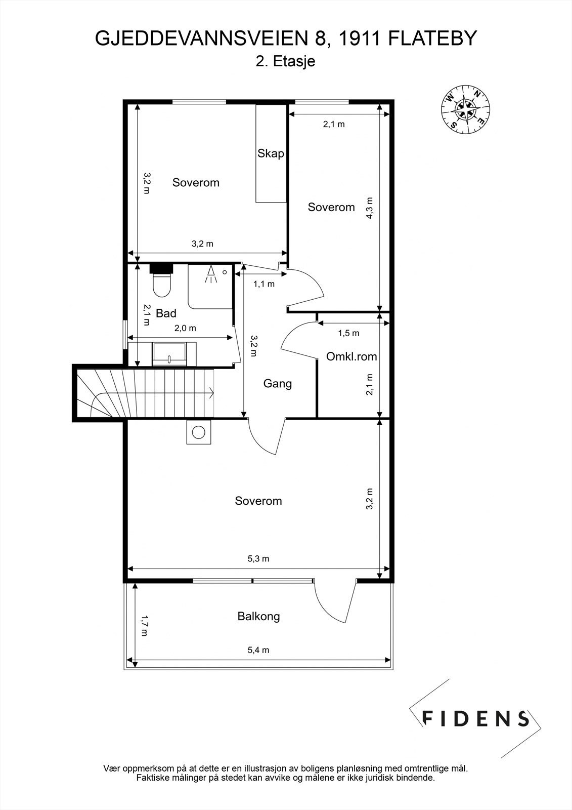
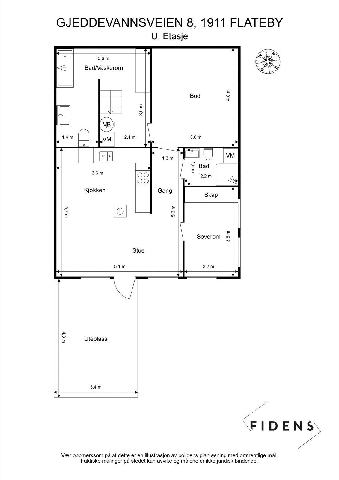
- 196 m² (BRA-i)
- Bruksareal
- 212 m²
- Eksternt bruksareal
- 16 m² (BRA-e)
- Balkong/Terrasse
- 59 m² (TBA)
- Etasje
- 3
- Byggeår
- 1982
- Rom
- 5
- Tomteareal
- 566 m² (eiet)
Fasiliteter
Balkong/Terrasse
Barnevennlig
Bredbåndstilknytning
Garasje/P-plass
Hage
Kjæledyr tillatt
Offentlig vann/kloakk
Rolig
Turterreng
Om boligen
Velkommen til Gjeddevannsveien 8 - en innbydende og koselig enebolig på Flateby, beliggende i et barnevennlig område med nærhet til barnehage og skole.
Kort fortalt:
- Funksjonell planløsning med 4 gode soverom
- Romslig stue med plass til både sofahjørne og spisegruppe
- Stilrent kjøkken fra 2022 med integrerte hvitevarer
- Oppgradert bad i 2020
- To solrike terrasser på hhv 49 og 10 kvm.
- Solcellepanel på tak
- Hage
- Separat vaskerom
- Varmpepumpe
- Garasje og biloppstillingsplass til 4-5 biler
- Barnevennlig område
- Kort gangavstand til barnehage, skoler, nærbutikk, offentlig transport
- Ca. 5 min gange til østmarka med utallige ski-, bade og rekreasjonsmuligheter.
- Det er 5 min til Flateby båthavn som egner seg perfekt på sommerstid.
Kort fortalt:
- Funksjonell planløsning med 4 gode soverom
- Romslig stue med plass til både sofahjørne og spisegruppe
- Stilrent kjøkken fra 2022 med integrerte hvitevarer
- Oppgradert bad i 2020
- To solrike terrasser på hhv 49 og 10 kvm.
- Solcellepanel på tak
- Hage
- Separat vaskerom
- Varmpepumpe
- Garasje og biloppstillingsplass til 4-5 biler
- Barnevennlig område
- Kort gangavstand til barnehage, skoler, nærbutikk, offentlig transport
- Ca. 5 min gange til østmarka med utallige ski-, bade og rekreasjonsmuligheter.
- Det er 5 min til Flateby båthavn som egner seg perfekt på sommerstid.
NB: Knappen for å vise hele beskrivelsen har kun en visuell effekt.
NB: Knappen for å vise hele beskrivelsen har kun en visuell effekt.
Salgsoppgaven beskriver vesentlig og lovpålagt informasjon om eiendommen
Se komplett salgsoppgaveNyttige lenker
Nærområdet
Nordvik St.Hanshaugen
Annonseinformasjon
| FINN-kode | 451624749 |
|---|---|
| Sist endret | 23. feb. 2026 09:22 |
| Referanse | 5-0054/26 |
Annonsene kan være mangelfulle i forhold til lovpålagt opplysningsplikt. Før bindende avtale inngås oppfordres interessenter til å innhente komplett informasjon fra meglerforetaket, selger eller utleier.





















































