Bildegalleri

Velkommen til Ellingsrudveien 23B - en svært romslig og innholdsrik enebolig over to plan med egen 3-roms utleiedel, fantastisk uteområde og solrike uteplasser. Foto: Mats Holst / Matsholst.no
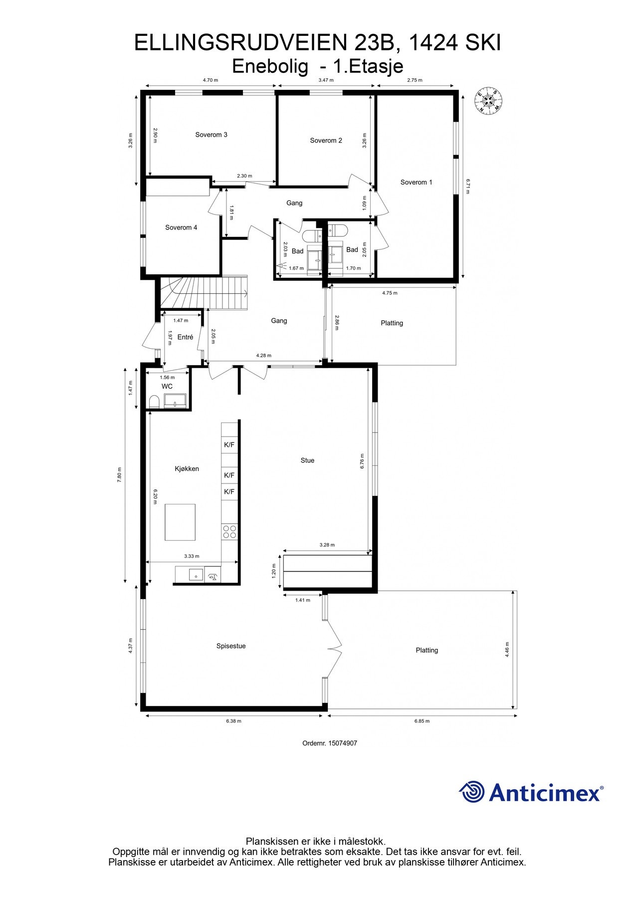
Stor enebolig i blindvei på 346 kvm | 1,4 mål tomt | 3-roms hybel utleid for 14.000,-/mnd | Usjenert solrik uteområde
Prisantydning10 000 000 kr
Nøkkelinfo
- Boligtype
- Enebolig
- Eieform
- Eier (Selveier)
- Soverom
- 5
- Internt bruksareal
- 346 m² (BRA-i)
- Bruksareal
- 346 m²
- Balkong/Terrasse
- 44 m² (TBA)
- Byggeår
- 1973
- Energimerking
- D - Gul
- Tomteareal
- 1 400 m² (eiet)
Fasiliteter
Barnevennlig
Balkong/Terrasse
Garasje/P-plass
Offentlig vann/kloakk
Peis/Ildsted
Turterreng
Sentralt
Rolig
Om boligen
Velkommen til Ellingsrudveien 23B - en svært romslig og innholdsrik enebolig over to plan med egen 3-roms utleiedel, fantastisk uteområde og solrike uteplasser. Boligen har alt på én flate i hovedetasjen med store, lyse oppholdsrom, hele 4 soverom og flere bad. Stor kjeller med god takhøyde, ekstra oppholdsrom og fleksible bruksområder.
Eiendommen byr på en fantastisk stor og usjenert hage, innerst i privat vei kun delt med én nabo, med sol fra morgen til kveld. Flere terrasser og uteplasser gir mulighet til å følge solen gjennom dagen. Overbygget hagestue gir en lun sone tidlig vår og sene sommerkvelder. Gode parkeringsmuligheter på egen tomt og praktiske uteboder.
Attraktiv og barnevennlig beliggenhet i rolige omgivelser, med gangavstand til buss og tog fra Ski - kun ca. 12 min til Oslo S med Follobanen. Nærhet til skoler, barnehager, skog og flotte turområder. Her får du den landlige følelsen med mye boltreplass og samtidig gangavstand til Ski sentrum.
Velkommen til visning!
Eiendommen byr på en fantastisk stor og usjenert hage, innerst i privat vei kun delt med én nabo, med sol fra morgen til kveld. Flere terrasser og uteplasser gir mulighet til å følge solen gjennom dagen. Overbygget hagestue gir en lun sone tidlig vår og sene sommerkvelder. Gode parkeringsmuligheter på egen tomt og praktiske uteboder.
Attraktiv og barnevennlig beliggenhet i rolige omgivelser, med gangavstand til buss og tog fra Ski - kun ca. 12 min til Oslo S med Follobanen. Nærhet til skoler, barnehager, skog og flotte turområder. Her får du den landlige følelsen med mye boltreplass og samtidig gangavstand til Ski sentrum.
Velkommen til visning!
NB: Knappen for å vise hele beskrivelsen har kun en visuell effekt.
NB: Knappen for å vise hele beskrivelsen har kun en visuell effekt.
Salgsoppgaven beskriver vesentlig og lovpålagt informasjon om eiendommen
Se komplett salgsoppgaveNyttige lenker
Nærområdet
EIE eiendomsmegling Follo
Annonseinformasjon
| FINN-kode | 451614640 |
|---|---|
| Sist endret | 05. mars 2026 13:45 |
| Referanse | 84250077 |
Annonsene kan være mangelfulle i forhold til lovpålagt opplysningsplikt. Før bindende avtale inngås oppfordres interessenter til å innhente komplett informasjon fra meglerforetaket, selger eller utleier.































































