Bildegalleri

Velkommen til Hovseterveien 40b presentert av Bjørn John Grini v/ Nordvik Bolig.
Solgt
Hovseter/Røa
Lys og gjennomgående 4-roms med attraktiv internbeliggenhet- Vestvendt balkong - Garasjeplass - God standard
Prisantydning6 500 000 kr
Nøkkelinfo
- Boligtype
- Leilighet
- Eieform
- Andel
- Soverom
- 3
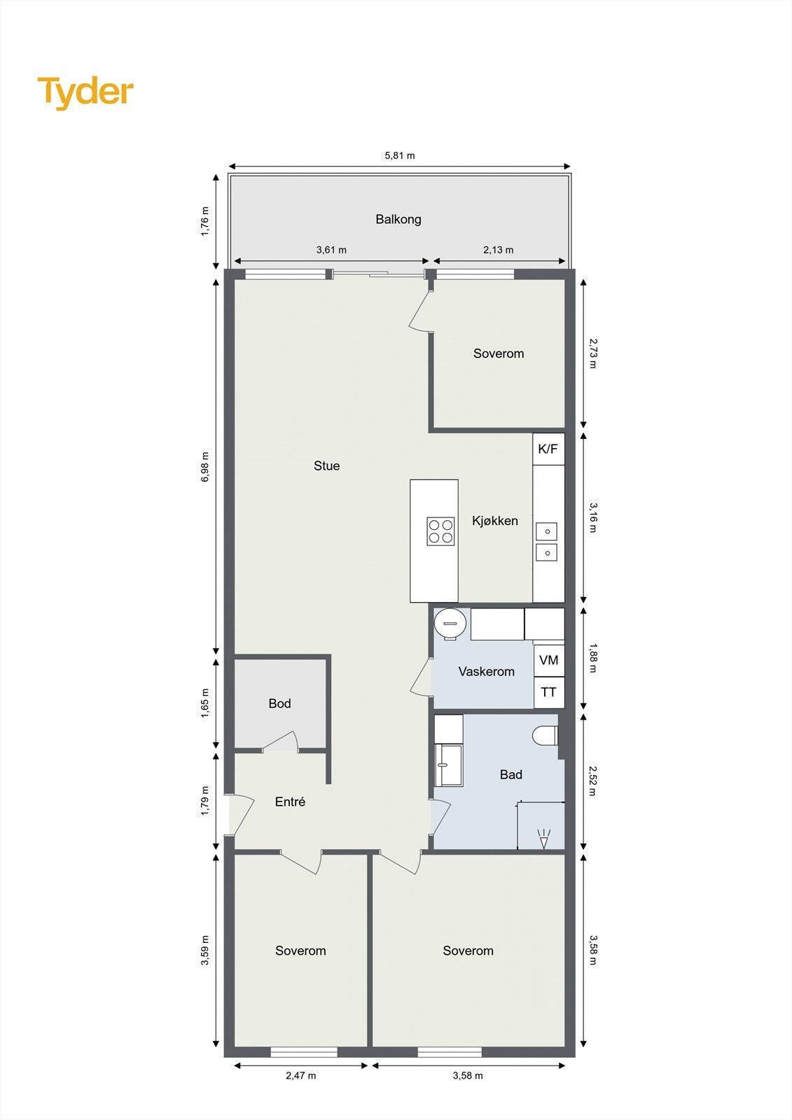
- Internt bruksareal
- 83 m² (BRA-i)
- Bruksareal
- 88 m²
- Eksternt bruksareal
- 5 m² (BRA-e)
- Balkong/Terrasse
- 10 m² (TBA)
- Etasje
- 3
- Byggeår
- 1972
- Energimerking
- F - Rød
- Rom
- 4
- Tomteareal
- 4 401 m² (eiet)
Fasiliteter
Balkong/Terrasse
Barnevennlig
Garasje/P-plass
Kjæledyr tillatt
Offentlig vann/kloakk
Parkett
Om boligen
Velkommen til Hovseterveien 40B - En lys og romslig 4-roms i populære Meklenborg borettslaget med god intern beliggenhet i 3.etasje. Usjenert og vestvendt balkong på 10 kvm med fritt utsyn mot grønne fellesområder. Boligen holder en god standard med flere oppgraderinger de senere årene, blant annet rehabilitert bad og vaskerom samt oppgradert elektrisk anlegg. Det medfølger p-plass i garasje. Eiendommen ligger i et rolig og skjermet boområde med flotte turmuligheter rett utenfor døren.
Høydepunkter:
- Gjennomgående
- Vestvendt balkong med gode solforhold
- Flott internbeliggenhet med herlig utsikt
- 3 gode soverom
- EL-anlegg oppgradert i 2017
- Bad og vaskerom rehabilitert i 2018
- Gulv fra 2020 med varme i stue/gang
- Garasjeplass
- Kort vei til butikker, T-bane, skole og barnehager
Høydepunkter:
- Gjennomgående
- Vestvendt balkong med gode solforhold
- Flott internbeliggenhet med herlig utsikt
- 3 gode soverom
- EL-anlegg oppgradert i 2017
- Bad og vaskerom rehabilitert i 2018
- Gulv fra 2020 med varme i stue/gang
- Garasjeplass
- Kort vei til butikker, T-bane, skole og barnehager
NB: Knappen for å vise hele beskrivelsen har kun en visuell effekt.
NB: Knappen for å vise hele beskrivelsen har kun en visuell effekt.
Salgsoppgaven beskriver vesentlig og lovpålagt informasjon om eiendommen
Se komplett salgsoppgaveNyttige lenker
Nærområdet
Nordvik Bygdøy Allé
Annonseinformasjon
| FINN-kode | 451614393 |
|---|---|
| Sist endret | 01. mars 2026 11:44 |
| Referanse | 13-0014/26 |
Annonsene kan være mangelfulle i forhold til lovpålagt opplysningsplikt. Før bindende avtale inngås oppfordres interessenter til å innhente komplett informasjon fra meglerforetaket, selger eller utleier.





























