Bildegalleri

Velkommen til Kristofer Jansons vei 45 presentert av Stian Yndestad v/Eiendomsmegler Norge
Rålekker 4-roms med høy standard | Totaloppusset 2025/2026 | Solrik balkong
Prisantydning3 990 000 kr
Nøkkelinfo
- Boligtype
- Leilighet
- Eieform
- Aksje
- Soverom
- 3
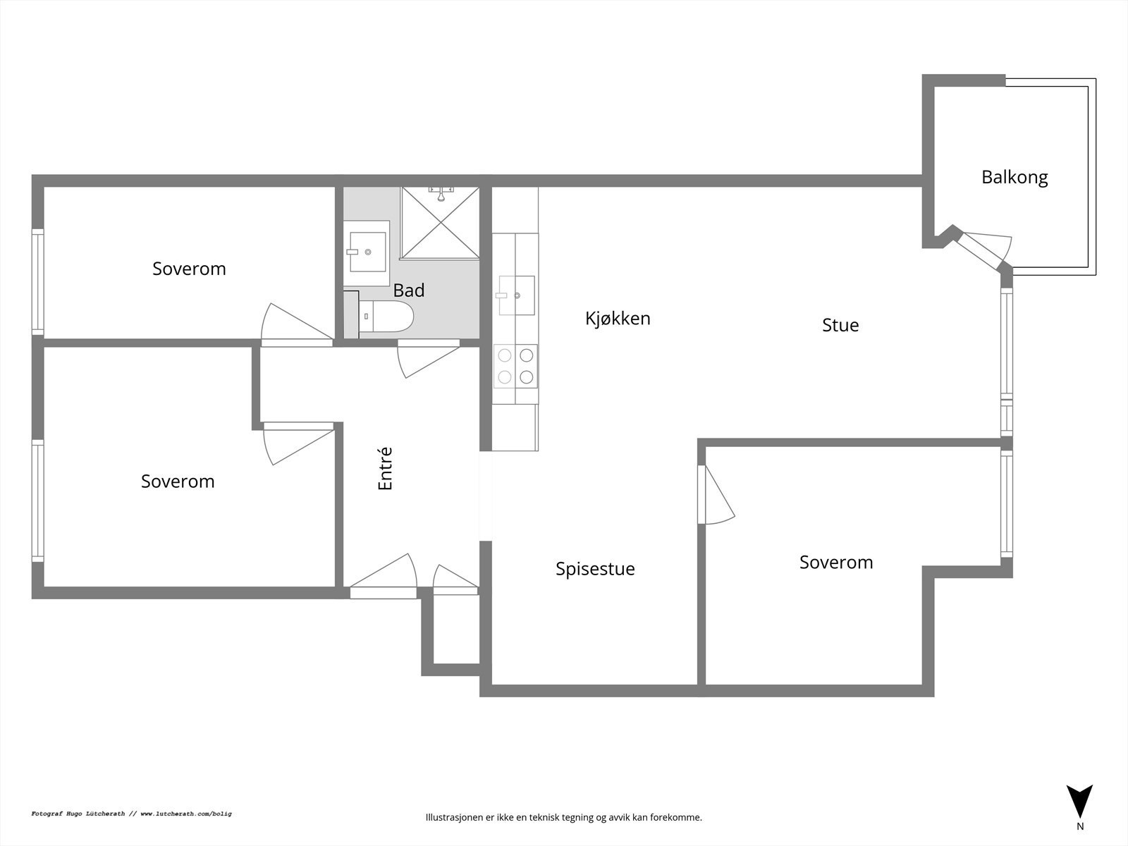
- Internt bruksareal
- 71 m² (BRA-i)
- Bruksareal
- 77 m²
- Eksternt bruksareal
- 6 m² (BRA-e)
- Balkong/Terrasse
- 4 m² (TBA)
- Etasje
- 2
- Byggeår
- 1955
- Energimerking
- G - Rød
- Rom
- 4
- Tomteareal
- 10 594 m²
Fasiliteter
Balkong/Terrasse
Barnevennlig
Rolig
Sentralt
Turterreng
Visning
tirsdag, 24. februar
16:15 – 17:15
Eiendomsmegler Norge sine visninger har påmelding. Påmelding gjøres enkelt ved å benytte knappen under. Ta kontakt med megler dersom oppsatt tidspunkt ikke passer. Det vil ikke bli avholdt visning uten påmelding, frist for påmelding er senest kl. 12.00 på visningsdagen. Husk å laste ned salgsoppgaven digitalt før visning. Velkommen til en hyggelig visning!
VisningspåmeldingOm boligen
Velkommen til Kristofer Jansons vei 45! Rålekker og totalrenovert leilighet med attraktiv beliggenhet på Landås. Her bor du sentralt og tilbaketrukket, med kort gangavstand til Sletten Senter, bybane, buss og flotte turmuligheter, samt gang- og sykkelavstand til Haukeland universitetssjukehus. Leiligheten holder en høy standard etter omfattende innvendig oppussing i 2025/2026. Her får du moderne materialvalg, gjennomført stil og en fleksibel planløsning.
Leiligheten inneholder: Entré, tre soverom, stue, kjøkken og bad.
Kort fortalt:
- Totalrenovert 2025/2026
- Nytt bad (Februar 2026 ikke tatt i bruk)
- Nydelig kjøkken med integrerte hvitevarer
- Nytt elektrisk anlegg
- 3 soverom
- Fleksibel planløsning
- Gjennomgående moderne stil
- Delikate fargevalg
- Ingen TG2 eller TG3
Leiligheten inneholder: Entré, tre soverom, stue, kjøkken og bad.
Kort fortalt:
- Totalrenovert 2025/2026
- Nytt bad (Februar 2026 ikke tatt i bruk)
- Nydelig kjøkken med integrerte hvitevarer
- Nytt elektrisk anlegg
- 3 soverom
- Fleksibel planløsning
- Gjennomgående moderne stil
- Delikate fargevalg
- Ingen TG2 eller TG3
NB: Knappen for å vise hele beskrivelsen har kun en visuell effekt.
NB: Knappen for å vise hele beskrivelsen har kun en visuell effekt.
Salgsoppgaven beskriver vesentlig og lovpålagt informasjon om eiendommen
Se komplett salgsoppgaveNyttige lenker
Nærområdet
Eiendomsmegler Norge Bergen Sentrum
Best der du bor
Annonsene kan være mangelfulle i forhold til lovpålagt opplysningsplikt. Før bindende avtale inngås oppfordres interessenter til å innhente komplett informasjon fra meglerforetaket, selger eller utleier.






































