Bildegalleri

Velkommen til Åsdalsveien 34 G
Nordstrand
Arkitekttegnet enebolig fra 2026 | Takhøyde | 4 soverom og 3 bad | To stuer, balkonger og garasje | Barnevennlig
Prisantydning16 900 000 kr
Nøkkelinfo
- Boligtype
- Enebolig
- Eieform
- Eier (Selveier)
- Soverom
- 4
- Internt bruksareal
- 228 m² (BRA-i)
- Bruksareal
- 228 m²
- Balkong/Terrasse
- 28 m² (TBA)
- Byggeår
- 2026
- Energimerking
- B - Oransje
- Rom
- 6
- Tomteareal
- 1 880 m² (eiet)
Fasiliteter
Balkong/Terrasse
Barnevennlig
Garasje/P-plass
Hage
Ingen gjenboere
Offentlig vann/kloakk
Parkett
Peis/Ildsted
Sentralt
Turterreng
Balansert ventilasjon
Visning
søndag, 01. mars
14:00 – 15:00
For å delta på visning, ber vi om at du melder deg på. Da sikrer vi at du får nødvendig informasjon og at det er satt av tilstrekkelig med tid. Kontakt megler dersom annet tidspunkt ønskes. Husk å lese salgsoppgaven før visningen, så du stiller forberedt.
Ønsker du kun å bli holdt orientert, kan du fra eiendommens hjemmeside få varsel om solgtpris, eller kontakte megler.
VisningspåmeldingOm boligen
Velkommen til Åsdalsveien 34G! En nybygget og moderne enebolig med familievennlig planløsning i et attraktivt og rolig område.
Denne splitter nye eneboligen ligger høyt og tilbaketrukket i et populært og barnevennlig nabolag på Nordstrand. Tegnet av det anerkjente arkitektkontoret Strand/Løken, og beliggende på en høyde med fint utsyn og gode solforhold. Her bor du med nærhet til skog og sjø, samtidig som servicetilbudene på Sæter og Holtet er en kort tur unna.
Kort fortalt:
Denne splitter nye eneboligen ligger høyt og tilbaketrukket i et populært og barnevennlig nabolag på Nordstrand. Tegnet av det anerkjente arkitektkontoret Strand/Løken, og beliggende på en høyde med fint utsyn og gode solforhold. Her bor du med nærhet til skog og sjø, samtidig som servicetilbudene på Sæter og Holtet er en kort tur unna.
Kort fortalt:
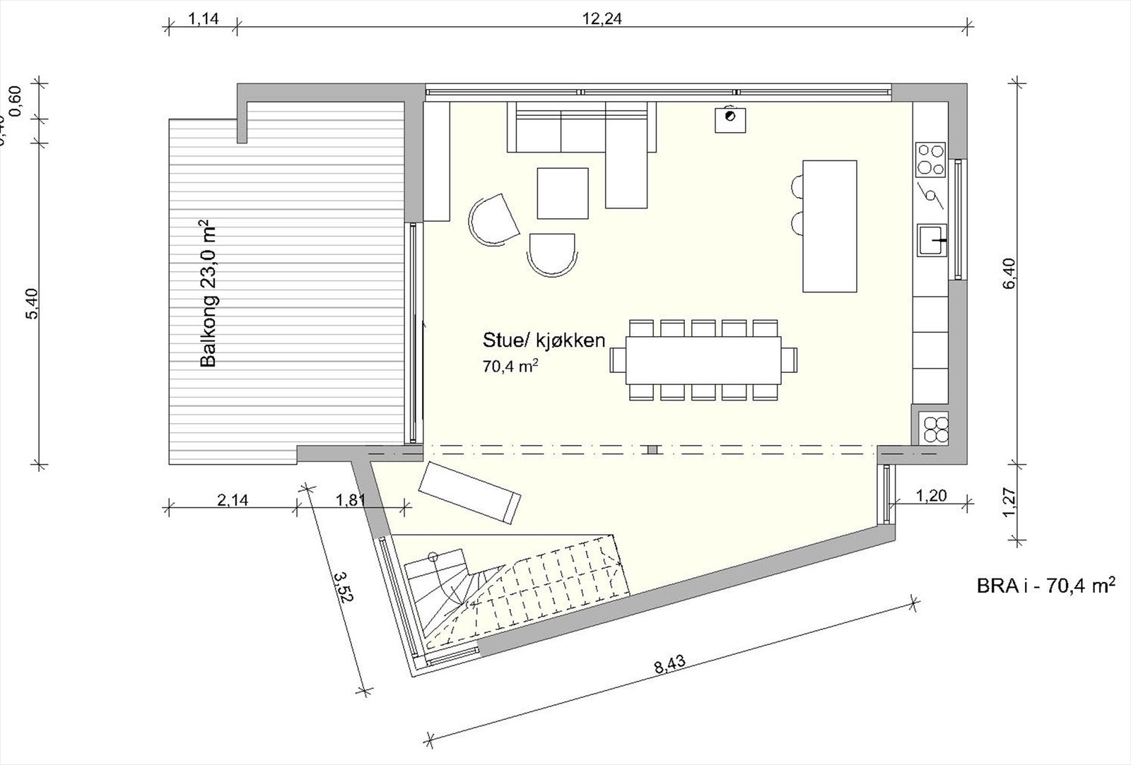
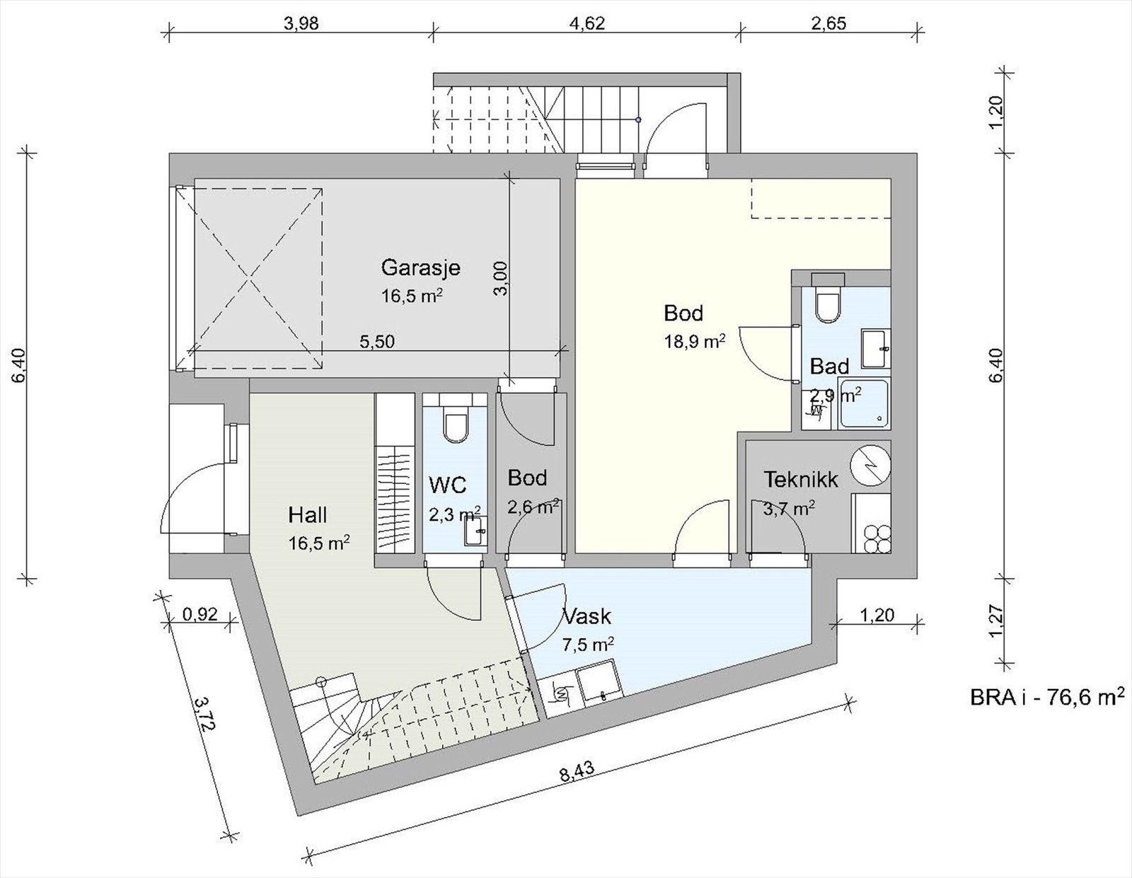
- Ny enebolig fra 2026, ytterligere påkostet på bad /kjøkken
- Stor balkong på 23 m²
- Integrert garasje med innvendig adkomst
- Familievennlig med 4 soverom og 2 stuer
- 3 bad, separat toalett og vaskerom
- Åpen stue- og kjøkkenløsning i toppetasjen
- Moderne arkitektonisk utrykk
NB: Knappen for å vise hele beskrivelsen har kun en visuell effekt.
NB: Knappen for å vise hele beskrivelsen har kun en visuell effekt.
Salgsoppgaven beskriver vesentlig og lovpålagt informasjon om eiendommen
Se komplett salgsoppgaveNyttige lenker
Nærområdet
Krogsveen Nordstrand
Verdien av en god megler.
Annonseinformasjon
| FINN-kode | 451565458 |
|---|---|
| Sist endret | 20. feb. 2026 07:40 |
| Referanse | KR44.2625 |
Annonsene kan være mangelfulle i forhold til lovpålagt opplysningsplikt. Før bindende avtale inngås oppfordres interessenter til å innhente komplett informasjon fra meglerforetaket, selger eller utleier.















































































