Bildegalleri

Attraktiv beliggenhet i etablert og familievennlig område.
Lys og romslig 4-roms med innglasset balkong, garasje og flott beliggenhet
Prisantydning2 250 000 kr
Nøkkelinfo
- Boligtype
- Leilighet
- Eieform
- Andel
- Soverom
- 3
- Internt bruksareal
- 100 m² (BRA-i)
- Bruksareal
- 134 m²
- Eksternt bruksareal
- 21 m² (BRA-e)
- Innglasset balkong
- 13 m² (BRA-b)
- Etasje
- 3
- Byggeår
- 1976
- Rom
- 4
- Tomteareal
- 22 456 m² (eiet)
Fasiliteter
Balkong/Terrasse
Garasje/P-plass
Offentlig vann/kloakk
Turterreng
Sentralt
Bredbåndstilknytning
Rolig
Visning
onsdag, 25. februar
16:30 – 17:30
Velkommen til visning!
Alle våre visninger har påmelding. På denne måten sikrer vi at megler har god oversikt og tid til å imøtekomme alle interessenter på beste måte. Dette er veldig verdifullt for boligkjøpere og for oss. Det er enkelt å melde seg på, og du kan like enkelt melde deg av. Kontakt også gjerne megler i forkant av visning dersom du har spørsmål.
Om boligen
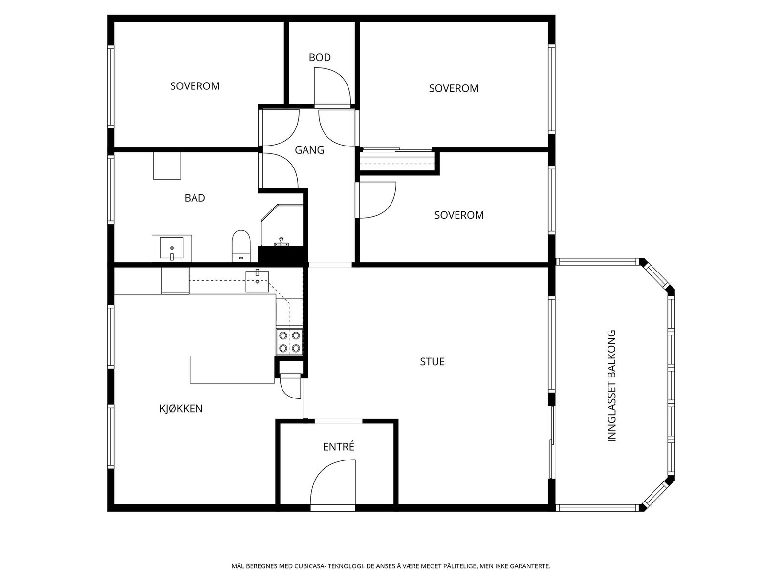
Velkommen til en romslig og praktisk 4-roms leilighet med god planløsning og fine lysforhold. Boligen har en lys og luftig stue med store vindusflater og utgang til romslig, innglasset balkong - et ekstra oppholdsrom som kan brukes store deler av året. Her nytes utsyn mot grønne omgivelser og fjellknauser.
Kjøkkenet ligger i åpen løsning mot stuen og har god skap- og benkeplass. Leiligheten har tre soverom med fleksible bruksmuligheter - perfekt for barnefamilie, gjesterom eller hjemmekontor. Badet er romslig, flislagt og har både dusjkabinett og opplegg for vaskemaskin.
Boligen har en praktisk entré med gode oppbevaringsmuligheter. Det er også to eksterne boder. Garasje medfølger, og det er felles lekeplass i borettslaget. Attraktiv og rolig beliggenhet med nærhet til natur, skoler og daglige servicetilbud.
En familievennlig bolig med gode kvaliteter og fin beliggenhet!
Kjøkkenet ligger i åpen løsning mot stuen og har god skap- og benkeplass. Leiligheten har tre soverom med fleksible bruksmuligheter - perfekt for barnefamilie, gjesterom eller hjemmekontor. Badet er romslig, flislagt og har både dusjkabinett og opplegg for vaskemaskin.
Boligen har en praktisk entré med gode oppbevaringsmuligheter. Det er også to eksterne boder. Garasje medfølger, og det er felles lekeplass i borettslaget. Attraktiv og rolig beliggenhet med nærhet til natur, skoler og daglige servicetilbud.
En familievennlig bolig med gode kvaliteter og fin beliggenhet!
NB: Knappen for å vise hele beskrivelsen har kun en visuell effekt.
NB: Knappen for å vise hele beskrivelsen har kun en visuell effekt.
Salgsoppgaven beskriver vesentlig og lovpålagt informasjon om eiendommen
Se komplett salgsoppgaveNyttige lenker
Nærområdet
PrivatMegleren Sandefjord
Kun det beste på dine vegne
Annonseinformasjon
| FINN-kode | 451523849 |
|---|---|
| Sist endret | 19. feb. 2026 08:28 |
| Referanse | 33260007 |
Annonsene kan være mangelfulle i forhold til lovpålagt opplysningsplikt. Før bindende avtale inngås oppfordres interessenter til å innhente komplett informasjon fra meglerforetaket, selger eller utleier.













































