Bildegalleri

Velkommen til Vall 258! Foto: Silje-Mari Karlsen
Engavågen
Innholdsrik og velholdt enebolig med attraktiv beliggenhet på Vall. Stor, solrik tomt med fantastisk fjordutsikt!
Prisantydning2 190 000 kr
Nøkkelinfo
- Boligtype
- Enebolig
- Eieform
- Eier (Selveier)
- Soverom
- 5
- Internt bruksareal
- 154 m² (BRA-i)
- Bruksareal
- 166 m²
- Eksternt bruksareal
- 12 m² (BRA-e)
- Balkong/Terrasse
- 37 m² (TBA)
- Byggeår
- 1963
- Energimerking
- G - Gul
- Rom
- 6
- Tomteareal
- 1 694 m² (eiet)
Fasiliteter
Barnevennlig
Balkong/Terrasse
Garasje/P-plass
Kabel-TV
Ingen gjenboere
Peis/Ildsted
Turterreng
Utsikt
Bredbåndstilknytning
Rolig
Om boligen
Velkommen til Vall 258!
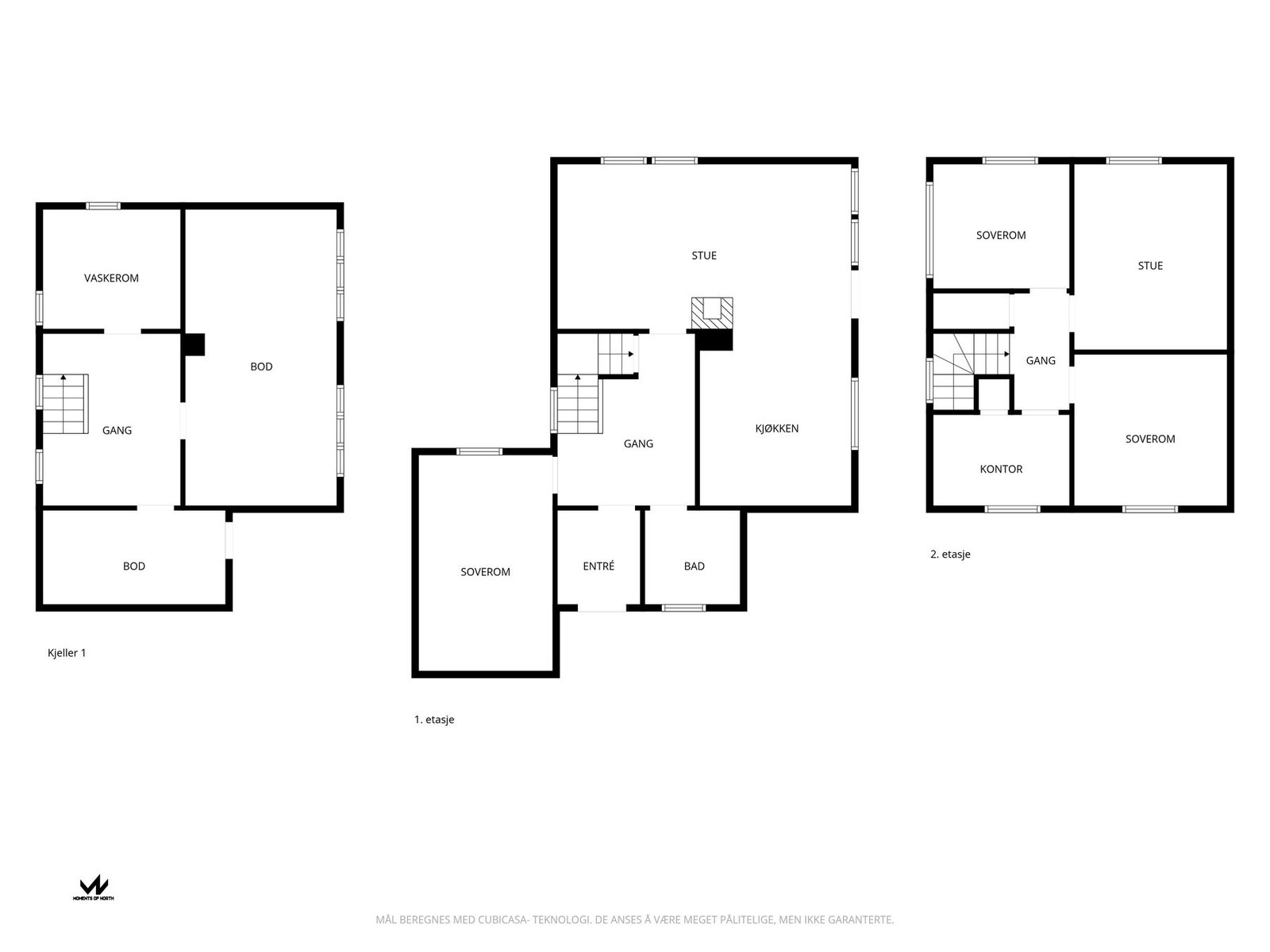
Svært innholdsrik og velholdt enebolig med fin beliggenhet på Vall. Stor, solrik utsikstomt på over 1,6 mål i idylliske, naturskjønne omgivelser - med fantastisk utsikt mot Meløyfjorden. Boligen ligger høyt og fritt til, og kan skilte med en pent opparbeidet tomt og fine uteområder.
Innvendig fremstår boligen svært velholdt og løpende modernisert. Hovedetasjen består av en romslig stue/spisestue med kjøkken i åpen løsning, gang/entré, flislagt bad og hovedsoverommet. 2. etasje er innredet med to soverom, kontor og TV-stue - og har i tillegg en praktisk luftebalkong. Kjelleren er innredet med vaskerom, og byr i tillegg på godt med oppbevaringsplass.
Velkommen til visning!
Svært innholdsrik og velholdt enebolig med fin beliggenhet på Vall. Stor, solrik utsikstomt på over 1,6 mål i idylliske, naturskjønne omgivelser - med fantastisk utsikt mot Meløyfjorden. Boligen ligger høyt og fritt til, og kan skilte med en pent opparbeidet tomt og fine uteområder.
Innvendig fremstår boligen svært velholdt og løpende modernisert. Hovedetasjen består av en romslig stue/spisestue med kjøkken i åpen løsning, gang/entré, flislagt bad og hovedsoverommet. 2. etasje er innredet med to soverom, kontor og TV-stue - og har i tillegg en praktisk luftebalkong. Kjelleren er innredet med vaskerom, og byr i tillegg på godt med oppbevaringsplass.
Velkommen til visning!
NB: Knappen for å vise hele beskrivelsen har kun en visuell effekt.
NB: Knappen for å vise hele beskrivelsen har kun en visuell effekt.
Salgsoppgaven beskriver vesentlig og lovpålagt informasjon om eiendommen
Se komplett salgsoppgaveNyttige lenker
Nærområdet
EiendomsMegler 1 Bodø
Vi loser deg trygt gjennom hele boligsalget
Annonsene kan være mangelfulle i forhold til lovpålagt opplysningsplikt. Før bindende avtale inngås oppfordres interessenter til å innhente komplett informasjon fra meglerforetaket, selger eller utleier.




























