Bildegalleri

Eiendomsmegler Krogsveen har gleden av å presentere Tandbergvegen 59! Fotograf: Ann-Helén Nannestad/ Isnitt.
Solgt
Auli - Trivelig rekkehus i rolige omgivelser med stort uteområde og hage for både lek og avslapning
Prisantydning3 290 000 kr
Nøkkelinfo
- Boligtype
- Rekkehus
- Eieform
- Eier (Selveier)
- Soverom
- 3
- Internt bruksareal
- 105 m² (BRA-i)
- Bruksareal
- 130 m²
- Eksternt bruksareal
- 25 m² (BRA-e)
- Balkong/Terrasse
- 51 m² (TBA)
- Etasje
- 1
- Byggeår
- 1974
- Energimerking
- E - Oransje
- Rom
- 5
- Tomteareal
- 402 m² (eiet)
Fasiliteter
Balkong/Terrasse
Barnevennlig
Garasje/P-plass
Hage
Kjæledyr tillatt
Ingen gjenboere
Parkett
Peis/Ildsted
Rolig
Turterreng
Om boligen
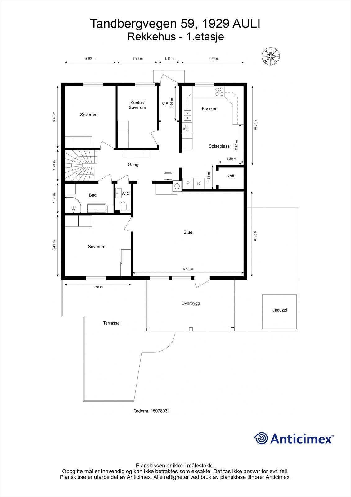
Velkommen til Tandbergvegen 59. Et innbydende, familievennlig rekkehus med alt på ett plan, i rolig og landlig område med kort vei til skoler, barnehager, idrettsanlegg, flotte turområder og kjøpesenter. Boligen har en gjennomtenkt planløsning med lys og romslig stue, peisovn og varmepumpe, stilrent kjøkken med spiseplass, bad, wc-rom og tre gode soverom. I tillegg har du en loftetasje som gir fleksible bruksområder og mulighet for eget hobby- eller treningsrom. Videre er det en romslig garasje med bod. Solrik, vestvendt og inngjerdet uteplass med hageflekk og jacuzzi er definitivt en wow-faktor her - perfekt for både hverdag og hyggelige sammenkomster med familie og venner i trygge og fredelige omgivelser. Her får du et hjem som kombinerer komfort og kvalitet!
NB: Knappen for å vise hele beskrivelsen har kun en visuell effekt.
NB: Knappen for å vise hele beskrivelsen har kun en visuell effekt.
Salgsoppgaven beskriver vesentlig og lovpålagt informasjon om eiendommen
Se komplett salgsoppgaveNyttige lenker
Nærområdet
Krogsveen Årnes
Verdien av en god megler.
Annonseinformasjon
| FINN-kode | 451508017 |
|---|---|
| Sist endret | 02. mars 2026 14:15 |
| Referanse | KR24.25173 |
Annonsene kan være mangelfulle i forhold til lovpålagt opplysningsplikt. Før bindende avtale inngås oppfordres interessenter til å innhente komplett informasjon fra meglerforetaket, selger eller utleier.



























