Bildegalleri

Velkommen til Andorsrudveien 190
Landbrukseiendom med bolighus, låve, hønsehus og garasje - Full- /overflatedyrka jord 47 daa - Produktiv skog 181 daa
Prisantydning13 050 000 kr
Nøkkelinfo
- Boligtype
- Gårdsbruk/Småbruk
- Eieform
- Eier (Selveier)
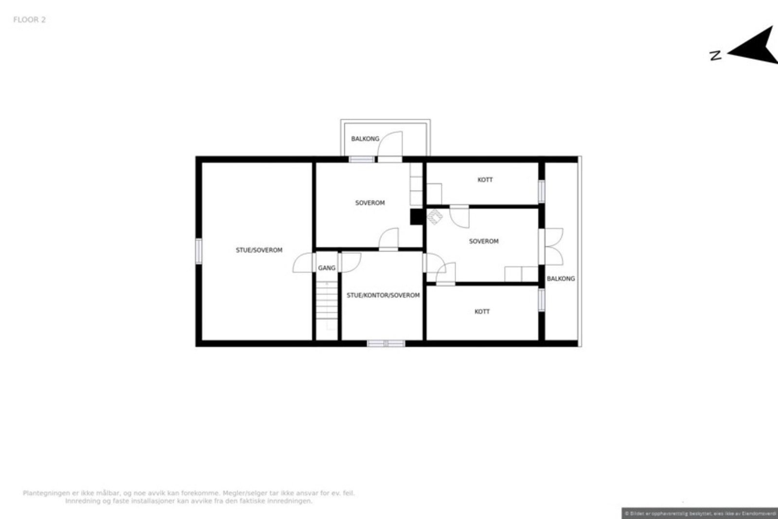
- Soverom
- 4
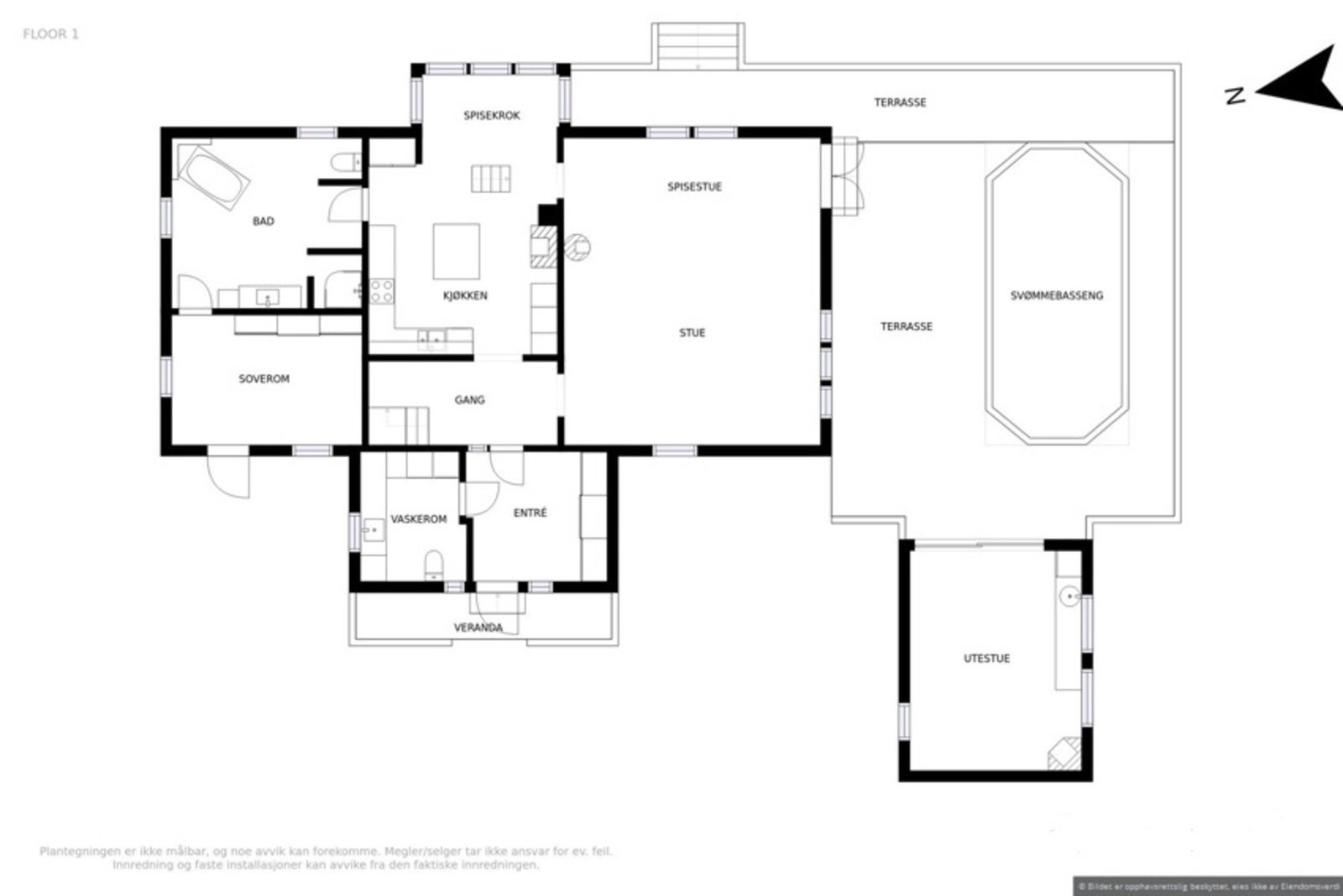
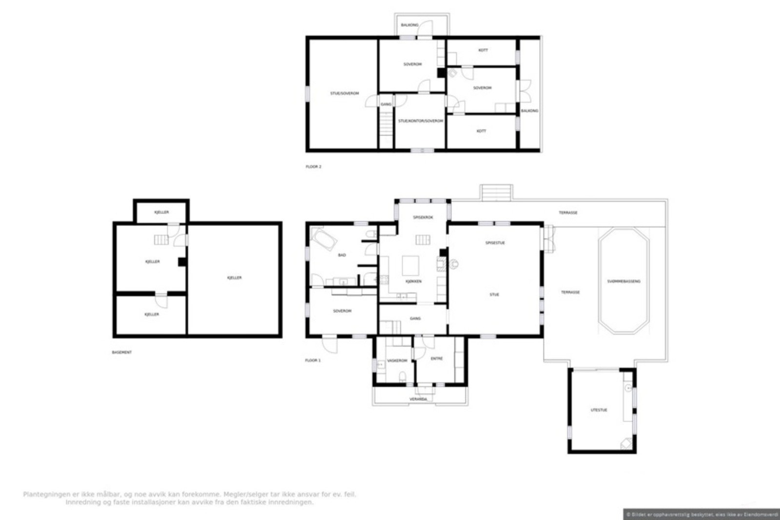
- Internt bruksareal
- 199 m² (BRA-i)
- Bruksareal
- 691 m²
- Eksternt bruksareal
- 492 m² (BRA-e)
- Byggeår
- 1910
- Energimerking
- G - Gul
- Tomteareal
- 243 000 m² (eiet)
Fasiliteter
Barnevennlig
Balkong/Terrasse
Garasje/P-plass
Ingen gjenboere
Peis/Ildsted
Turterreng
Utsikt
Moderne
Rolig
Om boligen
En meget pen eiendom med sentral og god beliggenhet nær marka/Vestskauen i Skoger. Det er ca 1 mil til Drammen sentrum og 5 km til Konnerud.
Hovedhuset er omfattende modernisert de senere år og har god standard. I tillegg er det oppført en moderne, trippel garasje, et grillhus, svømmebasseng, nytt hønsehus og en låve som er delvis bygd om til butikk/kjøkken mm, men som fremdeles dekker eiendommens behov for plassering av landbruksmaskiner og -utstyr.
Pent og opparbeidet hage/utearealer.
Hovedhuset er omfattende modernisert de senere år og har god standard. I tillegg er det oppført en moderne, trippel garasje, et grillhus, svømmebasseng, nytt hønsehus og en låve som er delvis bygd om til butikk/kjøkken mm, men som fremdeles dekker eiendommens behov for plassering av landbruksmaskiner og -utstyr.
Pent og opparbeidet hage/utearealer.
NB: Knappen for å vise hele beskrivelsen har kun en visuell effekt.
NB: Knappen for å vise hele beskrivelsen har kun en visuell effekt.
Ta kontakt med megler for komplett informasjon
Nyttige lenker
Nærområdet
Dialog Eiendomsmegling AS avd Drammen
Annonsene kan være mangelfulle i forhold til lovpålagt opplysningsplikt. Før bindende avtale inngås oppfordres interessenter til å innhente komplett informasjon fra meglerforetaket, selger eller utleier.





















































