Bildegalleri

Stue
Flott andelsleilighet på Steinberget på hele 98 kvm! 2 soverom. Solrik veranda med utsikt!
Prisantydning1 690 000 kr
Nøkkelinfo
- Boligtype
- Leilighet
- Eieform
- Andel
- Soverom
- 2
- Internt bruksareal
- 78 m² (BRA-i)
- Bruksareal
- 98 m²
- Eksternt bruksareal
- 20 m² (BRA-e)
- Byggeår
- 1955
- Energimerking
- D - Gul
- Rom
- 3
- Tomteareal
- 3 481 m² (eiet)
Visning
onsdag, 25. februar
17:30 – 18:00
Vi i Notar ønsker å avholde så gode visninger som mulig. Derfor har vi påmeldingsvisninger. Da vet vi hvor mange som kommer, og kan sette av nok tid til alle. Trykk på linken visningspåmelding for å avtale tidspunkt. Visninger uten påmeldte innen kl. 12:00 på oppsatt visningsdag, vil ikke bli avholdt. Hvis det ikke er oppsatt visningstidspunkt eller oppsatt tidspunktet ikke skulle passe, kontakt megler for avtale om privatvisning. Velkommen til visning.
VisningspåmeldingOm boligen
Din lokale eiendomsmegler Notar v/Anders Havneraas har gleden av å presentere Mellomveien 6, en flott andelsleilighet på
Steinberget! Her er det kort vei til skoler, barnehager og offentlig kommunikasjon, og gangavstand til Kristiansund sentrum med alle bymessige fasiliteter.
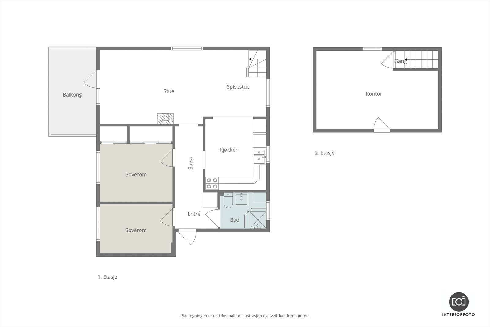
Leiligheten er beliggende i andre etasje og inneholder entrè/ gang, bad, to soverom, stue, spisestue og kjøkken. Loftstue/ oppholdsrom på loft (intern trapp opp er ikke omsøkt - se mer informasjon i salgsoppgave). Utgang fra stue til solrik veranda med flott utsikt over Havnebassenget! Det er i tillegg 3 boder i kjeller og 1 på loft, samt felles vaskekjeller.
Vi ønsker velkommen til visning!
Steinberget! Her er det kort vei til skoler, barnehager og offentlig kommunikasjon, og gangavstand til Kristiansund sentrum med alle bymessige fasiliteter.
Leiligheten er beliggende i andre etasje og inneholder entrè/ gang, bad, to soverom, stue, spisestue og kjøkken. Loftstue/ oppholdsrom på loft (intern trapp opp er ikke omsøkt - se mer informasjon i salgsoppgave). Utgang fra stue til solrik veranda med flott utsikt over Havnebassenget! Det er i tillegg 3 boder i kjeller og 1 på loft, samt felles vaskekjeller.
Vi ønsker velkommen til visning!
NB: Knappen for å vise hele beskrivelsen har kun en visuell effekt.
NB: Knappen for å vise hele beskrivelsen har kun en visuell effekt.
Salgsoppgaven beskriver vesentlig og lovpålagt informasjon om eiendommen
Se komplett salgsoppgaveNærområdet
Notar Kristiansund
God magefølelse
Annonseinformasjon
| FINN-kode | 451481497 |
|---|---|
| Sist endret | 18. feb. 2026 14:56 |
| Referanse | NO4.2611 |
Annonsene kan være mangelfulle i forhold til lovpålagt opplysningsplikt. Før bindende avtale inngås oppfordres interessenter til å innhente komplett informasjon fra meglerforetaket, selger eller utleier.


























