Bildegalleri

Velkommen til Strandgata 31! Foto: Pål Godager for Efkt
Hamar sentrum
Stor og romslig 2-roms midt i Hamar sentrum | Åpen stue/kjøkken-løsning og balkong | Stor flislagt bad | Kjellerbod
Prisantydning2 400 000 kr
Nøkkelinfo
- Boligtype
- Leilighet
- Eieform
- Eier (Selveier)
- Soverom
- 1
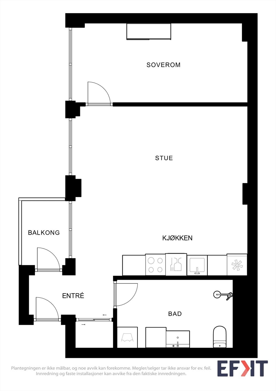
- Internt bruksareal
- 49 m² (BRA-i)
- Bruksareal
- 53 m²
- Eksternt bruksareal
- 4 m² (BRA-e)
- Balkong/Terrasse
- 2 m² (TBA)
- Etasje
- 3
- Byggeår
- 1935
- Energimerking
- G - Rød
- Rom
- 2
- Tomt
- Eiet
Fasiliteter
Balkong/Terrasse
Kjæledyr tillatt
Sentralt
Visning
mandag, 02. mars
19:00 – 19:30
Ønsker du å delta på visningen ber vi deg melde deg på slik at vi vet at du kommer. Da kan vi bistå alle best mulig og gi deg tiden du trenger på visningen. Visningen avholdes bare dersom det er påmeldte. Ta gjerne kontakt med megler før visning hvis du har noen spørsmål. Velkommen!
VisningspåmeldingOm boligen
Velkommen til Strandgata 31! Dette er en arealeffektiv og moderne leilighet med en svært sentral beliggenhet i Hamar.
Her bor du midt i hjertet av Hamar, med umiddelbar nærhet til byens pulserende liv. Du har gangavstand til alt du trenger av butikker, servicetilbud og offentlig kommunikasjon, inkludert togstasjonen. Den praktiske planløsningen med åpen stue- og kjøkkenløsning gir en god romfølelse, og leiligheten passer ypperlig for deg som ønsker en enkel hverdag i sentrum.
Høydepunkter:
- Leilighet pusset opp i sin helhet i 2011
- Stilrent, flislagt bad fra 2011 med varmekabler
- Moderne kjøkken med integrerte hvitevarer
- Sentral beliggenhet med "kort vei til alt"
- Ekstern bod på 4 m²
- Balkong
Velkommen til visning!
Her bor du midt i hjertet av Hamar, med umiddelbar nærhet til byens pulserende liv. Du har gangavstand til alt du trenger av butikker, servicetilbud og offentlig kommunikasjon, inkludert togstasjonen. Den praktiske planløsningen med åpen stue- og kjøkkenløsning gir en god romfølelse, og leiligheten passer ypperlig for deg som ønsker en enkel hverdag i sentrum.
Høydepunkter:
- Leilighet pusset opp i sin helhet i 2011
- Stilrent, flislagt bad fra 2011 med varmekabler
- Moderne kjøkken med integrerte hvitevarer
- Sentral beliggenhet med "kort vei til alt"
- Ekstern bod på 4 m²
- Balkong
Velkommen til visning!
NB: Knappen for å vise hele beskrivelsen har kun en visuell effekt.
NB: Knappen for å vise hele beskrivelsen har kun en visuell effekt.
Salgsoppgaven beskriver vesentlig og lovpålagt informasjon om eiendommen
Se komplett salgsoppgaveNyttige lenker
Nærområdet
EiendomsMegler 1 Hamar
Vi loser deg trygt gjennom hele boligsalget
Annonseinformasjon
| FINN-kode | 451469149 |
|---|---|
| Sist endret | 21. feb. 2026 08:20 |
| Referanse | 6019260318 |
Annonsene kan være mangelfulle i forhold til lovpålagt opplysningsplikt. Før bindende avtale inngås oppfordres interessenter til å innhente komplett informasjon fra meglerforetaket, selger eller utleier.





















