Bildegalleri

Velkommen til Vallerveien 104 - Presentert av Andreas Bock v/EIE eiendomsmegling Bærum, Foto: Nanna Wolden (Diakrit)
Flott 3-roms beliggende i et rolig familievennlig nabolag |Sørvest-vendt balkong | To garasjeplasser med elbillader
Prisantydning4 490 000 kr
Nøkkelinfo
- Boligtype
- Leilighet
- Eieform
- Eier (Selveier)
- Soverom
- 2
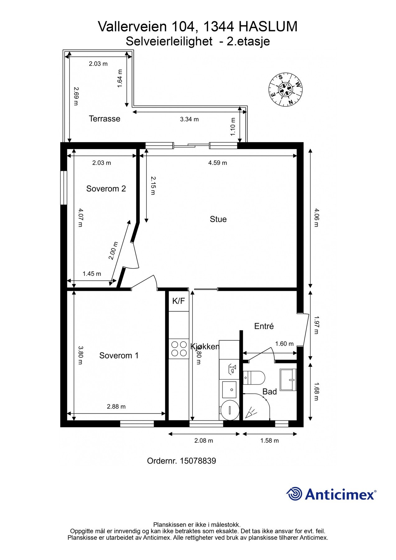
- Internt bruksareal
- 54 m² (BRA-i)
- Bruksareal
- 58 m²
- Eksternt bruksareal
- 4 m² (BRA-e)
- Balkong/Terrasse
- 9 m² (TBA)
- Etasje
- 2
- Byggeår
- 1956
- Energimerking
- E - Oransje
- Rom
- 3
- Tomteareal
- 1 462 m² (eiet)
Fasiliteter
Barnevennlig
Balkong/Terrasse
Garasje/P-plass
Offentlig vann/kloakk
Turterreng
Fellesvaskeri
Sentralt
Rolig
Lademulighet
Om boligen
Velkommen til Vallerveien 104 - Presentert av Andreas Bock v/EIE eiendomsmegling
Dette er en moderne og praktisk leilighet med stor balkong, to garasjeplasser med elbillader og en beliggenhet som gir deg alt du trenger rett utenfor døren.
Her bor du i et familievennlig nabolag med flotte skoler, barnehager og aktivitetstilbud til de små like ved. Leiligheten har en praktisk planløsning med en lys og romslig stue, praktisk kjøkkenløsning, to soverom av god størrelse og en flott sørvest-vendt balkong hvor man kan nyte lange sommerdager med familie og venner.
Dette er en leilighet som kombinerer komfort og beliggenhet, perfekt for deg som ønsker et urbant liv med naturen rett utenfor døren!
Høydepunkter:
-Sørvest-vendt balkong
-2 biloppstillingsplasser med elbillader
-Praktisk planløsning med gode oppbevaringsmuligheter
-Kort gangavstand til nødvendige fasiliteter og servicetilbud
-Flere tur- og aktivitetsmuligheter i nærområdet
Velkommen til visning!
Dette er en moderne og praktisk leilighet med stor balkong, to garasjeplasser med elbillader og en beliggenhet som gir deg alt du trenger rett utenfor døren.
Her bor du i et familievennlig nabolag med flotte skoler, barnehager og aktivitetstilbud til de små like ved. Leiligheten har en praktisk planløsning med en lys og romslig stue, praktisk kjøkkenløsning, to soverom av god størrelse og en flott sørvest-vendt balkong hvor man kan nyte lange sommerdager med familie og venner.
Dette er en leilighet som kombinerer komfort og beliggenhet, perfekt for deg som ønsker et urbant liv med naturen rett utenfor døren!
Høydepunkter:
-Sørvest-vendt balkong
-2 biloppstillingsplasser med elbillader
-Praktisk planløsning med gode oppbevaringsmuligheter
-Kort gangavstand til nødvendige fasiliteter og servicetilbud
-Flere tur- og aktivitetsmuligheter i nærområdet
Velkommen til visning!
NB: Knappen for å vise hele beskrivelsen har kun en visuell effekt.
NB: Knappen for å vise hele beskrivelsen har kun en visuell effekt.
Salgsoppgaven beskriver vesentlig og lovpålagt informasjon om eiendommen
Se komplett salgsoppgaveNyttige lenker
Nærområdet
EIE eiendomsmegling Bærum
Annonseinformasjon
| FINN-kode | 451452751 |
|---|---|
| Sist endret | 17. feb. 2026 00:20 |
| Referanse | 36260044 |
Annonsene kan være mangelfulle i forhold til lovpålagt opplysningsplikt. Før bindende avtale inngås oppfordres interessenter til å innhente komplett informasjon fra meglerforetaket, selger eller utleier.

































