Bildegalleri

Velkommen til Laksvatnveien 17 - Presentert av Håkon Hansen, foto Geir Arne Simonsen!
Hel seksjonert bolig med næringsareal og mye potensiale til salgs på Laksvatn!
Nøkkelinfo
- Boligtype
- Enebolig
- Eieform
- Eier (Selveier)
- Soverom
- 3
- Internt bruksareal
- 131 m² (BRA-i)
- Bruksareal
- 345 m²
- Eksternt bruksareal
- 214 m² (BRA-e)
- Balkong/Terrasse
- 16 m² (TBA)
- Byggeår
- 1974
- Rom
- 4
- Tomteareal
- 2 886 m² (eiet)
Fasiliteter
Visning
Om boligen
Velkommen til Laksvatnveien 17!
Hel seksjonert eiendom med næringsdel selges. Bygget fremstår som et påbegynt prosjekt med mulighet for å ferdigstille tre boligseksjoner, og en næringsdel i den siste seksjonen.
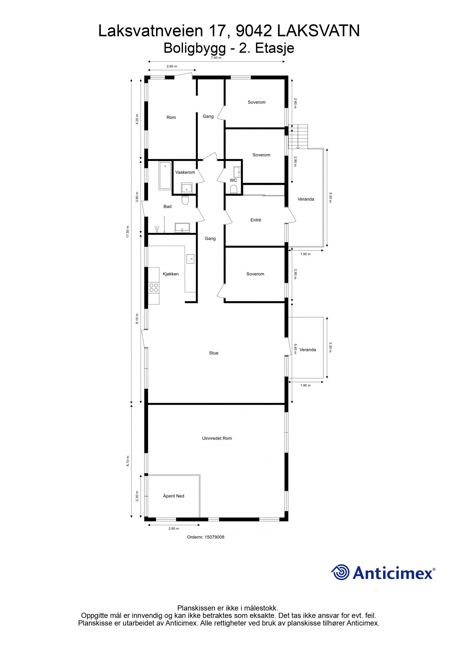
I 2. etasje er det allerede en ferdig innredet og beboelig leilighet med åpen stue-/kjøkkenløsning, tre soverom, to bad, rom på 17 kvm og teknisk rom.
Utover dette ligger det et betydelig uforløst potensial i de øvrige seksjonene. Ypperlig kjøp for deg som ønsker å ferdigstille leiligheter for salg, kombinere bolig og næring, etablere utleie eller lage din families generasjonsbolig.
Høydepunkter:
- Mye potensiale & ferdig seksjonert
- Lagring
- Flott utsikt
- Marka rett ved
- Barnevennlig
- Nært friareal
- Næringsmulighet
- 15 min til Nordkjosbotn
- Ca. 45 min til Tromsø
Velkommen til visning!
Ta kontakt med megler for komplett informasjon
Nyttige lenker
Nærområdet
Sne Eiendomsmegling AS
Annonseinformasjon
| FINN-kode | 451437931 |
|---|---|
| Sist endret | 17. feb. 2026 03:09 |
| Referanse | 52260057 |
Annonsene kan være mangelfulle i forhold til lovpålagt opplysningsplikt. Før bindende avtale inngås oppfordres interessenter til å innhente komplett informasjon fra meglerforetaket, selger eller utleier.





































