Bildegalleri

Hjertelig velkommen til visning i Langhøyane 61. En flott enebolig av nyere dato i et nyetablert boområde med kort vei til Manger. Boligen presenteres av Eiendomsmegler Norge v/Hans Petter Midbrød.
Stor og moderne familiebolig med meget god standard i Langhøyane. 4 soverom. Solrik beliggenhet.
Prisantydning5 490 000 kr
Nøkkelinfo
- Boligtype
- Enebolig
- Eieform
- Eier (Selveier)
- Soverom
- 4
- Internt bruksareal
- 184 m² (BRA-i)
- Bruksareal
- 197 m²
- Eksternt bruksareal
- 13 m² (BRA-e)
- Balkong/Terrasse
- 56 m² (TBA)
- Byggeår
- 2022
- Rom
- 6
- Tomteareal
- 804 m² (eiet)
Visning
tirsdag, 24. februar
17:00 – 18:00
Eiendomsmegler Norge sine visninger har påmelding. Påmelding gjøres enkelt ved å benytte knappen under. Ta kontakt med megler dersom oppsatt tidspunkt ikke passer. Det vil ikke bli avholdt visning uten påmelding, frist for påmelding er senest kl. 12.00 på visningsdagen. Husk å laste ned salgsoppgaven digitalt før visning. Velkommen til en hyggelig visning!
VisningspåmeldingOm boligen
Velkommen til Langhøyane 61 moderne familiebolig fra 2022 med høy standard og solrik beliggenhet.
I den nye delen av boligfeltet i Langhøyane finner du denne stilrene og innholdsrike eneboligen over to plan. Boligen stod ferdig i 2022 og holder en gjennomgående meget god standard med moderne materialvalg og tidsriktige løsninger.
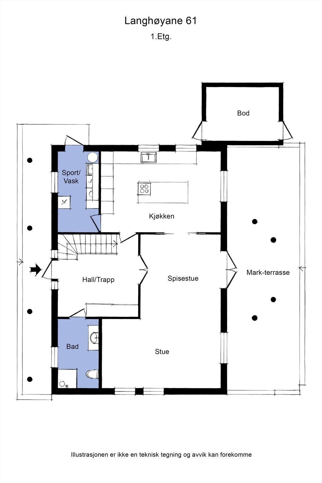
1 etasje inneholder romslig entré/hall, lekkert helfliset bad, lys og luftig stue med utgang til stor solrik terrasse og hage, moderne kjøkken med kjøkkenøy samt praktisk vaskerom med egen inngang.
2 etasje byr på loftstue med utgang til balkong, fire gode soverom inkludert romslig hovedsoverom med garderoberom samt delikat helfliset bad.
Eiendommen har pent opparbeidet tomt med asfaltert gårdsrom, gressplen og gode uteplasser. Gangavstand til Manger.
I den nye delen av boligfeltet i Langhøyane finner du denne stilrene og innholdsrike eneboligen over to plan. Boligen stod ferdig i 2022 og holder en gjennomgående meget god standard med moderne materialvalg og tidsriktige løsninger.
1 etasje inneholder romslig entré/hall, lekkert helfliset bad, lys og luftig stue med utgang til stor solrik terrasse og hage, moderne kjøkken med kjøkkenøy samt praktisk vaskerom med egen inngang.
2 etasje byr på loftstue med utgang til balkong, fire gode soverom inkludert romslig hovedsoverom med garderoberom samt delikat helfliset bad.
Eiendommen har pent opparbeidet tomt med asfaltert gårdsrom, gressplen og gode uteplasser. Gangavstand til Manger.
NB: Knappen for å vise hele beskrivelsen har kun en visuell effekt.
NB: Knappen for å vise hele beskrivelsen har kun en visuell effekt.
Salgsoppgaven beskriver vesentlig og lovpålagt informasjon om eiendommen
Se komplett salgsoppgaveNyttige lenker
Nærområdet
Eiendomsmegler Norge Nordhordland
Best der du bor
Annonsene kan være mangelfulle i forhold til lovpålagt opplysningsplikt. Før bindende avtale inngås oppfordres interessenter til å innhente komplett informasjon fra meglerforetaket, selger eller utleier.












































