Bildegalleri

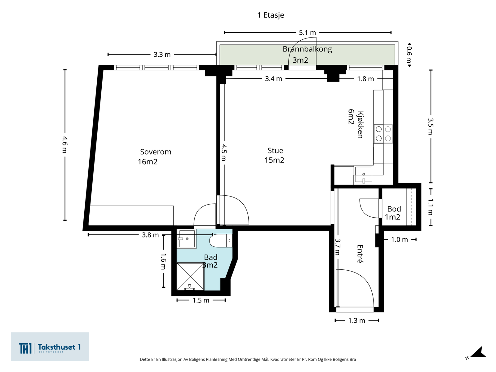
Moderne og romslig 2-roms leilighet med hyggelig sydøstvendt brannbalkong.
FROGNER
Lys og tiltalende 2-roms med balkong - Usjenert og høy 1.etg. inn mot bakgård - Bergvarme inkl. - Sentralt og rolig
Prisantydning5 700 000 kr
Nøkkelinfo
- Boligtype
- Leilighet
- Eieform
- Eier (Selveier)
- Soverom
- 1
- Internt bruksareal
- 48 m² (BRA-i)
- Bruksareal
- 51 m²
- Eksternt bruksareal
- 3 m² (BRA-e)
- Balkong/Terrasse
- 3 m² (TBA)
- Etasje
- 2
- Byggeår
- 1933
- Rom
- 1
- Tomteareal
- 538 m² (eiet)
Fasiliteter
Balkong/Terrasse
Kabel-TV
Sentralt
Moderne
Rolig
Visning
søndag, 22. februar
14:00 – 15:00
Velkommen til visning!
Alle våre visninger har påmelding. På denne måten sikrer vi at megler har god oversikt og tid til å imøtekomme alle interessenter på beste måte. Dette er veldig verdifullt for boligkjøpere og for oss. Det er enkelt å melde seg på, og du kan like enkelt melde deg av. Kontakt også gjerne megler i forkant av visning dersom du har spørsmål.
mandag, 23. februar
17:00 – 18:00
Velkommen til visning!
Alle våre visninger har påmelding. På denne måten sikrer vi at megler har god oversikt og tid til å imøtekomme alle interessenter på beste måte. Dette er veldig verdifullt for boligkjøpere og for oss. Det er enkelt å melde seg på, og du kan like enkelt melde deg av. Kontakt også gjerne megler i forkant av visning dersom du har spørsmål.
Om boligen
Moderne og romslig 2-roms leilighet med hyggelig sydøstvendt brannbalkong. Her bor man på beste Frogner, rett bak slottet, med umiddelbar nærhet til kollektiv transport, restauranter og butikker. Leiligheten ligger i en høy og usjenert 1.etasje, inn mot bakgård, og er derfor godt skjermet fra bystøy.
- Rolig og usjenert
- Høy 1.etasje, leiligheten ligger en trappe opp
- Sydøstvendt brannbalkong.
- Store vindusflater og god takhøyde
- Nymalt i 2026
- Åpen kjøkkenløsning
- Romslig soverom
- Pent bad med opplegg for vaskemaskin
- Kjellerbod og en romslig loftsbod medfølger
- Oppussing av fasade ble gjennomført i 2023.
- Fyring og varmtvann er inkludert i felleskostnadene
- Rolig og usjenert
- Høy 1.etasje, leiligheten ligger en trappe opp
- Sydøstvendt brannbalkong.
- Store vindusflater og god takhøyde
- Nymalt i 2026
- Åpen kjøkkenløsning
- Romslig soverom
- Pent bad med opplegg for vaskemaskin
- Kjellerbod og en romslig loftsbod medfølger
- Oppussing av fasade ble gjennomført i 2023.
- Fyring og varmtvann er inkludert i felleskostnadene
NB: Knappen for å vise hele beskrivelsen har kun en visuell effekt.
NB: Knappen for å vise hele beskrivelsen har kun en visuell effekt.
Salgsoppgaven beskriver vesentlig og lovpålagt informasjon om eiendommen
Se komplett salgsoppgaveNyttige lenker
Nærområdet
Privatmegleren Kvartal
Kun det beste på dine vegne
Annonseinformasjon
| FINN-kode | 451360000 |
|---|---|
| Sist endret | 17. feb. 2026 14:54 |
| Referanse | 316260021 |
Annonsene kan være mangelfulle i forhold til lovpålagt opplysningsplikt. Før bindende avtale inngås oppfordres interessenter til å innhente komplett informasjon fra meglerforetaket, selger eller utleier.

























