Bildegalleri

Bruhagen 4 presenteres av Thea Langeland Solheim v. Proaktiv Eiendomsmegling. Foto Brian Engen.
Sentrum - Brueland
Lys og lekker to etasjes endeleilighet. Balkong. Parkering i lukket anlegg m/lader. Heis. Rett ved Sandvedparken.
Prisantydning3 990 000 kr
Nøkkelinfo
- Boligtype
- Leilighet
- Eieform
- Eier (Selveier)
- Soverom
- 2
- Internt bruksareal
- 101 m² (BRA-i)
- Bruksareal
- 105 m²
- Eksternt bruksareal
- 4 m² (BRA-e)
- Balkong/Terrasse
- 7 m² (TBA)
- Etasje
- 4
- Byggeår
- 1991
- Energimerking
- D - Gul
- Rom
- 4
- Tomteareal
- 5 691 m² (eiet)
Fasiliteter
Aircondition
Balkong/Terrasse
Barnevennlig
Bredbåndstilknytning
Garasje/P-plass
Heis
Kjæledyr tillatt
Kabel-TV
Offentlig vann/kloakk
Rolig
Sentralt
Utsikt
Vaktmester-/vektertjeneste
Turterreng
Lademulighet
Visning
tirsdag, 24. februar
16:00 – 17:00
For at vår megler og selger skal kunne gi deg den beste oppfølgingen og kjøpsopplevelsen er det obligatorisk påmelding til alle våre visninger. Dersom ditt reserverte tidspunkt likevel ikke kan benyttes trenger vi beskjed så tidlig som mulig sånn at vi kan finne en alternativ løsning. Vi har alltid tid til deg. Visninger uten påmeldte deltagere avlyses.
VisningspåmeldingOm boligen
Drømmer du om en leilighet som føles helt riktig fra første steg innenfor døren?
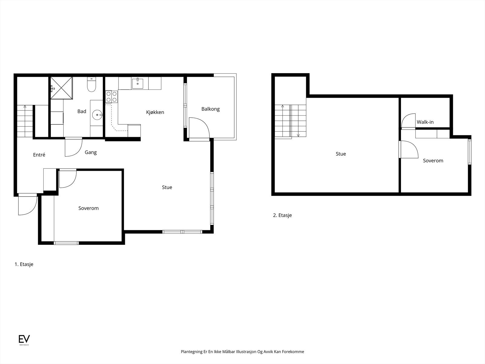
Denne stilrene leiligheten byr på en moderne og lun atmosfære, og passer utmerket for deg som elsker å bo i nærhet til både turområder og bylivet. Du bor på enden, med Sandvedparken like utenfor stuevinduet. Leiligheten går over 2 etasjer med en smart planløsningen - her har du alt du trenger på første plan. Boligen inneholder to stuer, to soverom, åpen stue/kjøkken løsning, bad/vaskerom og en herlig balkong. Du har parkeringsplass i lukket garasjeanlegg med elbil-lader. Fra garasjen er det heis som frakter deg tørrskodd opp til 4. etasje. Leiligheten ligger fantastisk til med kort avstand til det du måtte trenge i hverdagen. Her bor du med en beliggenhet perfekt for så mange!
Hjertelig velkommen til visning
Denne stilrene leiligheten byr på en moderne og lun atmosfære, og passer utmerket for deg som elsker å bo i nærhet til både turområder og bylivet. Du bor på enden, med Sandvedparken like utenfor stuevinduet. Leiligheten går over 2 etasjer med en smart planløsningen - her har du alt du trenger på første plan. Boligen inneholder to stuer, to soverom, åpen stue/kjøkken løsning, bad/vaskerom og en herlig balkong. Du har parkeringsplass i lukket garasjeanlegg med elbil-lader. Fra garasjen er det heis som frakter deg tørrskodd opp til 4. etasje. Leiligheten ligger fantastisk til med kort avstand til det du måtte trenge i hverdagen. Her bor du med en beliggenhet perfekt for så mange!
Hjertelig velkommen til visning
NB: Knappen for å vise hele beskrivelsen har kun en visuell effekt.
NB: Knappen for å vise hele beskrivelsen har kun en visuell effekt.
Salgsoppgaven beskriver vesentlig og lovpålagt informasjon om eiendommen
Se komplett salgsoppgaveNyttige lenker
Nærområdet
Proaktiv Eiendomsmegling Sandnes
Alltid tid til deg
Annonseinformasjon
| FINN-kode | 451337153 |
|---|---|
| Sist endret | 16. feb. 2026 11:18 |
| Referanse | 1200260008 |
Annonsene kan være mangelfulle i forhold til lovpålagt opplysningsplikt. Før bindende avtale inngås oppfordres interessenter til å innhente komplett informasjon fra meglerforetaket, selger eller utleier.











































