Bildegalleri

Nordvik Finnsnes presenterer Sørreisaveien 240! Foto: Steffen Fossbakk
Et romslig hjem i landlige omgivelser, sentralt plassert mellom Sørreisa og Finnsnes - med fire soverom og garasje!
Prisantydning1 800 000 kr
Nøkkelinfo
- Boligtype
- Enebolig
- Eieform
- Eier (Selveier)
- Soverom
- 4
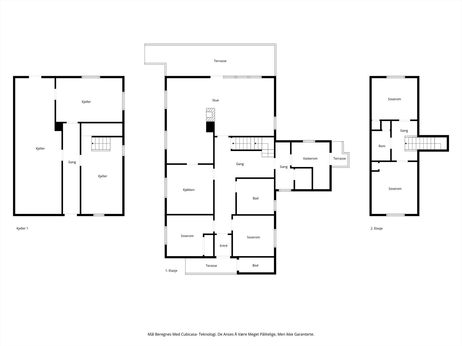
- Internt bruksareal
- 226 m² (BRA-i)
- Bruksareal
- 229 m²
- Eksternt bruksareal
- 3 m² (BRA-e)
- Balkong/Terrasse
- 16 m² (TBA)
- Etasje
- 3
- Byggeår
- 1967
- Energimerking
- E - Oransje
- Tomteareal
- 8 602 m² (eiet)
Fasiliteter
Balkong/Terrasse
Garasje/P-plass
Hage
Peis/Ildsted
Turterreng
Om boligen
Velkommen til Sørreisaveien 240, presentert av Nordvik Finnsnes!
Her får du en romslig og innholdsrik enebolig med flott beliggenhet ved Tømmervikvatnet. Med kort vei til både vann, skog og mark ligger alt til rette for en aktiv og naturnær hverdag, samtidig som både Sørreisa og Finnsnes nås på kort kjøretur.Hjemmet byr på god plass til hele familien med fire soverom, romslig kjøkken, stor stue med utgang til veranda og en underetasje med rikelig lagringsplass. Boligen har behov for modernisering, men gir samtidig et solid utgangspunkt og gode muligheter for videre utvikling. Her kan du oppgradere i eget tempo og tilpasse hjemmet etter behov og ønsker.
En romslig bolig med attraktiv beliggenhet og godt potensial for fremtiden! Her kan familien vokse og trives i lang tid!
*Videovisning
Her får du en romslig og innholdsrik enebolig med flott beliggenhet ved Tømmervikvatnet. Med kort vei til både vann, skog og mark ligger alt til rette for en aktiv og naturnær hverdag, samtidig som både Sørreisa og Finnsnes nås på kort kjøretur.Hjemmet byr på god plass til hele familien med fire soverom, romslig kjøkken, stor stue med utgang til veranda og en underetasje med rikelig lagringsplass. Boligen har behov for modernisering, men gir samtidig et solid utgangspunkt og gode muligheter for videre utvikling. Her kan du oppgradere i eget tempo og tilpasse hjemmet etter behov og ønsker.
En romslig bolig med attraktiv beliggenhet og godt potensial for fremtiden! Her kan familien vokse og trives i lang tid!
*Videovisning
NB: Knappen for å vise hele beskrivelsen har kun en visuell effekt.
NB: Knappen for å vise hele beskrivelsen har kun en visuell effekt.
Salgsoppgaven beskriver vesentlig og lovpålagt informasjon om eiendommen
Se komplett salgsoppgaveNyttige lenker
Nærområdet
Nordvik Finnsnes
Annonseinformasjon
| FINN-kode | 451333443 |
|---|---|
| Sist endret | 18. feb. 2026 14:21 |
| Referanse | 28-0009/26 |
Annonsene kan være mangelfulle i forhold til lovpålagt opplysningsplikt. Før bindende avtale inngås oppfordres interessenter til å innhente komplett informasjon fra meglerforetaket, selger eller utleier.










































