Bildegalleri

EiendomsMegler1 ved Marthe Frantzen har gleden av å presentere Heimdalsvegen 12 C!
INNBYDENDE 2-ROMS LEILIGHET FRA 2023 I 3. ETASJE | Heis | Fjernvarme | Mulighet for kjøp av p-plass i kjeller
Prisantydning2 590 000 kr
Nøkkelinfo
- Boligtype
- Leilighet
- Eieform
- Eier (Selveier)
- Soverom
- 1
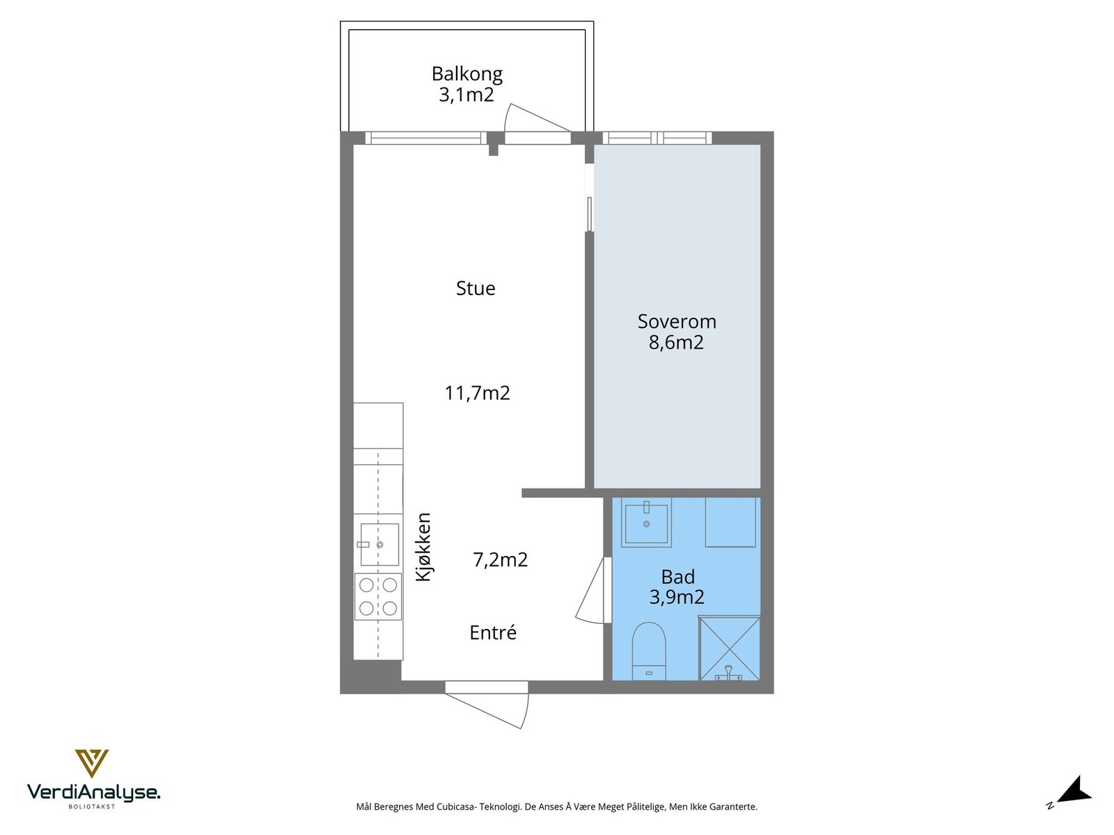
- Internt bruksareal
- 33 m² (BRA-i)
- Bruksareal
- 33 m²
- Balkong/Terrasse
- 3 m² (TBA)
- Etasje
- 3
- Byggeår
- 2023
- Energimerking
- B - Mørkegrønn
- Rom
- 2
- Tomt
- Eiet
Fasiliteter
Barnevennlig
Balkong/Terrasse
Garasje/P-plass
Kabel-TV
Heis
Offentlig vann/kloakk
Ingen gjenboere
Turterreng
Utsikt
Sentralt
Bredbåndstilknytning
Moderne
Rolig
Lademulighet
Balansert ventilasjon
Visning
tirsdag, 24. februar
16:00 – 17:00
Våre visninger har påmelding. Dette gjør vi for å kunne yte bedre service for våre kunder. Verdifullt for boligkjøper og for oss. Vi anbefaler at salgsoppgaven lastes ned digitalt før visning, og ring oss gjerne på forhånd for spørsmål om boligen. Passer ikke angitt tidspunkt, ta kontakt så finner vi en løsning. Skulle det mot formodning ikke være påmeldte til angitt visningstidspunkt vil ikke visning bli gjennomført.
Om boligen
EiendomsMegler 1 ved Marthe Frantzen har gleden av å presentere Heimdalsvegen 12 C!
MODERNE 2-ROMS LEILIGHET FRA 2023 i 3. ETASJE | Heis | Fjernvarme | Fin utsikt | Mulighet for kjøp av p-plass i kjeller
Kvaliteter verdt å nevne:
MODERNE 2-ROMS LEILIGHET FRA 2023 i 3. ETASJE | Heis | Fjernvarme | Fin utsikt | Mulighet for kjøp av p-plass i kjeller
Kvaliteter verdt å nevne:
- Strøken og moderne 2-roms leilighet. Leiligheten har en sentral beliggenhet midt i Heimdal sentrum
- Åpen stue- og kjøkkenløsning. Arealeffektiv planløsning gjør det enkelt å møblere
- Leiligheten har fått tilstandsgrad 0/1 på alle punker av takstmann
- Moderne kjøkken med integrerte hvitevarer
- Delikat, flislagt bad med behagelig gulvvarme
- Mulighet for å kjøpe fast parkeringsplass i parkeringskjeller
- Mye inkludert i felleskostnadene (fjernvarme, Kabeltv/internett)
- Flotte fellesarealer med eget selskapsrom i sameiet.
- Balkong med fine utsikts- og solforhold
- Det medfølger bod i kjelleren for oppbevaring
- Felles takterrasse med ypperlige solforhold
- Nærhet til Bymarka med utallige turmuligheter året rundt.
- Umiddelbar nærhet til alt av servicetilbud i Heimdal sentrum
- Kort gangavstand til togstasjon og metrobusstopp med hyppige avganger
Velkommen til en hyggelig visning
NB: Knappen for å vise hele beskrivelsen har kun en visuell effekt.
NB: Knappen for å vise hele beskrivelsen har kun en visuell effekt.
Salgsoppgaven beskriver vesentlig og lovpålagt informasjon om eiendommen
Se komplett salgsoppgaveNyttige lenker
Nærområdet
EiendomsMegler 1 Heimdal
Vi loser deg trygt gjennom hele boligsalget
Annonseinformasjon
| FINN-kode | 451328758 |
|---|---|
| Sist endret | 16. feb. 2026 13:02 |
| Referanse | 31250930 |
Annonsene kan være mangelfulle i forhold til lovpålagt opplysningsplikt. Før bindende avtale inngås oppfordres interessenter til å innhente komplett informasjon fra meglerforetaket, selger eller utleier.


























