Bildegalleri

Flott og innholdsrik vertikaldelt tomannsbolig med fantastisk utsikt.
Stubban
ATTRAKTIV VERTIKALDELT TOMANNSBOLIG MED PANORAMAUTSIKT | Stor tomt med gode solforhold |Barnevennlig område | Garasje
Prisantydning5 190 000 kr
Nøkkelinfo
- Boligtype
- Tomannsbolig
- Eieform
- Eier (Selveier)
- Soverom
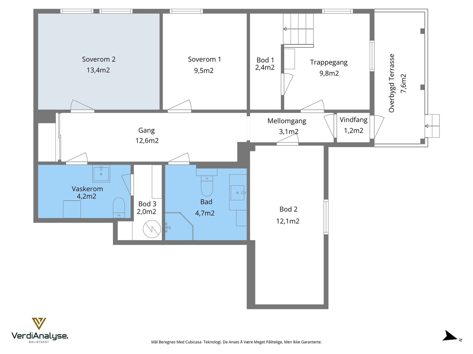
- 3
- Internt bruksareal
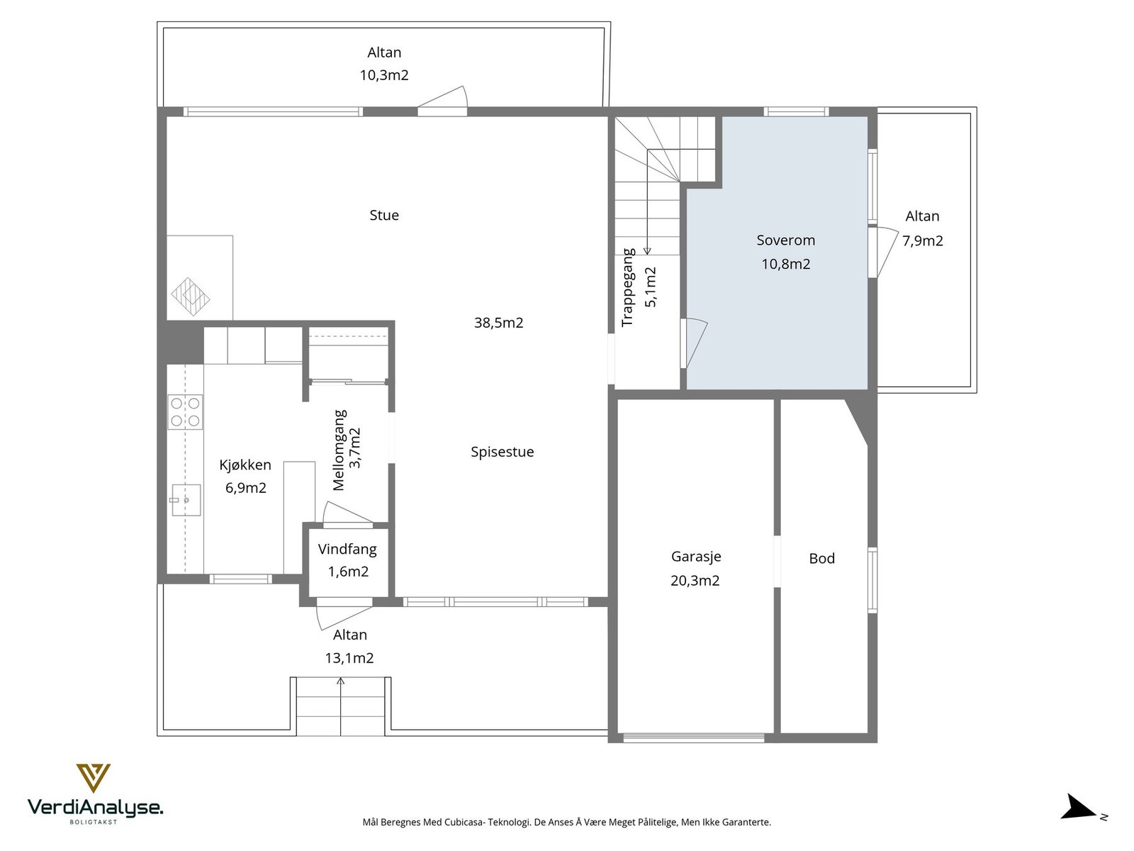
- 154 m² (BRA-i)
- Bruksareal
- 176 m²
- Eksternt bruksareal
- 22 m² (BRA-e)
- Balkong/Terrasse
- 39 m² (TBA)
- Byggeår
- 1965
- Energimerking
- F - Oransje
- Tomteareal
- 844 m² (eiet)
Fasiliteter
Barnevennlig
Balkong/Terrasse
Garasje/P-plass
Kabel-TV
Offentlig vann/kloakk
Peis/Ildsted
Turterreng
Utsikt
Sentralt
Bredbåndstilknytning
Moderne
Rolig
Visning
tirsdag, 24. februar
16:30 – 17:30
Våre visninger har påmelding. Dette gjør vi for å kunne yte bedre service for våre kunder. Verdifullt for boligkjøper og for oss. Vi anbefaler at salgsoppgaven lastes ned digitalt før visning, og ring oss gjerne på forhånd for spørsmål om boligen. Passer ikke angitt tidspunkt, ta kontakt så finner vi en løsning. Skulle det mot formodning ikke være påmeldte til angitt visningstidspunkt vil ikke visning bli gjennomført.
Om boligen
EiendomsMegler 1 v/Oliver Andreassen har gleden av å presentere Venusvegen 12 B!
En flott og innholdsrik vertikaldelt tomannsbolig beliggende i et populært og barnevennlig område. Boligen har en praktisk planløsning med stor stue, 3 (opprinnelig 4) soverom, og utgang til flere terrasser. Boligen har fantastisk utsikt, og svært gode solforhold med sol fra tidlig morgen til sen kveld. Stor opparbeidet tomt på 844 m², med gode parkeringsmuligheter på eiendommen.
Kvaliteter ved eiendommen
En flott og innholdsrik vertikaldelt tomannsbolig beliggende i et populært og barnevennlig område. Boligen har en praktisk planløsning med stor stue, 3 (opprinnelig 4) soverom, og utgang til flere terrasser. Boligen har fantastisk utsikt, og svært gode solforhold med sol fra tidlig morgen til sen kveld. Stor opparbeidet tomt på 844 m², med gode parkeringsmuligheter på eiendommen.
Kvaliteter ved eiendommen
- Hvitt stilrent kjøkken fra 2016 med integrerte hvitevarer
- God plass til stort spisebord i overgangen mellom stue og kjøkken
- Moderne og flislagt bad med gulvvarme, renovert i 2017
- Praktisk spearat vaskerom med ekstra toalett
- 3 gode soverom på 10,8m², 13,4m² og 9,5m²
- Peis/ildsted
- Rikelig med bodplass
- Garasje, samt flere oppstillingsplasser på eiendommen
- Kort og trygg skolevei til Utleira barneskole
- Nærhet til flere barnehager
- Attraktivt idrettsanlegg på Utleira, stort aktivitetstilbud for barn
- Gangavstand til fantastiske helårs turløyper i Estenstadmarka
NB: Knappen for å vise hele beskrivelsen har kun en visuell effekt.
NB: Knappen for å vise hele beskrivelsen har kun en visuell effekt.
Salgsoppgaven beskriver vesentlig og lovpålagt informasjon om eiendommen
Se komplett salgsoppgaveNyttige lenker
Nærområdet
EiendomsMegler 1 Valentinlyst
Vi loser deg trygt gjennom hele boligsalget
Annonseinformasjon
| FINN-kode | 451205401 |
|---|---|
| Sist endret | 16. feb. 2026 12:52 |
| Referanse | 34260030 |
Annonsene kan være mangelfulle i forhold til lovpålagt opplysningsplikt. Før bindende avtale inngås oppfordres interessenter til å innhente komplett informasjon fra meglerforetaket, selger eller utleier.










































