Bildegalleri

Velkommen til Skogveien 61J! En pen selveierleilighet over to plan - 2. etasje og innredet loft. Foto: Stig Føland Foto:
Råde
Stor gjennomgående selveierleilighet over to etasjer med terrasse for både morgen- og kveldssol. Garasje og bod.
Prisantydning4 700 000 kr
Nøkkelinfo
- Boligtype
- Leilighet
- Eieform
- Eier (Selveier)
- Soverom
- 3
- Internt bruksareal
- 138 m² (BRA-i)
- Bruksareal
- 144 m²
- Eksternt bruksareal
- 6 m² (BRA-e)
- Balkong/Terrasse
- 20 m² (TBA)
- Etasje
- 2
- Byggeår
- 2005
- Tomteareal
- 5 472 m² (eiet)
Fasiliteter
Barnevennlig
Balkong/Terrasse
Garasje/P-plass
Kabel-TV
Offentlig vann/kloakk
Parkett
Peis/Ildsted
Sentralt
Bredbåndstilknytning
Rolig
Lademulighet
Visning
lørdag, 21. februar
13:00 – 14:00
Velkommen til visning!
Alle våre visninger har påmelding. På denne måten sikrer vi at megler har god oversikt og tid til å imøtekomme alle interessenter på beste måte. Dette er veldig verdifullt for boligkjøpere og for oss. Det er enkelt å melde seg på, og du kan like enkelt melde deg av. Kontakt også gjerne megler i forkant av visning dersom du har spørsmål.
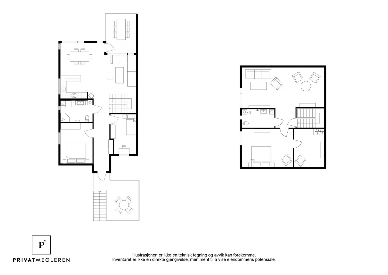
Om boligen
Velkommen til Skogveien 61J!
Dette er en pen selveierleilighet over to plan, 2. etasje og innredet loft - med gjennomtenkt planløsning og normal god standard, hovedsakelig fra byggeår (2005).
- 3 soverom og 2 bad.
- Disponerer parkeringsplass i felles garasjeanlegg.
- Disponerer egen utvendig bod på ca. 6 kvm.
Innhold: Entré/gang, 3 soverom, bad/vaskerom, stue/kjøkken, trapperom, bad, stue og bod.
Dette er en pen selveierleilighet over to plan, 2. etasje og innredet loft - med gjennomtenkt planløsning og normal god standard, hovedsakelig fra byggeår (2005).
- 3 soverom og 2 bad.
- Disponerer parkeringsplass i felles garasjeanlegg.
- Disponerer egen utvendig bod på ca. 6 kvm.
Innhold: Entré/gang, 3 soverom, bad/vaskerom, stue/kjøkken, trapperom, bad, stue og bod.
NB: Knappen for å vise hele beskrivelsen har kun en visuell effekt.
NB: Knappen for å vise hele beskrivelsen har kun en visuell effekt.
Salgsoppgaven beskriver vesentlig og lovpålagt informasjon om eiendommen
Se komplett salgsoppgaveNyttige lenker
Nærområdet

PrivatMegleren Moss
Kun det beste på dine vegne
Annonseinformasjon
| FINN-kode | 451062005 |
|---|---|
| Sist endret | 14. feb. 2026 15:00 |
| Referanse | 116250279 |
Annonsene kan være mangelfulle i forhold til lovpålagt opplysningsplikt. Før bindende avtale inngås oppfordres interessenter til å innhente komplett informasjon fra meglerforetaket, selger eller utleier.



























