Bildegalleri

Velkommen til visning i Steingrims vei 4A. En moderne leilighet fra 2009 med vannbåren varme og balansert ventilasjon. (Foto: Tanumfoto)

Solgt
EKEBERG / BRATTLIKOLLEN

Moderne 3-roms selveierleilighet med solrik balkong | Garasjeplass | Heis | Gasspeis | Oppvarming inkl.

Prisantydning5 490 000 kr
Totalpris
5 628 640 kr
Omkostninger
138 640 kr
Felleskost/mnd.
5 635 kr
Fellesformue
23 994 kr
Formuesverdi
1 377 785 kr

Nøkkelinfo

Boligtype
Leilighet
Eieform
Selveier
Soverom
2
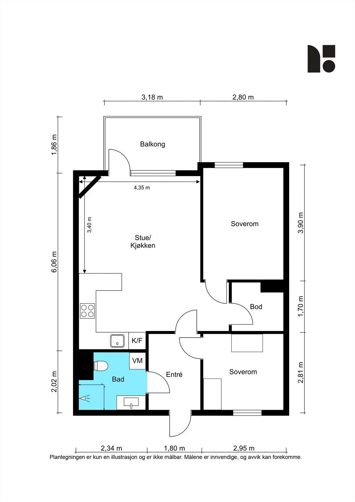
Internt bruksareal
61 m² (BRA-i)
Bruksareal
66 m²
Eksternt bruksareal
5 m² (BRA-e)
Balkong/Terrasse
6 m² (TBA)
Etasje
2
Byggeår
2009
Energimerking
Rom
3
Tomteareal
3 340 m² (eiet)

Les mer om bruksareal her

Fasiliteter

Balkong/Terrasse
Barnevennlig
Bredbåndstilknytning
Garasje/P-plass
Heis
Kjæledyr tillatt
Kabel-TV
Offentlig vann/kloakk
Parkett
Peis/Ildsted
Sentralt
Utsikt
Vaktmester-/vektertjeneste
Turterreng
Lademulighet
Balansert ventilasjon

Om boligen

Rune Herberg v/ Aktiv har gleden av å presentere Steingrims vei 4A, en attraktiv og selveiet 3-roms leilighet beliggende i 2. etasje i moderne bygg fra 2009. Leiligheten ligger i et hyggelig og ettertraktet boligområde på populære Brattlikollen. Her bor du med flotte rekreasjonsmuligheter rett i nærheten, med kort vei til både Ekeberg, Østensjøvannet og Lambertseter med shoppingsenter.

Kort om boligen
*Selveiet moderne 3-roms fra 2009
*Åpen stue/kjøkkenløsning med god romfølelse og en luftig atmosfære
*Vestvendt og solrik balkong
*Garasjeplass i felles anlegg
*Oppvarming med sentralfyring og gasspeis
*Heis fra garasje til leilighetsplan
*Gangavstand til Ekebergparken og Østensjøvannet
*250 meter til T-bane
*Utleie er tillatt
*God lagringsplass i kjellerbod og innvendig bod

Salgsoppgaven beskriver vesentlig og lovpålagt informasjon om eiendommen

Se komplett salgsoppgave

Nærområdet

Annonseinformasjon

FINN-kode451041713
Sist endret19. mars 2026 11:59
Referanse1009260010

Rapporter annonse

Annonsene kan være mangelfulle i forhold til lovpålagt opplysningsplikt. Før bindende avtale inngås oppfordres interessenter til å innhente komplett informasjon fra meglerforetaket, selger eller utleier.