


Velkommen til Ola Narr 6! Presentert av Schala & Partners v/ Alexander Lerberg.
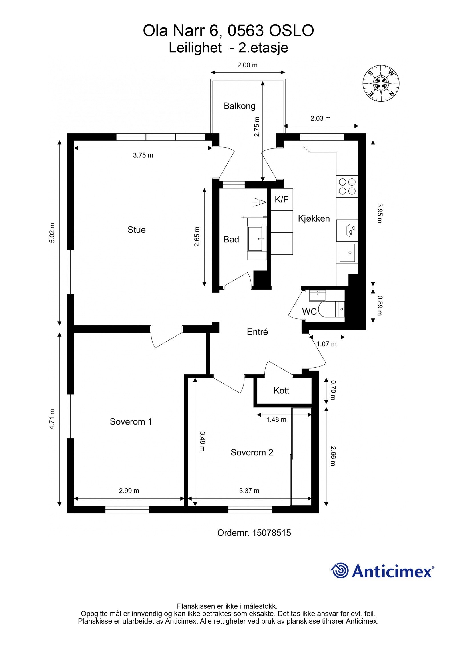
Velkommen til en lys og pen 3-roms hjørneleilighet med solrik balkong. Leiligheten har en romslig og praktisk planløsning. Det er god takhøyde og vindusflater i flere retninger som gir gode innvendige lysforhold.
Her bor man i naturskjønne omgivelser med Ola Narr-parken som nærmeste nabo. Perfekt for deg som ønsker å bo sentralt med umiddelbar nærhet til urbant byliv, samtidig som du bor tilbaketrukket til, med store og flotte grøntarealer like utenfor døren.
Salgsoppgaven beskriver vesentlig og lovpålagt informasjon om eiendommen
Se komplett salgsoppgaveOla Narr 6
på annonsen
prisantydning per kvadratmeter
Pris per m² ligger 16 605 kr under snittet for leiligheter i Grünerløkka - Sofienberg.
Grafen viser antall leiligheter solgt i Grünerløkka - Sofienberg siste året fordelt på pris per m² - totalt 2 429 leiligheter
Antall boliger
Kvadratmeterpris tilsvarer prisantydning pluss fellesgjeld per kvadratmeter (p-rom eller BRA-i). Prisene i grafen er avrundet til nærmeste 1000 kr.












| FINN-kode | 451012070 |
|---|---|
| Sist endret | 27. feb. 2026 13:19 |
| Referanse | 17260007 |
Annonsene kan være mangelfulle i forhold til lovpålagt opplysningsplikt. Før bindende avtale inngås oppfordres interessenter til å innhente komplett informasjon fra meglerforetaket, selger eller utleier.