Bildegalleri

Velkommen til Ersfjordvegen 23!
Ersfjorden
Fantastisk familiebolig med 3 måls tomt beliggende i idylliske Ersfjorden. Stor dobbeltgarasje med hems!
Prisantydning6 900 000 kr
Nøkkelinfo
- Boligtype
- Enebolig
- Eieform
- Eier (Selveier)
- Soverom
- 3
- Internt bruksareal
- 147 m² (BRA-i)
- Bruksareal
- 226 m²
- Eksternt bruksareal
- 79 m² (BRA-e)
- Balkong/Terrasse
- 66 m² (TBA)
- Etasje
- 2
- Byggeår
- 2006
- Rom
- 5
- Tomteareal
- 3 256 m² (eiet)
Fasiliteter
Balkong/Terrasse
Barnevennlig
Bredbåndstilknytning
Garasje/P-plass
Hage
Kjæledyr tillatt
Ingen gjenboere
Kabel-TV
Offentlig vann/kloakk
Peis/Ildsted
Rolig
Sentralt
Utsikt
Turterreng
Lademulighet
Om boligen
Nydelig enebolig beliggende i Ersfjord med magisk utsikt mot havet og fjellene.
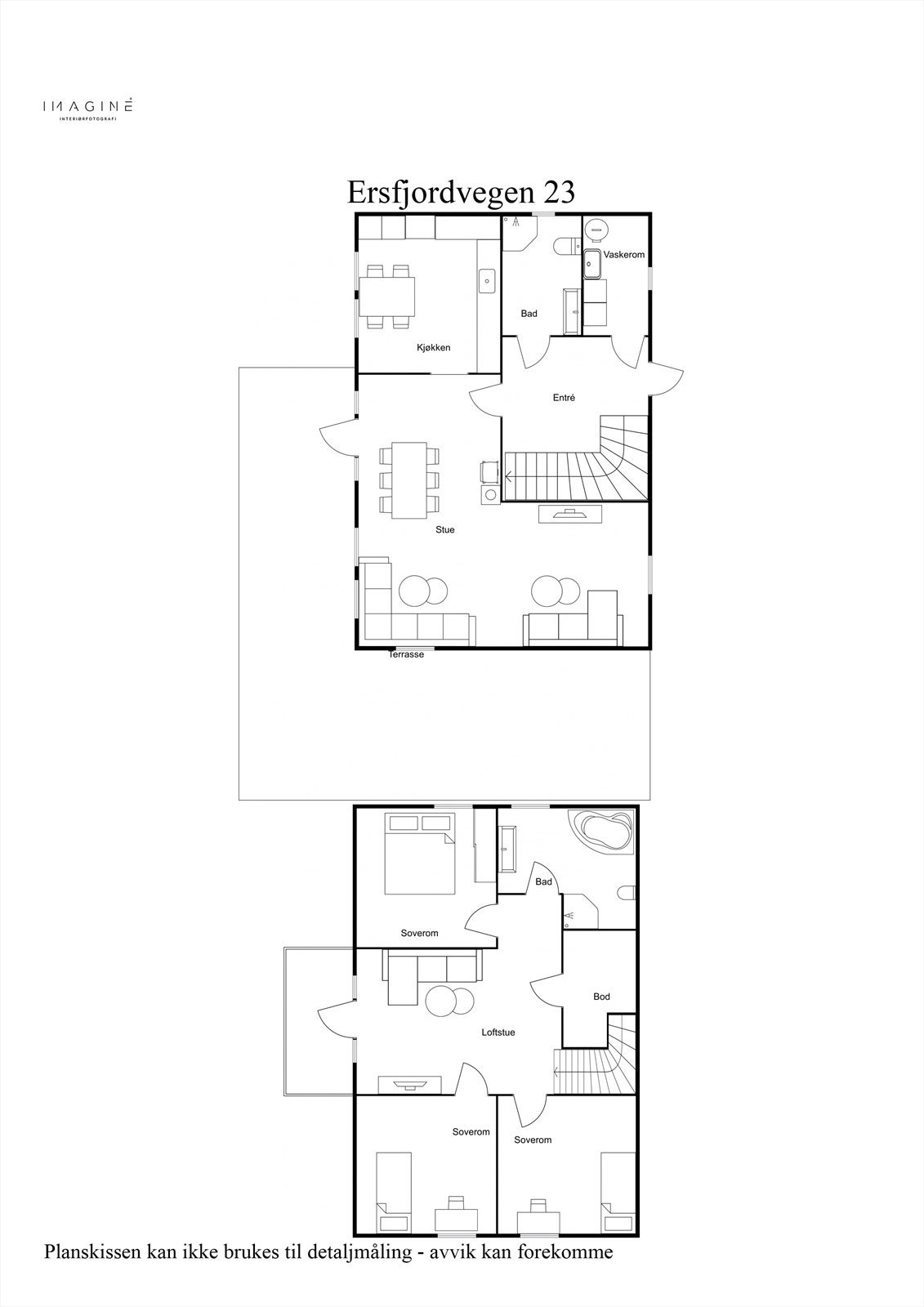
Boligen strekker seg over 2 plan, er innholdsrik og holder gjennomgående høy standard. Første etasje byr på romslig yttergang, komplett flislagt bad og praktisk vaskerom. Stort og fint kjøkken med delvis integrerte løsninger, samt lys og åpen stue med direkte utgang til romslig solrik terrasse.
2. etasje består av 3 romslige soverom, flott bad med moderne innredninger, samt hyggelig loftstue med utgang til balkong med nydelig utsikt mot fjell og hav.
Dobbeltgarasje bygd i 2008 med romslig hems med allsidige bruksmuligheter.
Nydelige og stort uteområde på hele 3 mål med terrasse og flott stor hage. Boligens ypperlige plassering gir optimale solforhold samt umiddelbar nærhet til vakker natur.
Boligen strekker seg over 2 plan, er innholdsrik og holder gjennomgående høy standard. Første etasje byr på romslig yttergang, komplett flislagt bad og praktisk vaskerom. Stort og fint kjøkken med delvis integrerte løsninger, samt lys og åpen stue med direkte utgang til romslig solrik terrasse.
2. etasje består av 3 romslige soverom, flott bad med moderne innredninger, samt hyggelig loftstue med utgang til balkong med nydelig utsikt mot fjell og hav.
Dobbeltgarasje bygd i 2008 med romslig hems med allsidige bruksmuligheter.
Nydelige og stort uteområde på hele 3 mål med terrasse og flott stor hage. Boligens ypperlige plassering gir optimale solforhold samt umiddelbar nærhet til vakker natur.
NB: Knappen for å vise hele beskrivelsen har kun en visuell effekt.
NB: Knappen for å vise hele beskrivelsen har kun en visuell effekt.
Salgsoppgaven beskriver vesentlig og lovpålagt informasjon om eiendommen
Se komplett salgsoppgaveNyttige lenker
Nærområdet
GARANTI Eiendomsmegling Tromsø
Annonseinformasjon
| FINN-kode | 450963501 |
|---|---|
| Sist endret | 13. feb. 2026 20:36 |
| Referanse | GAR51.25212 |
Annonsene kan være mangelfulle i forhold til lovpålagt opplysningsplikt. Før bindende avtale inngås oppfordres interessenter til å innhente komplett informasjon fra meglerforetaket, selger eller utleier.






































