Bildegalleri

Fin og innholdsrik del av tomannsbolig i Ullandhaugsskråningen, med flott utsikt, solrik tomt med både gressplen og terrasse, carport med bod. ( Foto Arve Gravdal ) Hage med plass til hagemøbler og trampoline. Nedgang til kjeller også fra hage.
Solgt
ULLANDHAUGSKRÅNINGEN
Flott del av tomannsbolig med nydelig utsikt, solrik tomt og rolig beliggenhet. 3 sov, 2 bad, romslig stue. Carport.
Prisantydning6 590 000 kr
Nøkkelinfo
- Boligtype
- Tomannsbolig
- Eieform
- Eier (Selveier)
- Soverom
- 3
- Internt bruksareal
- 149 m² (BRA-i)
- Bruksareal
- 157 m²
- Eksternt bruksareal
- 8 m² (BRA-e)
- Balkong/Terrasse
- 26 m² (TBA)
- Byggeår
- 1959
- Energimerking
- F - Oransje
- Tomteareal
- 343 m² (eiet)
Fasiliteter
Balkong/Terrasse
Barnevennlig
Bredbåndstilknytning
Garasje/P-plass
Golfbane
Hage
Kjæledyr tillatt
Kabel-TV
Offentlig vann/kloakk
Parkett
Peis/Ildsted
Rolig
Sentralt
Utsikt
Turterreng
Lademulighet
Balansert ventilasjon
Om boligen
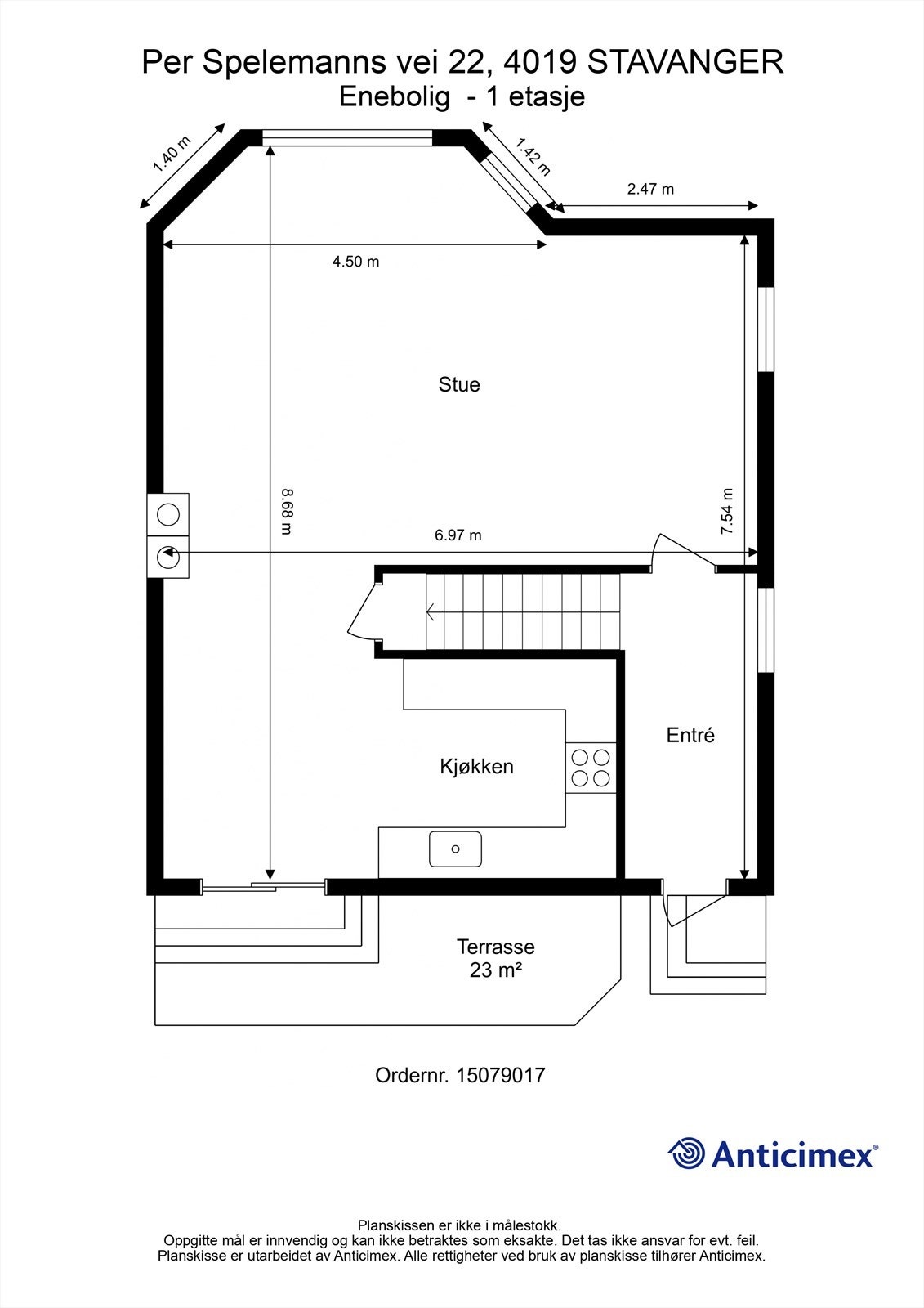
- Vertikaldelt tomannsbolig med rolig og fin beliggenhet i Ullandhaugskråningen, og med flott utsikt fra flere rom
- 3 sov, 2 bad, romslig stue og rikelig med lagringsplass i kjeller
- Solrik tomt med både gressplen og terrasse
- Carport med bod i bakkant og elbil-lader.Plass til å parkere 2 biler
- Kjøkken i tidløst design. Bra med skapplass, delvis integrerte hvitevarer
- Utgang til vestvendt terrasse fra kjøkken, god plass til hagemøbler og grill
- Stue med store vindusflater, luftig og åpen utsikt. Peis til kalde dager
- 2.etg har 3 soverom av god størrelse og bad som var oppgradert i 2020
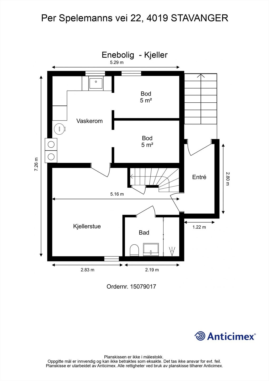
- Kjeller med egen inngang, bad nr 2, vaskerom, hobbyrom og 2 boder
- Gangavstand til UIS, SUS, Mosvannet, Sørmarka, Ullandhaugstårnet
- Loft med god takhøyde og lagringsplass
NB: Knappen for å vise hele beskrivelsen har kun en visuell effekt.
NB: Knappen for å vise hele beskrivelsen har kun en visuell effekt.
Salgsoppgaven beskriver vesentlig og lovpålagt informasjon om eiendommen
Se komplett salgsoppgaveNyttige lenker
Nærområdet
Krogsveen Stavanger
Verdien av en god megler.
Annonseinformasjon
| FINN-kode | 450923641 |
|---|---|
| Sist endret | 09. mars 2026 18:09 |
| Referanse | KR35.2622 |
Annonsene kan være mangelfulle i forhold til lovpålagt opplysningsplikt. Før bindende avtale inngås oppfordres interessenter til å innhente komplett informasjon fra meglerforetaket, selger eller utleier.










































































