Bildegalleri

Velkommen til Haneborgveien 43B - Ta kontakt med Lars Espen Storebø på tlf. 99161972 for avtale om privatvisning.
Lekker familiebolig med svært høy standard - Vannbåren gulvvarme - Takterrasse - dobbeltgarasje
Nøkkelinfo
- Boligtype
- Tomannsbolig
- Eieform
- Eier (Selveier)
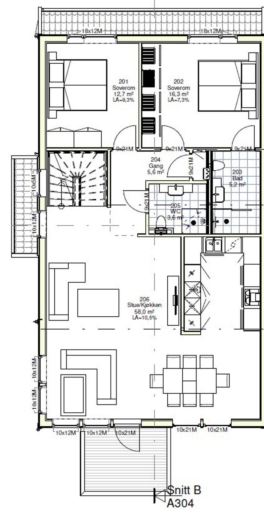
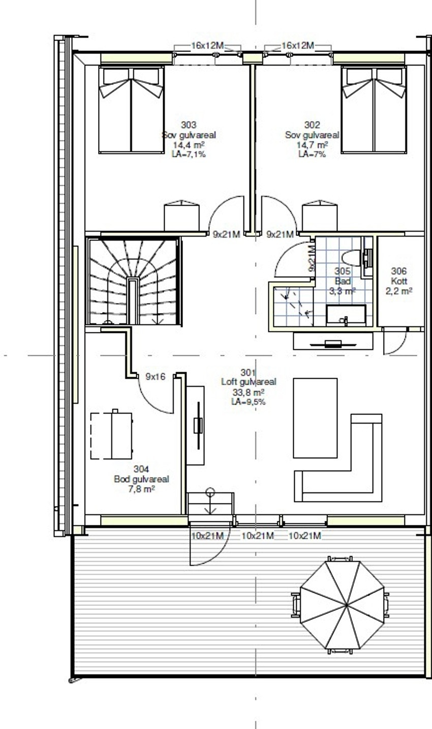
- Soverom
- 6
- Internt bruksareal
- 273 m² (BRA-i)
- Bruksareal
- 273 m²
- Byggeår
- 2025
- Energimerking
- A - Gul
- Rom
- 9
- Tomt
- Eiet
Fasiliteter
Visning
Om boligen
Velkommen til Haneborgveien 43A. En nyoppført og moderne bolig med høy standard, oppført av Flateby Eiendom. Boligen er utviklet med fokus på kvalitet, funksjonelle løsninger og god arealutnyttelse. En del av boligen er tilrettelagt med mulighet for utleie, noe som gir økt fleksibilitet og et attraktivt inntektspotensial. Eiendommen disponerer integrert, romslig garasje og tiltalende utearealer som legger til rette for en praktisk og komfortabel hverdag.
Høydepunkter:
- Integrert stor garasje med direkte adkomst
- Terrasser med gode solforhold
- Hageareal med plass til utemøbler og lek
- Balansert ventilasjon
- Luft-til-vann varmepumpe med Sigmasentral
- Vannbåren gulvvarme i alle etasjer
- Lav dok. avgift.
Salgsoppgaven beskriver vesentlig og lovpålagt informasjon om eiendommen
Se komplett salgsoppgaveNyttige lenker
Nærområdet

PrivatMegleren Lillestrøm
Annonseinformasjon
| FINN-kode | 450913143 |
|---|---|
| Sist endret | 14. feb. 2026 03:13 |
| Referanse | 24250091 |
Annonsene kan være mangelfulle i forhold til lovpålagt opplysningsplikt. Før bindende avtale inngås oppfordres interessenter til å innhente komplett informasjon fra meglerforetaket, selger eller utleier.




















































