Bildegalleri

Ali Khoshnau og Morten Høvik ved EiendomsMegler 1 har gleden av å presentere Helsings gate 11!
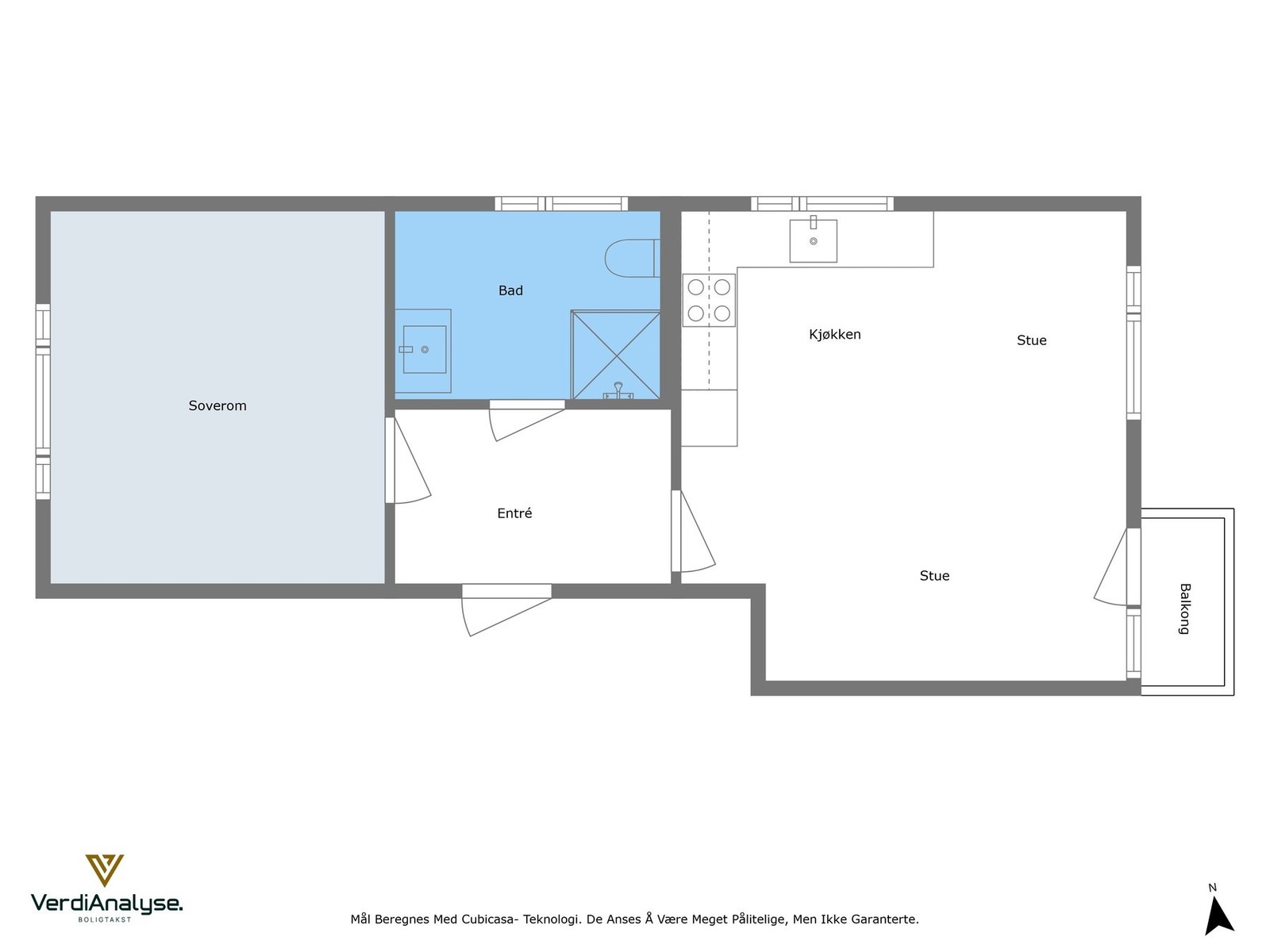
Delikat og nyoppusset 2-roms selveierleilighet med meget sentralt beliggenhet! Parkering i garasjeanlegg - HTH kjøkken
Nøkkelinfo
- Boligtype
- Leilighet
- Eieform
- Eier (Selveier)
- Soverom
- 1
- Internt bruksareal
- 50 m² (BRA-i)
- Bruksareal
- 53 m²
- Tomt
- Eiet
Fasiliteter
Visning
Kort om eiendommen
EiendomsMegler 1 ved Ali Khoshnau og Morten Høvik har gleden av å presentere Helsings gate 11!
Delikat 2-roms selveierleilighet med meget sentralt beliggende. Leiligheten er helt nyoppusset og ubebodd. Grønn - B, noe som gjør at den kvalifiserer for grønne boliglån.
4 av 7 SOLGT!
Her bor man midt i sentrum med alle fasiliteter i.
Er du på utkikk etter en nyoppusset leilighet med svært sentralt beliggenhet? Da er Helsings gate 11 noe for deg.
Her finner du leiligheter som egner seg til alt fra en yngre kjøpegruppe til godt voksne som ønsker seg en enklere hverdag.
Helsings gate 11 er det naturlige valget for deg som vil takke ja til alle godene med å bo splitter nytt og svært sentralt.
Av kvaliteter som trekkes fram:
- Leiligheter med TEK 17-standard
- Kjøkken fra HTH
- Muligheter for parkering
- Lave felleskostnader
- Sentral & attraktiv beliggenhet, med nærhet til alle fasiliteter sentrum har å by på
Ta kontakt for mer info!
Beskrivelse (type bolig)
Selveierleilighet
Ligningsverdi (formuesverdi)
Skattemessig formuesverdi er oppgitt av Altinn.
Salgsoppgaven beskriver vesentlig og lovpålagt informasjon om eiendommen
Se komplett salgsoppgaveNyttige lenker
Nærområdet
EiendomsMegler 1 Kristiansund
Annonseinformasjon
| FINN-kode | 450865133 |
|---|---|
| Sist endret | 13. feb. 2026 10:30 |
| Referanse | R-172510003-Single |
Annonsene kan være mangelfulle i forhold til lovpålagt opplysningsplikt. Før bindende avtale inngås oppfordres interessenter til å innhente komplett informasjon fra meglerforetaket, selger eller utleier.


























