Bildegalleri

DNB Eiendom v/eiendomsmegler Anders Selvik har gleden av å presentere Axel Brinchs vei 18
Idyll for barnefamilien.
Pent enderekkehus med meget attraktiv og barnevennlig beliggenhet | Umiddelbar nærhet til Østensjø skole | Garasjeplass.
Prisantydning11 500 000 kr
Nøkkelinfo
- Boligtype
- Rekkehus
- Eieform
- Eier (Selveier)
- Soverom
- 3
- Internt bruksareal
- 146 m² (BRA-i)
- Bruksareal
- 148 m²
- Eksternt bruksareal
- 2 m² (BRA-e)
- Balkong/Terrasse
- 28 m² (TBA)
- Etasje
- 3
- Byggeår
- 1968
- Energimerking
- F - Oransje
- Rom
- 5
- Tomteareal
- 2 763 m² (eiet)
Fasiliteter
Balkong/Terrasse
Barnevennlig
Garasje/P-plass
Hage
Kjæledyr tillatt
Offentlig vann/kloakk
Parkett
Peis/Ildsted
Rolig
Sentralt
Turterreng
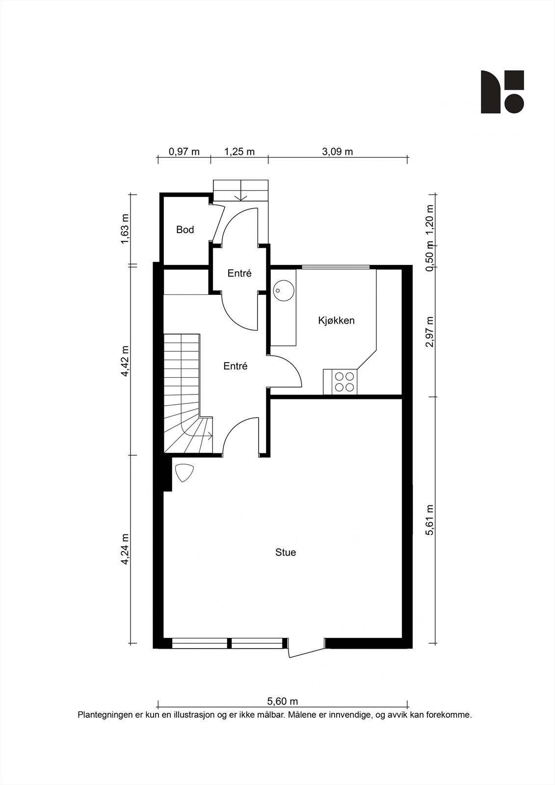
Om boligen
Dette romslige og innholdsrike enderekkehuset, fordelt på tre plan, ligger i et veletablert og svært ettertraktet område på Skøyenåsen/Godlia - et barnevennlig nabolag med trygg skolevei og en rolig atmosfære. Her bor du i et attraktivt boligområde bestående av rekkehus og eneboliger. Boligen har tre gode soverom, en koselig kjellerstue samt en romslig stue, begge med peisovn. Videre har boligen et hyggelig kjøkkenet som er både praktisk og funksjonelt, to flislagte bad, og et godt vaskerom i kjelleretasjen, så her er alt tilrettelagt for en behagelig hverdag. Fra stuen har man utgang til den sydvendte terrassen og hagen, et solfylt uterom hvor du kan nyte lange sommerkvelder.
Boligen har god lagringsplass i garderober, loft og boder.
Det følger egen garasjeplass i fellesanlegg.
Boligen har god lagringsplass i garderober, loft og boder.
Det følger egen garasjeplass i fellesanlegg.
NB: Knappen for å vise hele beskrivelsen har kun en visuell effekt.
NB: Knappen for å vise hele beskrivelsen har kun en visuell effekt.
Salgsoppgaven beskriver vesentlig og lovpålagt informasjon om eiendommen
Se komplett salgsoppgaveNyttige lenker
Nærområdet
DNB Eiendom AS
Verdifulle salg
Annonseinformasjon
| FINN-kode | 450775540 |
|---|---|
| Sist endret | 13. feb. 2026 23:41 |
| Referanse | 310260042 |
Annonsene kan være mangelfulle i forhold til lovpålagt opplysningsplikt. Før bindende avtale inngås oppfordres interessenter til å innhente komplett informasjon fra meglerforetaket, selger eller utleier.























































