Bildegalleri

Velkommen til Bonesvegen 23G! Et innbydende og innholdsrikt enderekkehus med moderne uttrykk og gjennomtenkt planløsning.
Solsletta
NYHET! INNHOLDSRIKT OG INNBYDENDE ENDEREKKEHUS OVER 3 PLAN| BYGGEÅR 2021|FLERE SOLRIKE UTEPLASSER| P-PLASS I P-KJELLER
Prisantydning7 500 000 kr
Nøkkelinfo
- Boligtype
- Rekkehus
- Eieform
- Eier (Selveier)
- Soverom
- 5
- Internt bruksareal
- 144 m² (BRA-i)
- Bruksareal
- 149 m²
- Eksternt bruksareal
- 5 m² (BRA-e)
- Balkong/Terrasse
- 35 m² (TBA)
- Byggeår
- 2021
- Energimerking
- A - Mørkegrønn
- Rom
- 7
- Tomteareal
- 9 024 m² (eiet)
Fasiliteter
Barnevennlig
Balkong/Terrasse
Garasje/P-plass
Offentlig vann/kloakk
Parkett
Turterreng
Moderne
Rolig
Bademulighet
Lademulighet
Visning
onsdag, 25. februar
17:00 – 18:00
Våre visninger har påmelding. Dette gjør vi for å kunne yte bedre service for våre kunder. Verdifullt for boligkjøper og for oss. Vi anbefaler at salgsoppgaven lastes ned digitalt før visning, og ring oss gjerne på forhånd for spørsmål om boligen. Passer ikke angitt tidspunkt, ta kontakt så finner vi en løsning. Skulle det mot formodning ikke være påmeldte til angitt visningstidspunkt vil ikke visning bli gjennomført.
Om boligen
Velkommen til Bonesvegen 23G! Et innbydende og innholdsrikt enderekkehus med moderne uttrykk og gjennomtenkt planløsning. Boligen ble oppført i 2021 og fremstår meget velholdt. Det bilfrie boligfeltet, kombinert med flere lekeplasser, gjør området svært barnevennlig. Her får du også flere solrike uteplasser, inkludert en flott takterrasse med lang solgang - perfekt for varme sommerdager!
- Nybygg garanti frem til november 2026
- Fantastisk romfølelse med god takhøyde og store vindusflater
- Stilren kjøkkeninnredning fra kvalitetsleverandøren HTH med flere tilvalg
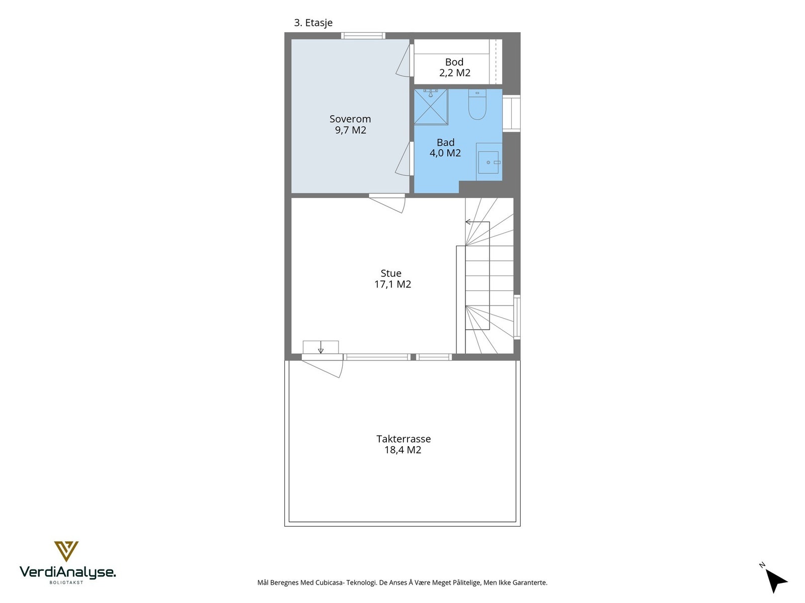
- 5 soverom og 2 bad
- Takterrasse og 2 markterrasser
- Boligen er tilkoblet fjernvarme, og har vannbåren gulvvarme i alle rom, med unntak av soverom og boder
- Flislagt entré med romslig skyvdørsgarderobe
- Flere boder til lagring
- Parkering i felles p-kjeller med elbil-lader
- Nærhet til barnehager, barneskole, marka og dagligvare
NB: Knappen for å vise hele beskrivelsen har kun en visuell effekt.
NB: Knappen for å vise hele beskrivelsen har kun en visuell effekt.
Salgsoppgaven beskriver vesentlig og lovpålagt informasjon om eiendommen
Se komplett salgsoppgaveNyttige lenker
Nærområdet
EiendomsMegler 1 Valentinlyst
Vi loser deg trygt gjennom hele boligsalget
Annonseinformasjon
| FINN-kode | 450763656 |
|---|---|
| Sist endret | 16. feb. 2026 12:39 |
| Referanse | 34250211 |
Annonsene kan være mangelfulle i forhold til lovpålagt opplysningsplikt. Før bindende avtale inngås oppfordres interessenter til å innhente komplett informasjon fra meglerforetaket, selger eller utleier.












































