Bildegalleri

Eiendomsmegler & partner Fabian Robertino (92117474) ønsker deg velkommen til Kongsten og andre etasje i Fru Ingers Gate 9!
KONGSTEN
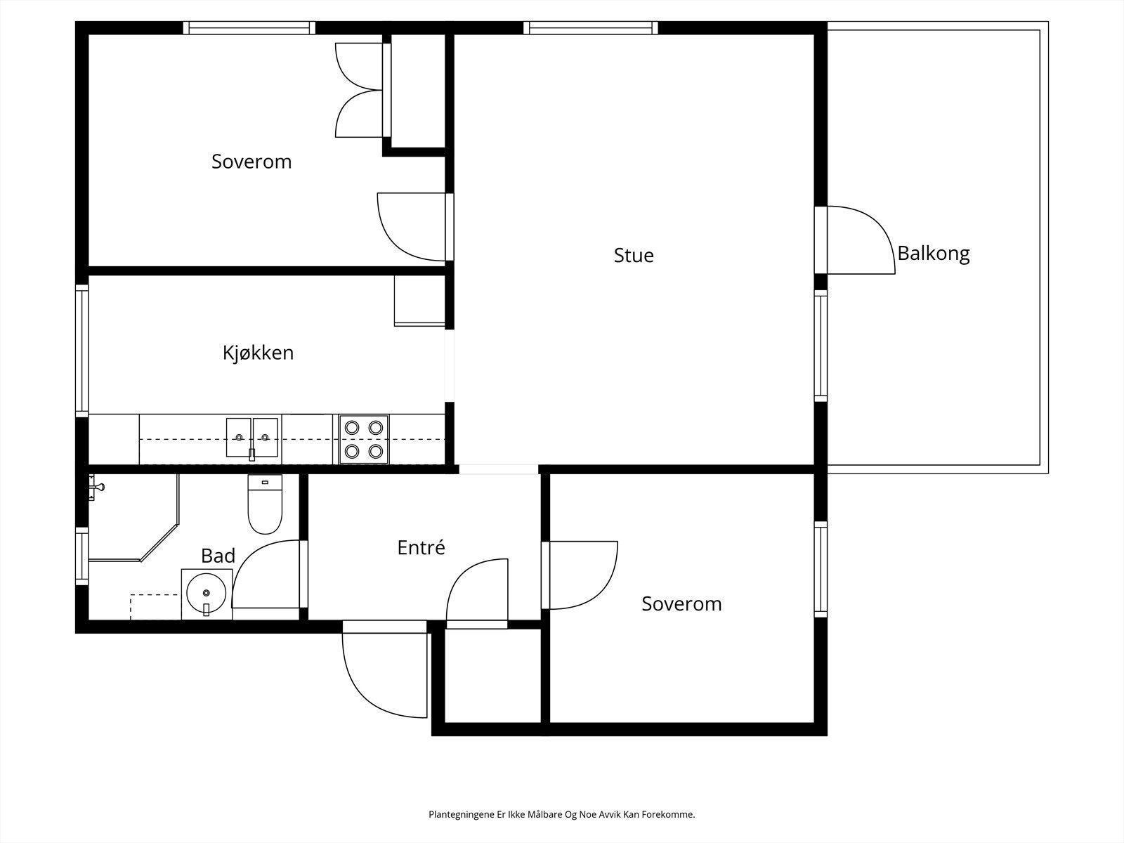
Pen 3-roms andelsleilighet i 2. etasje | Vestvendt terrasse på 12 m² | Bad m/ varmekabler | Gode lagringsmuligheter.
Prisantydning1 800 000 kr
Nøkkelinfo
- Boligtype
- Leilighet
- Eieform
- Andel
- Soverom
- 2
- Internt bruksareal
- 66 m² (BRA-i)
- Bruksareal
- 90 m²
- Eksternt bruksareal
- 24 m² (BRA-e)
- Balkong/Terrasse
- 12 m² (TBA)
- Etasje
- 2
- Byggeår
- 1960
- Energimerking
- F - Oransje
- Rom
- 3
- Tomteareal
- 9 064 m²
Fasiliteter
Balkong/Terrasse
Barnevennlig
Bredbåndstilknytning
Garasje/P-plass
Hage
Kjæledyr tillatt
Kabel-TV
Offentlig vann/kloakk
Rolig
Sentralt
Turterreng
Lademulighet
Visning
mandag, 23. februar
18:30 – 19:15
Velkommen til visning! Meld deg på ved å trykke "visningspåmelding" i våre boligannonser. Ta gjerne kontakt med megler i forkant av visningen om du har spørsmål.
VisningspåmeldingOm boligen
Partner Fabian Robertino(92117474) i DNB Eiendom presenterer en lys og trivelig leilighetermed en flott, vestvendt terrasse. Her bor du i et fredelig og barnevennlig nabolag på Kongsten, med kort gangavstand til idyllen i Gamlebyen. Leiligheten ligger skjermet til i 2. etasje med en arealeffektiv planløsning som inkluderer 2soverom. Den vestvendte terrassen på 12 m² vender ut mot et grønt og frodig fellesareal, og blir en naturlig forlengelse av stuen på varme dager.
Høydepunkter:
Høydepunkter:
- Vestvendt og skjermet terrasse på 12 m²
- Bad fra 2005 med varmekabler og opplegg for vaskemaskin
- To gode soverom
- Svært gode lagringsmuligheter med to kjellerboder og en loftsbod
- Barnevennlig og rolig beliggenhet
- Gangavstand til Gamlebyen, skoler og servicetilbud
NB: Knappen for å vise hele beskrivelsen har kun en visuell effekt.
NB: Knappen for å vise hele beskrivelsen har kun en visuell effekt.
Salgsoppgaven beskriver vesentlig og lovpålagt informasjon om eiendommen
Se komplett salgsoppgaveNyttige lenker
Nærområdet
DNB Eiendom AS
Verdifulle salg
Annonseinformasjon
| FINN-kode | 450759749 |
|---|---|
| Sist endret | 13. feb. 2026 15:03 |
| Referanse | 217260020 |
Annonsene kan være mangelfulle i forhold til lovpålagt opplysningsplikt. Før bindende avtale inngås oppfordres interessenter til å innhente komplett informasjon fra meglerforetaket, selger eller utleier.



































