Bildegalleri

Opheimsgata 6 presenteres av Simen Rossebø Fosen v/DNB Eiendom.
Storhaug
Innbydende og lys eierleilighet over to plan med sentral beliggenhet
Prisantydning3 490 000 kr
Nøkkelinfo
- Boligtype
- Leilighet
- Eieform
- Eier (Selveier)
- Soverom
- 1
- Internt bruksareal
- 59 m² (BRA-i)
- Bruksareal
- 64 m²
- Eksternt bruksareal
- 5 m² (BRA-e)
- Etasje
- 1
- Byggeår
- 1901
- Energimerking
- G - Rød
- Rom
- 2
- Tomteareal
- 251 m² (eiet)
Fasiliteter
Offentlig vann/kloakk
Parkett
Sentralt
Visning
torsdag, 19. februar
16:15 – 16:45
Velkommen til visning! Meld deg på ved å trykke "visningspåmelding" i våre boligannonser. Ta gjerne kontakt med megler i forkant av visningen om du har spørsmål.
VisningspåmeldingOm boligen
En tiltalende eierleilighet med gangavstand til Stavanger sentrum. Her bor man med kort gåavstand til et bredt utvalg av fasiliteter og servicetilbud. Området har gode kollektivmuligheter med buss, og Stavanger stasjon ligger i underkant av ti minutters gange unna. Til tross for den sentrale beliggenheten finnes det flotte tur- og rekreasjonsområder i nærheten. En ideell beliggenhet for deg som ønsker enkel tilgang til alt byen har å by på!
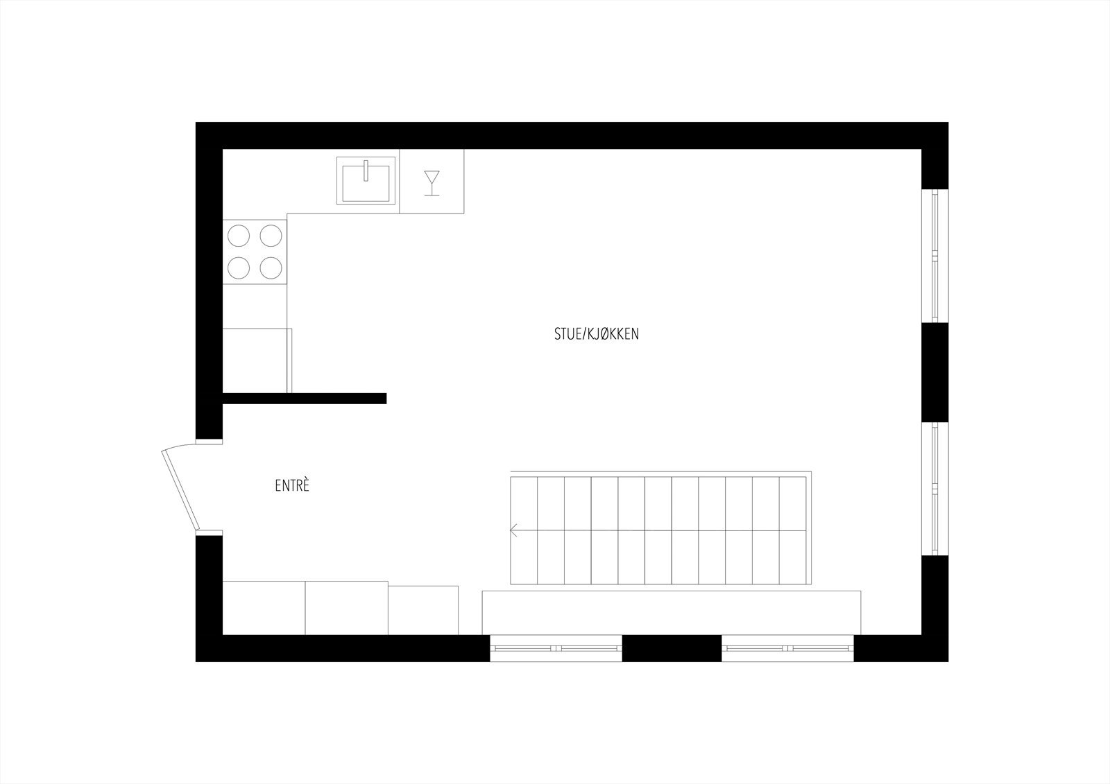
Leiligheten har en smart og arealeffektiv planløsning over to plan, med god takhøyde og flott lysinnslipp. Den kan by på en åpen stue- og kjøkkenløsning, et bad/vaskerom og et soverom. Utførelsen er moderne og gjennomført. Leiligheten har også gode lagringsmuligheter, med både innvendig og utvendig bod.
Vel møtt til en hyggelig visning!
Leiligheten har en smart og arealeffektiv planløsning over to plan, med god takhøyde og flott lysinnslipp. Den kan by på en åpen stue- og kjøkkenløsning, et bad/vaskerom og et soverom. Utførelsen er moderne og gjennomført. Leiligheten har også gode lagringsmuligheter, med både innvendig og utvendig bod.
Vel møtt til en hyggelig visning!
NB: Knappen for å vise hele beskrivelsen har kun en visuell effekt.
NB: Knappen for å vise hele beskrivelsen har kun en visuell effekt.
Salgsoppgaven beskriver vesentlig og lovpålagt informasjon om eiendommen
Se komplett salgsoppgaveNyttige lenker
Nærområdet
DNB Eiendom AS
Verdifulle salg
Annonseinformasjon
| FINN-kode | 450751079 |
|---|---|
| Sist endret | 12. feb. 2026 16:15 |
| Referanse | 703260099 |
Annonsene kan være mangelfulle i forhold til lovpålagt opplysningsplikt. Før bindende avtale inngås oppfordres interessenter til å innhente komplett informasjon fra meglerforetaket, selger eller utleier.






































