Bildegalleri

Velkommen til Tvetenveien 207!

Trosterud

Pen 4-roms leilighet i attraktivt og barnevennlig miljø på Trosterud. Stor innglasset balkong med fantastisk utsikt

Prisantydning4 700 000 kr
Totalpris
4 972 667 kr
Omkostninger
19 446 kr
Fellesgjeld
253 221 kr
Felleskost/mnd.
6 515 kr
Fellesformue
26 944 kr
Formuesverdi
1 185 957 kr

Nøkkelinfo

Boligtype
Leilighet
Eieform
Andel
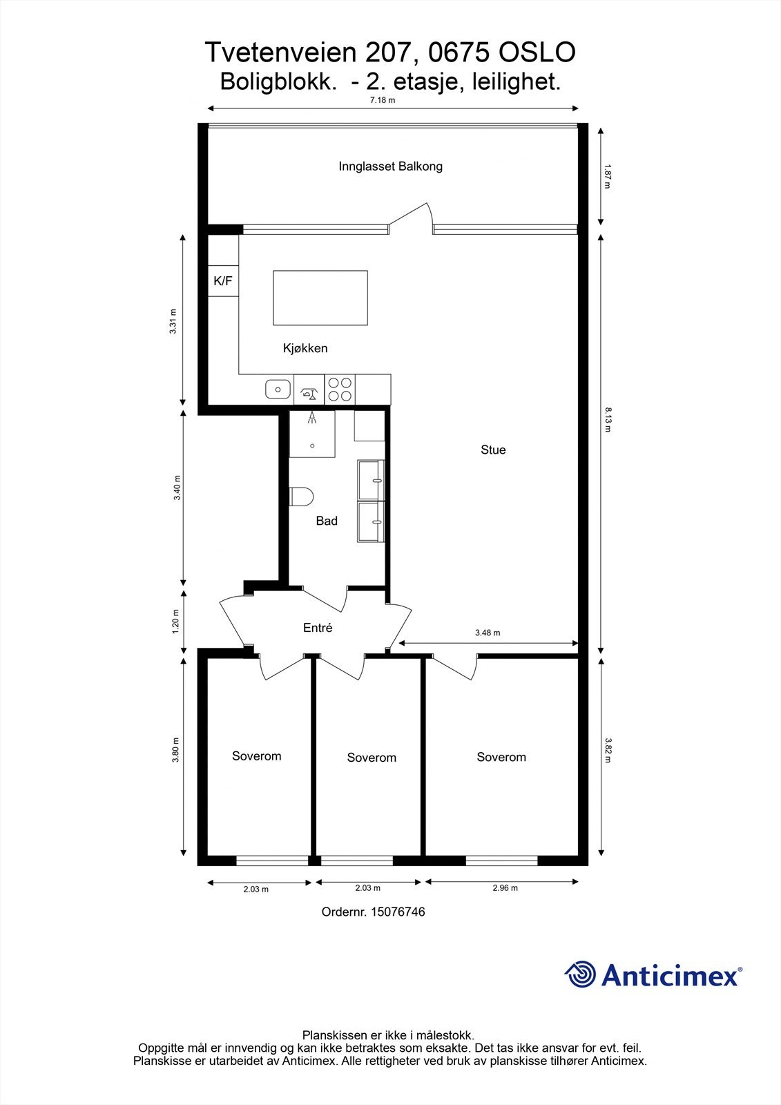
Soverom
3
Internt bruksareal
80 m² (BRA-i)
Bruksareal
100 m²
Eksternt bruksareal
6 m² (BRA-e)
Innglasset balkong
14 m² (BRA-b)
Etasje
2
Byggeår
1973
Energimerking
E - Rød
Rom
4
Tomteareal
38 397 m² (eiet)

Les mer om bruksareal her

Fasiliteter

Balkong/Terrasse
Barnevennlig
Bredbåndstilknytning
Garasje/P-plass
Kjæledyr tillatt
Kabel-TV
Offentlig vann/kloakk
Utsikt
Vaktmester-/vektertjeneste
Turterreng
Lademulighet

Visning

søndag, 22. februar
14:00 – 15:00
tirsdag, 24. februar
17:00 – 18:00
For å delta på visning, ber vi om at du melder deg på. Da sikrer vi at du får nødvendig informasjon og at det er satt av tilstrekkelig med tid. Kontakt megler dersom annet tidspunkt ønskes. Husk å lese salgsoppgaven før visningen, så du stiller forberedt. Ønsker du kun å bli holdt orientert, kan du fra eiendommens hjemmeside få varsel om solgtpris, eller kontakte megler.
Visningspåmelding

Om boligen

Velkommen til Tvetenveien 207! En lekker og meget arealeffektiv 4-roms andelsleilighet i et rolig og barnevennlig område.

Her bor du skjermet og fint til med kort vei til alt du trenger i hverdagen. Med T-banen kun tre minutter unna er reiseveien til sentrum kort og effektiv. Leiligheten er perfekt for deg som setter pris på nærhet til både servicetilbud og flotte turområder i Østmarka. Den store, innglassede balkongen blir en naturlig forlengelse av stuen, hvor du kan nyte en pen og langstrakt utsikt.

Høydepunkter:
  • Stor, vestvendt og innglasset balkong på 14 m²
  • Moderne bad og stilrent kjøkken fra 2017
  • Tre gode soverom med praktisk planløsning
  • Kort gangavstand til T-bane og buss
  • To boder i underetasjen gir rikelig med lagringsplass

    Velkommen til visning!

Salgsoppgaven beskriver vesentlig og lovpålagt informasjon om eiendommen

Se komplett salgsoppgave

Nærområdet

Annonseinformasjon

FINN-kode450744763
Sist endret15. feb. 2026 07:40
ReferanseKR10.25317

Rapporter annonse

Annonsene kan være mangelfulle i forhold til lovpålagt opplysningsplikt. Før bindende avtale inngås oppfordres interessenter til å innhente komplett informasjon fra meglerforetaket, selger eller utleier.