Bildegalleri

DNB Eiendom v/Michael A. Meyer (T 48062870) ønsker deg velkommen til Begby og andre etasje i Turkistunet 23!
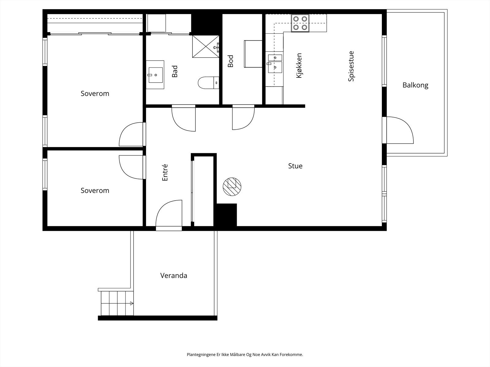
BEGBY
Moderne 3-roms fra 2017 med god takhøyde og store vindusflater. Vedovn. Solrik vestvendt terrasse. Carport med ladepunkt
Prisantydning3 590 000 kr
Nøkkelinfo
- Boligtype
- Leilighet
- Eieform
- Eier (Selveier)
- Soverom
- 2
- Internt bruksareal
- 77 m² (BRA-i)
- Bruksareal
- 77 m²
- Balkong/Terrasse
- 9 m² (TBA)
- Etasje
- 2
- Byggeår
- 2017
- Energimerking
- B - Oransje
- Rom
- 3
- Tomteareal
- 8 025 m² (eiet)
Fasiliteter
Balkong/Terrasse
Barnevennlig
Bredbåndstilknytning
Garasje/P-plass
Hage
Kjæledyr tillatt
Kabel-TV
Offentlig vann/kloakk
Parkett
Peis/Ildsted
Rolig
Sentralt
Utsikt
Turterreng
Lademulighet
Balansert ventilasjon
Om boligen
Her har du muligheten til å sikre deg en moderne og stilren leilighet fra 2017 med god takhøyde og en herlig, vestvendt terrasse. Dette er en lys og innbydende leilighet i et attraktivt og barnevennlig område med umiddelbar nærhet til friområder og lysløype. Den åpne stue- og kjøkkenløsningen, kombinert med store vindusflater og ekstra takhøyde, skaper en fantastisk romfølelse. På kalde dager kan du kose deg foran vedovnen, og på varme dager kan du nyte utsikten fra den vestvendte terrassen.
Høydepunkter:
Høydepunkter:
- Moderne leilighet oppført i 2017
- Vestvendt terrasse på 9 m²
- Carport med elbillader og utvendig bod
- Lekkert, flislagt bad med gulvvarme
- Balansert ventilasjon og vedovn i stuen
- Kort vei til skoler, barnehager og butikker
NB: Knappen for å vise hele beskrivelsen har kun en visuell effekt.
NB: Knappen for å vise hele beskrivelsen har kun en visuell effekt.
Salgsoppgaven beskriver vesentlig og lovpålagt informasjon om eiendommen
Se komplett salgsoppgaveNyttige lenker
Nærområdet
DNB Eiendom AS
Verdifulle salg
Annonseinformasjon
| FINN-kode | 450739993 |
|---|---|
| Sist endret | 13. feb. 2026 11:00 |
| Referanse | 217260062 |
Annonsene kan være mangelfulle i forhold til lovpålagt opplysningsplikt. Før bindende avtale inngås oppfordres interessenter til å innhente komplett informasjon fra meglerforetaket, selger eller utleier.




































