Bildegalleri

En sjelden mulighet til å realisere boligdrømmen i en hel etasje på en av Oslos mest attraktive adresser. Foto Pontus Holmenäs.
Bak slottet
Sjelden mulighet! Hel etasje med muligheten til å skape din boligdrøm - Generøs takhøyde - Balkong - Store vindusflater
Prisantydning22 000 000 kr
Nøkkelinfo
- Boligtype
- Leilighet
- Eieform
- Andel
- Soverom
- 5
- Internt bruksareal
- 235 m² (BRA-i)
- Bruksareal
- 273 m²
- Eksternt bruksareal
- 38 m² (BRA-e)
- Balkong/Terrasse
- 7 m² (TBA)
- Etasje
- 3
- Byggeår
- 1892
- Energimerking
- E - Rød
- Rom
- 10
- Tomt
- Eiet
Fasiliteter
Balkong/Terrasse
Barnevennlig
Bredbåndstilknytning
Offentlig vann/kloakk
Parkett
Rolig
Sentralt
Om boligen
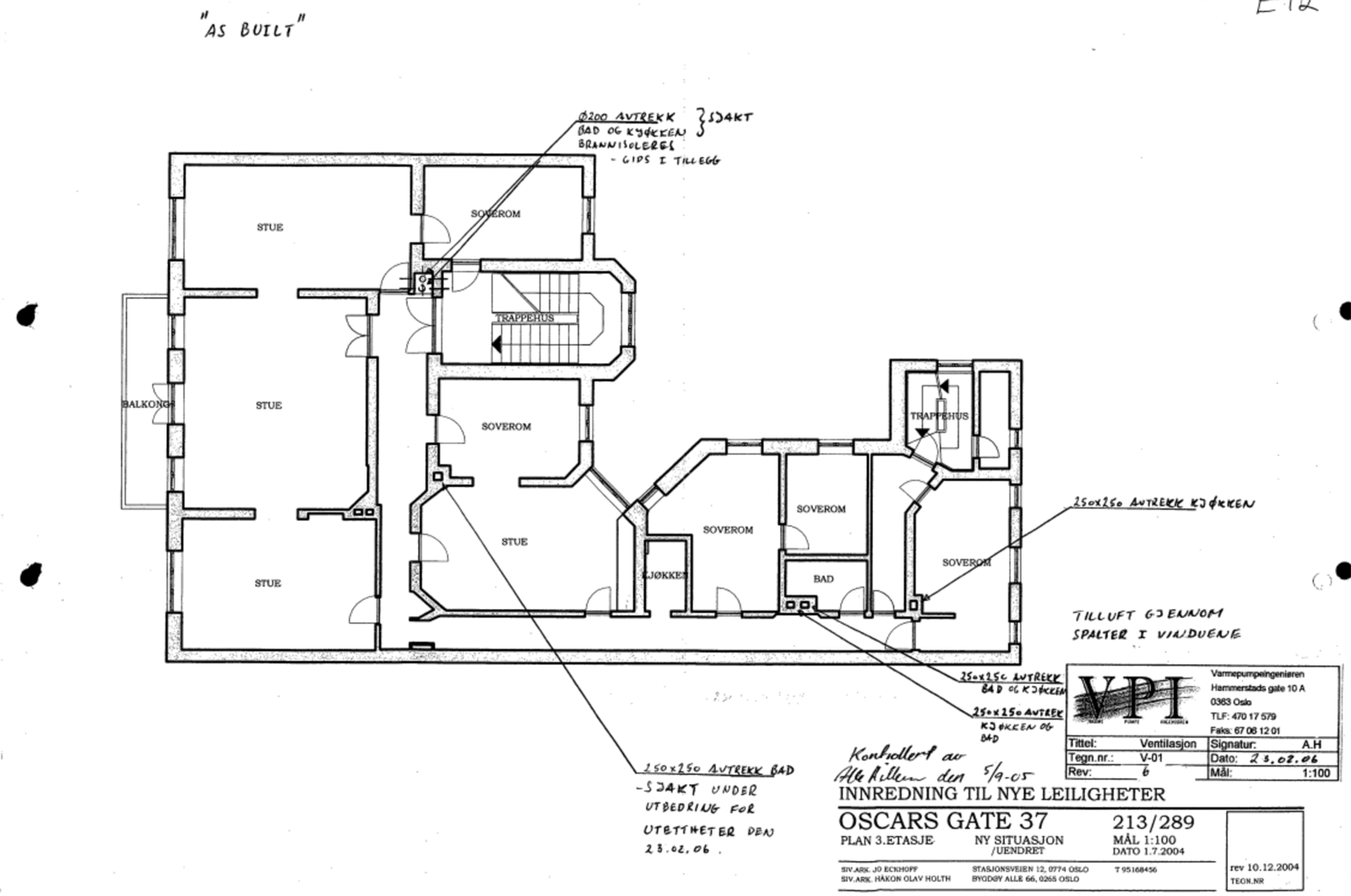
Velkommen til Oscars gate 37A. En sjelden mulighet til å realisere boligdrømmen i en hel etasje på en av Oslos mest attraktive adresser.
Leiligheten preges av generøs takhøyde på opptil 3,17 meter, imponerende vindusflater som slipper lyset rikelig inn og en solrik sørøstvendt balkong på ca. 7 kvm. Her disponerer du en hel etasje alene.
Boligen avviker fra siste godkjente bygningstegninger og kjøper må påregne å søke plan- og bygningsmyndighetene endring av planløsningen. Dette er kjøpers risiko. Kjøper må selv besørge og bekoste ethvert bygningsmessig tiltak som er påkrevd knyttet til avvikene på eiendommen.
Kvaliteter:
- Hel etasje med 235 kvm BRA-i
- Solrik sørøstvendt balkong på 7 kvm
- Skap ditt drømmehjem!
- 38 kvm bodareal
- I nærhet til "alt" du trenger i hverdagen
Leiligheten preges av generøs takhøyde på opptil 3,17 meter, imponerende vindusflater som slipper lyset rikelig inn og en solrik sørøstvendt balkong på ca. 7 kvm. Her disponerer du en hel etasje alene.
Boligen avviker fra siste godkjente bygningstegninger og kjøper må påregne å søke plan- og bygningsmyndighetene endring av planløsningen. Dette er kjøpers risiko. Kjøper må selv besørge og bekoste ethvert bygningsmessig tiltak som er påkrevd knyttet til avvikene på eiendommen.
Kvaliteter:
- Hel etasje med 235 kvm BRA-i
- Solrik sørøstvendt balkong på 7 kvm
- Skap ditt drømmehjem!
- 38 kvm bodareal
- I nærhet til "alt" du trenger i hverdagen
NB: Knappen for å vise hele beskrivelsen har kun en visuell effekt.
NB: Knappen for å vise hele beskrivelsen har kun en visuell effekt.
Salgsoppgaven beskriver vesentlig og lovpålagt informasjon om eiendommen
Se komplett salgsoppgaveNyttige lenker
Nærområdet
Nordvik St.Hanshaugen
Annonseinformasjon
| FINN-kode | 450734719 |
|---|---|
| Sist endret | 18. feb. 2026 14:38 |
| Referanse | 5-0559/25 |
Annonsene kan være mangelfulle i forhold til lovpålagt opplysningsplikt. Før bindende avtale inngås oppfordres interessenter til å innhente komplett informasjon fra meglerforetaket, selger eller utleier.































































