Bildegalleri

KVADRATUREN
Flott romslig eierleilighet med stor solrik terrasse på 17 m2- Flott utsikt mot Tresse fra spiseplass på kjøkkenet- Heis
Prisantydning4 690 000 kr
Nøkkelinfo
- Boligtype
- Leilighet
- Eieform
- Eier (Selveier)
- Soverom
- 2
- Internt bruksareal
- 84 m² (BRA-i)
- Bruksareal
- 88 m²
- Eksternt bruksareal
- 4 m² (BRA-e)
- Balkong/Terrasse
- 17 m² (TBA)
- Etasje
- 1
- Byggeår
- 1989
- Energimerking
- E - Oransje
- Rom
- 3
- Tomteareal
- 272 m² (eiet)
Fasiliteter
Balkong/Terrasse
Bredbåndstilknytning
Heis
Offentlig vann/kloakk
Parkett
Rolig
Sentralt
Utsikt
Vaktmester-/vektertjeneste
Turterreng
Visning
onsdag, 18. februar
16:30 – 17:30
Eiendomsmegler Norge sine visninger har påmelding. Påmelding gjøres enkelt ved å benytte knappen under. Ta kontakt med megler dersom oppsatt tidspunkt ikke passer. Det vil ikke bli avholdt visning uten påmelding, frist for påmelding er senest kl. 12.00 på visningsdagen. Husk å laste ned salgsoppgaven digitalt før visning. Velkommen til en hyggelig visning!
VisningspåmeldingOm boligen
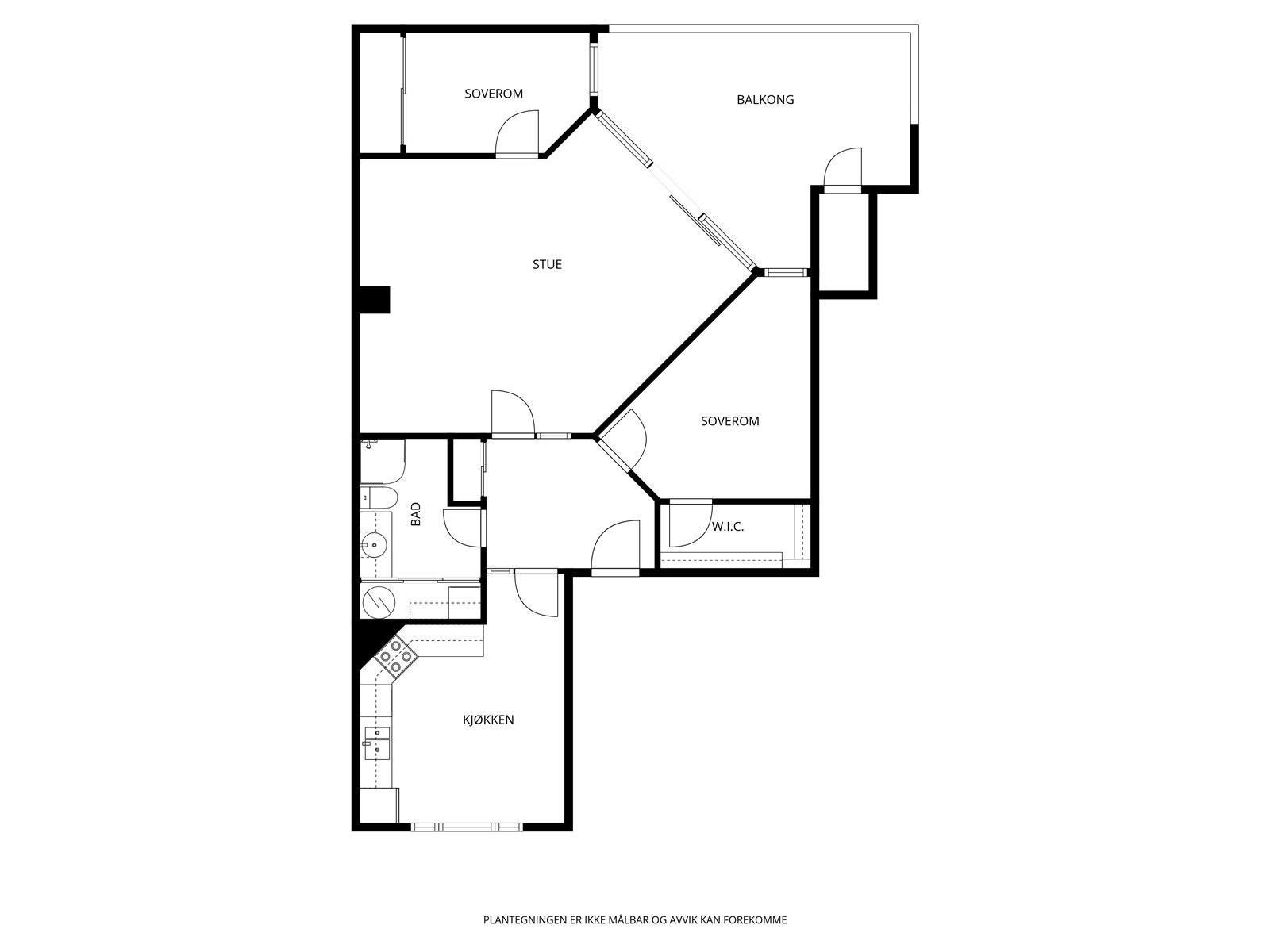
Pen, lys og trivelig leilighet med store gode rom og gode vindusflater.
Attraktiv selveierleilighet med stor, solrik og vestvendt terrasse. Flott beliggenhet rett ved Tresse og Festningen. Leiligheten ligger i høy 1. etg. og har en god planløsning med 2 soverom, bod/ garderoberom, romslig pent flislagt bad/wc med vaskeromsløsning, stort kjøkken med spiseplass og fin utsikt mot Tresse og sjøen. Stue og spisestue med utgang til stor solrik terrasse på hele 17 m2 med egen bod.
1 bod i kjeller.
Fra leiligheten har du gangavstand til det aller meste.
- Ny heis i bygget.
- Dørcallinganlegg med kamera.
- Nyere gulvfliser på bad/wc.
- Nyere parkett i stue og spisestue.
- Nyere flotte fliser på balkong.
Vel møtt!
Attraktiv selveierleilighet med stor, solrik og vestvendt terrasse. Flott beliggenhet rett ved Tresse og Festningen. Leiligheten ligger i høy 1. etg. og har en god planløsning med 2 soverom, bod/ garderoberom, romslig pent flislagt bad/wc med vaskeromsløsning, stort kjøkken med spiseplass og fin utsikt mot Tresse og sjøen. Stue og spisestue med utgang til stor solrik terrasse på hele 17 m2 med egen bod.
1 bod i kjeller.
Fra leiligheten har du gangavstand til det aller meste.
- Ny heis i bygget.
- Dørcallinganlegg med kamera.
- Nyere gulvfliser på bad/wc.
- Nyere parkett i stue og spisestue.
- Nyere flotte fliser på balkong.
Vel møtt!
NB: Knappen for å vise hele beskrivelsen har kun en visuell effekt.
NB: Knappen for å vise hele beskrivelsen har kun en visuell effekt.
Salgsoppgaven beskriver vesentlig og lovpålagt informasjon om eiendommen
Se komplett salgsoppgaveNyttige lenker
Nærområdet
Eiendomsmegler Norge Kristiansand
Best der du bor
Annonseinformasjon
| FINN-kode | 450730386 |
|---|---|
| Sist endret | 13. feb. 2026 12:40 |
| Referanse | 50260034 |
Annonsene kan være mangelfulle i forhold til lovpålagt opplysningsplikt. Før bindende avtale inngås oppfordres interessenter til å innhente komplett informasjon fra meglerforetaket, selger eller utleier.














































