Bildegalleri

Møremegling v/ Bjørn Pedersen ønsker velkommen til Hatlevika 68
Hatlane
Attraktivt og oppgradert rekkehus med flott utsikt i populært boligfelt | Carport | Moderne kjøkken
Prisantydning4 500 000 kr
Nøkkelinfo
- Boligtype
- Rekkehus
- Eieform
- Eier (Selveier)
- Soverom
- 2
- Internt bruksareal
- 111 m² (BRA-i)
- Bruksareal
- 114 m²
- Eksternt bruksareal
- 3 m² (BRA-e)
- Balkong/Terrasse
- 59 m² (TBA)
- Etasje
- 2
- Byggeår
- 1982
- Energimerking
- D - Gul
- Tomteareal
- 137 m² (eiet)
Fasiliteter
Balkong/Terrasse
Garasje/P-plass
Rolig
Sentralt
Utsikt
Lademulighet
Visning
tirsdag, 24. februar
17:00 – 18:00
PÅMELDING!
Husk å melde deg på visningen.
Trykk på lenken "Påmelding til visning", eller kontakt megler på telefon eller e-post. Vi tilbyr også privatvisninger utover oppsatt visningstidspunkt.
Dersom det er ingen påmeldte til visningen innen kl 16:00 dagen før annonsert visning vil denne bli avlyst.
Ta kontakt med megler for visning.
VisningspåmeldingOm boligen
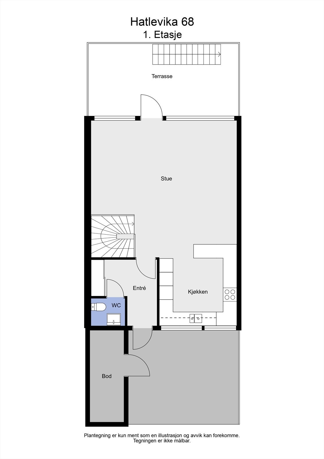
Velkommen til Hatlevika 68 - Et innholdsrikt rekkehus fra 1982 med flott beliggenhet i etablert boligområde i Ålesund. Boligen går over to plan og inneholder entré, stue/kjøkken, toalettrom, bad, vaskerom, gang og to soverom. Kjøkkenet fra 2020 har moderne innredning fra Sigdal og åpen løsning mot stue. Fra stuen er det utgang til veranda og terrasse mot sør med vakker utsikt. Boligen har også bod ved inngangspartiet samt carport på fellesareal.
Fra boligen er man i umiddelbar nærhet til det aller meste. Flotte turstier og sjøen er minutters gange unna. Dagligvarebutikk, skole og idrettshall har en gåavstand på under 10 minutter. Hatlane er et meget attraktivt boligområde i Ålesund, der man bor nærme både sentrum og Moa.
Velkommen til visning!
Fra boligen er man i umiddelbar nærhet til det aller meste. Flotte turstier og sjøen er minutters gange unna. Dagligvarebutikk, skole og idrettshall har en gåavstand på under 10 minutter. Hatlane er et meget attraktivt boligområde i Ålesund, der man bor nærme både sentrum og Moa.
Velkommen til visning!
NB: Knappen for å vise hele beskrivelsen har kun en visuell effekt.
NB: Knappen for å vise hele beskrivelsen har kun en visuell effekt.
Salgsoppgaven beskriver vesentlig og lovpålagt informasjon om eiendommen
Se komplett salgsoppgaveNyttige lenker
Nærområdet
Møremegling avd. Ålesund
En del av Sparebanken Møre
Annonseinformasjon
| FINN-kode | 450725667 |
|---|---|
| Sist endret | 13. feb. 2026 10:15 |
| Referanse | ME700.2629 |
Annonsene kan være mangelfulle i forhold til lovpålagt opplysningsplikt. Før bindende avtale inngås oppfordres interessenter til å innhente komplett informasjon fra meglerforetaket, selger eller utleier.


















































